Agencija za bankarstvo RS

Godina projektovanja
2018
Godina izgradnje
2020
Status
izgrađeno
Lokacija
Banja Luka

AGENCIJA ZA BANKARSTVO RS

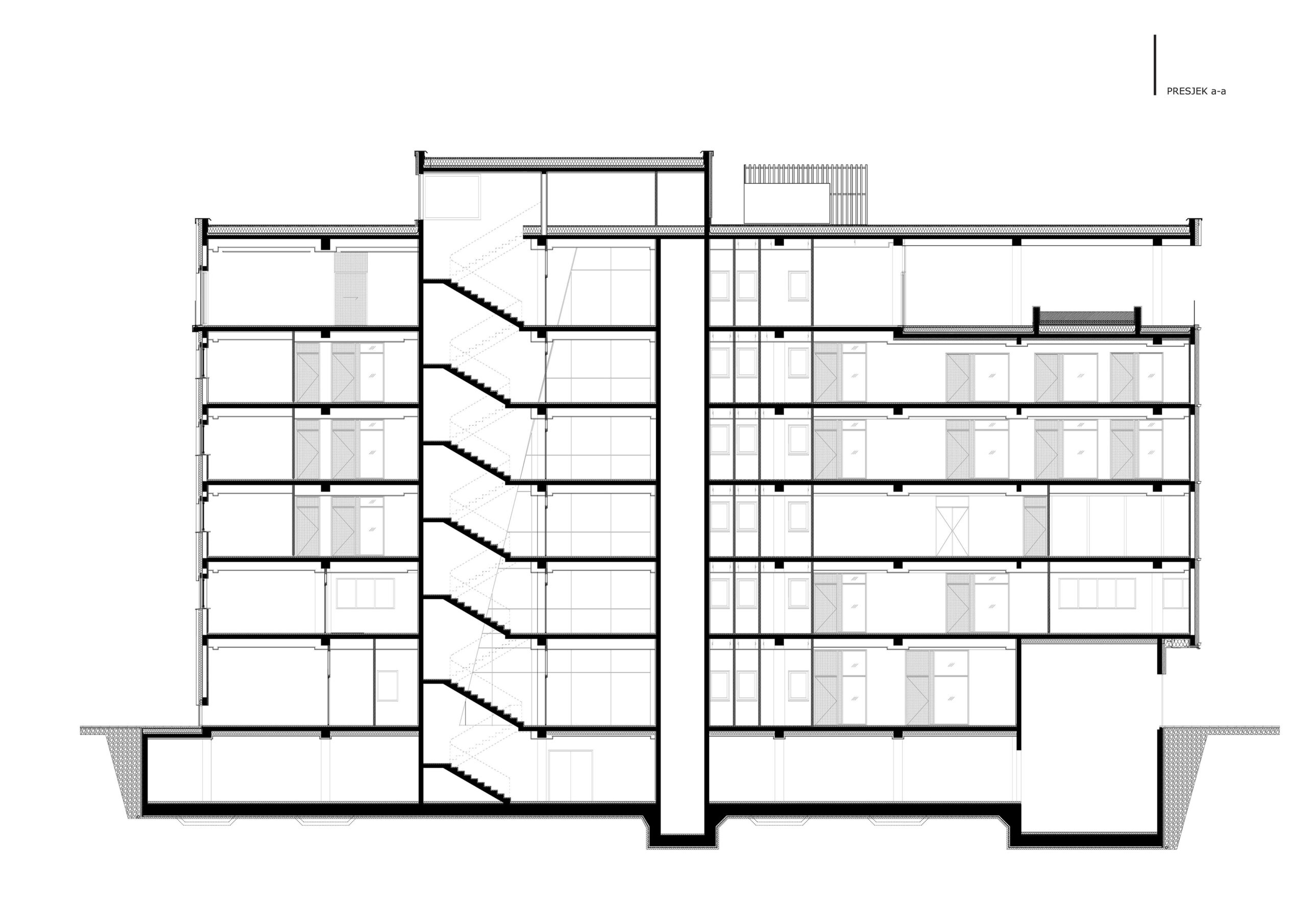
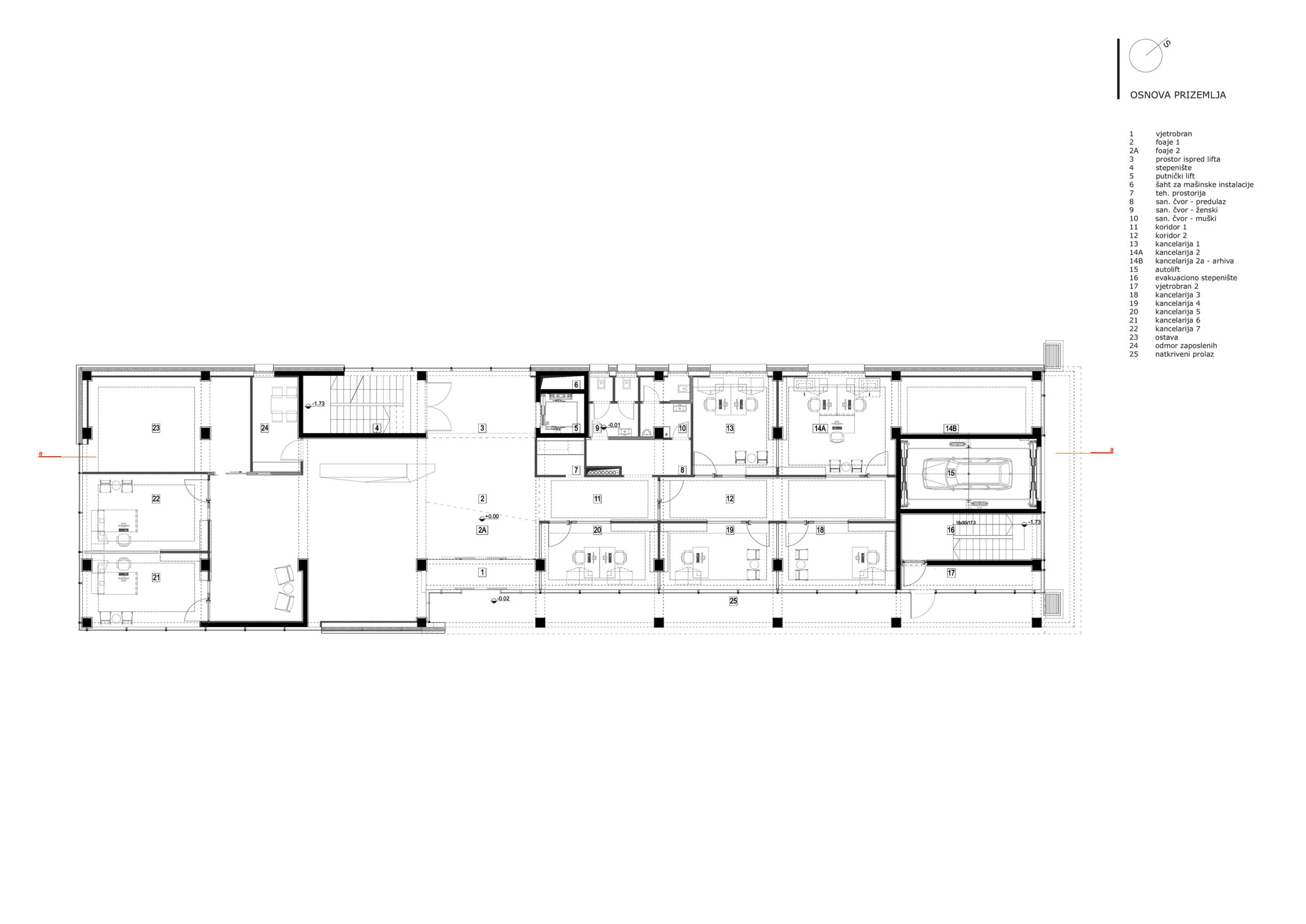
Objekat poslovno-administrativne namjene, spratnosti Po+P+5, nalazi se u centru Banja Luke u ulici Vladike Platona, neposredno pored administrativnog i upravnog centra Republike Srpske. Parcela na kojoj je smješten je nepravilnog izduženog oblika, podužno postavljena duž pristupne saobraćajnice, što je uticalo na volumetriju objekta.

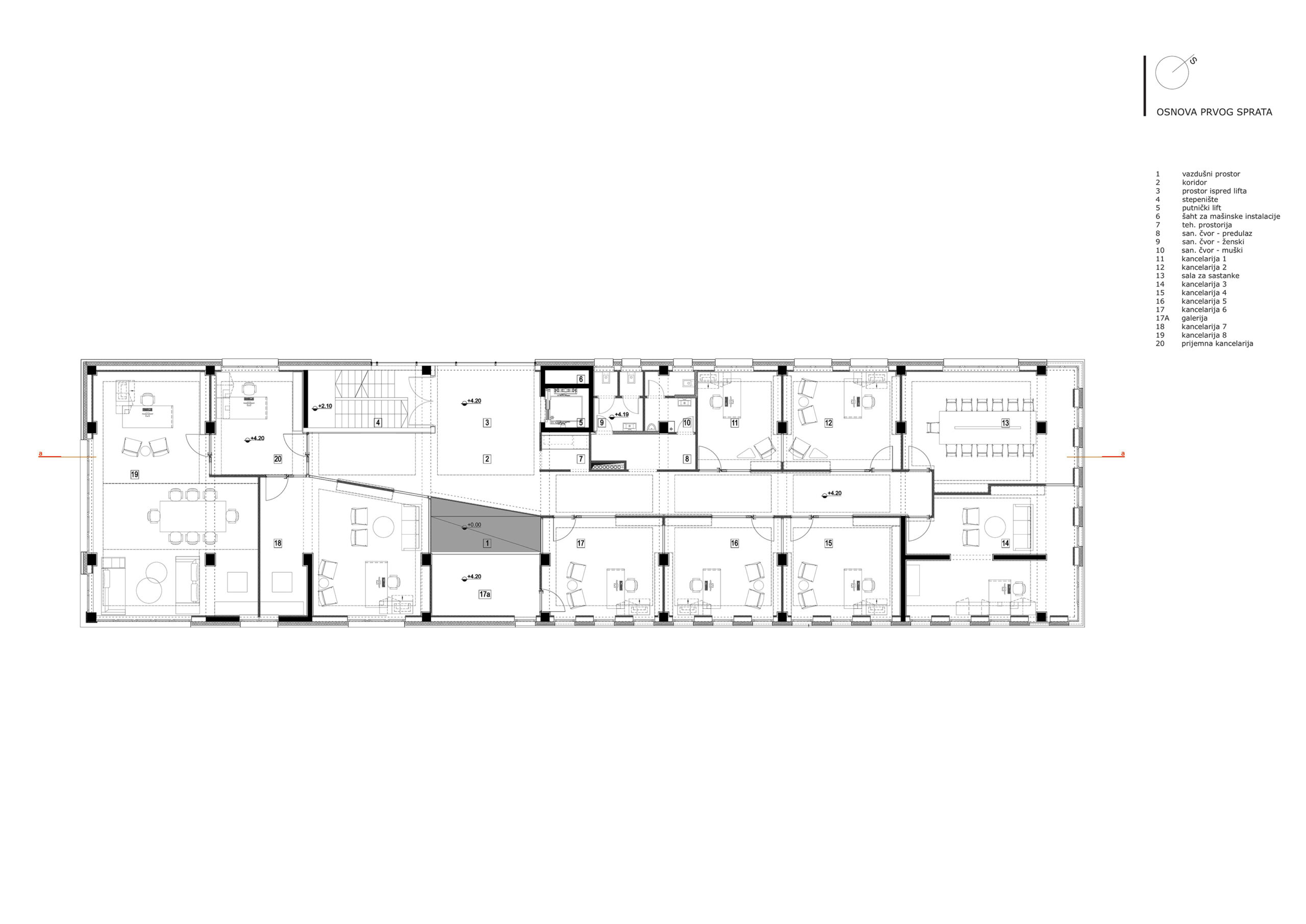
Objekat je izdužene pravougaone osnove (širine 12m i dužine 46m), koja se diže u visinu prateći liniju ulice. Oblik objekta predstavljao je izazov u projektovanju, ne samo u pogledu zadovoljavanja njegove funkcije, već i oblikovanja i materijalizacije. Objekat je koncipiran tako da su u podrumu smještene servisne prostorije (kotlovnica, agregat, održavanje) i parking za automobile i bicikle, kojem se pristupa autoliftom, smještenim na zapadnom kraju prizemlja, a neposredno pored autolifta je smješteno i dodatno evakuaciono stepenište za evakuaciju iz garaže. U prizemlju je glavni ulaz (istočna strana) sa holom i recepcijom i kancelarije namjenjene za prijem stranaka, te protokol i nadzor. Iznad dijela ulaznog hola se izdiže atrijum koji ide skroz do krova.

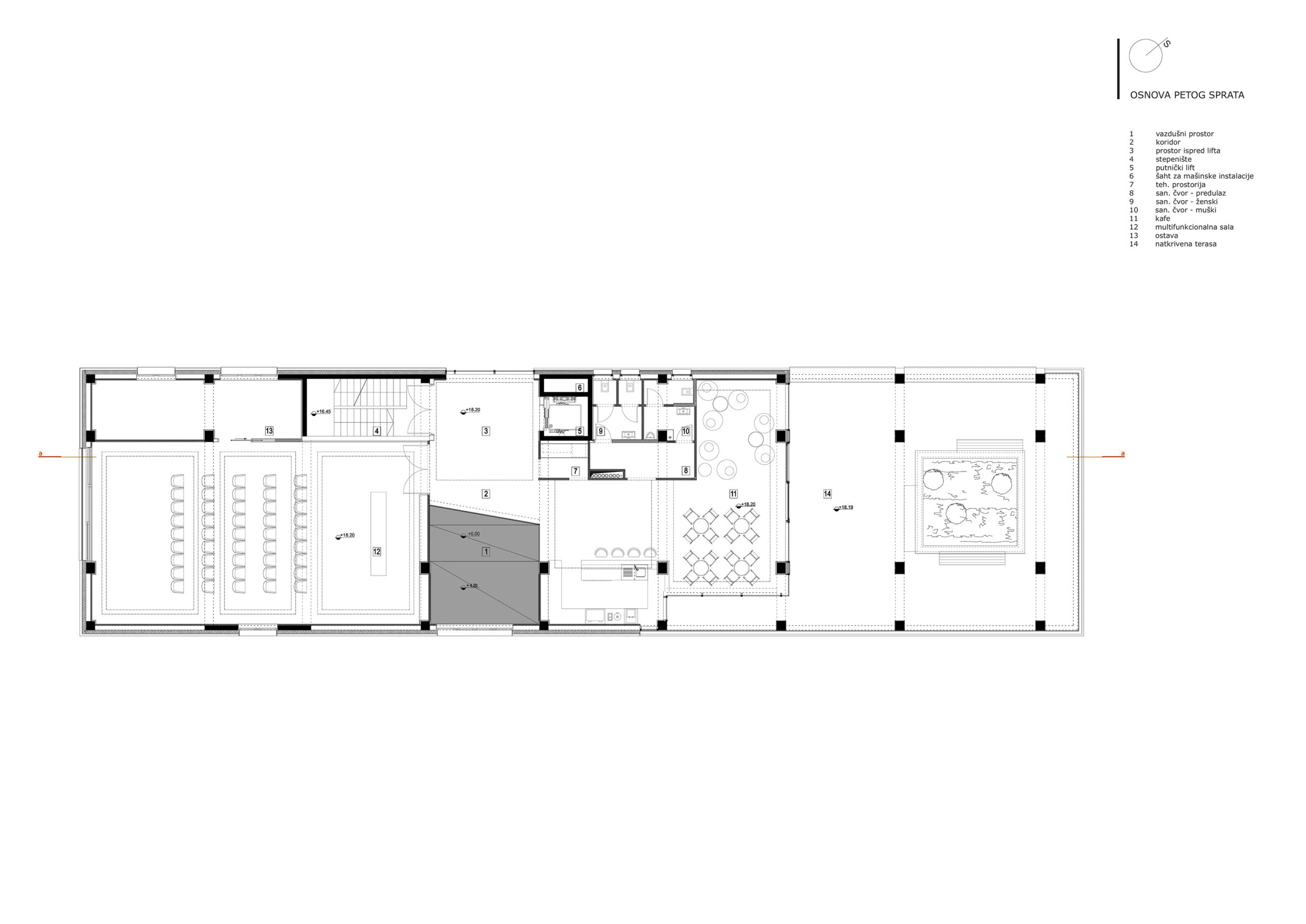
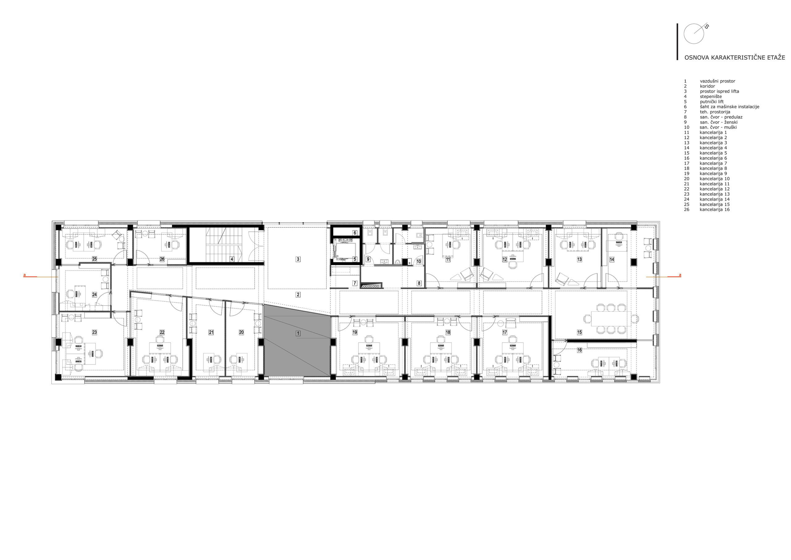
Na višim spratovima formirane su kancelarije u dva reda, na prvom spratu su kancelarije uprave, nešto veće površine, dok su od drugog do četvrtog sprata kancelarije za 1-4 zaposlenih. Između kancelariia pruža se koridor koji se sa jedne strane završava prostorijom za zajednički rad, sastanke i sl., a na sredini tangira atrijum. Na petom spratu smještena je kongresna sala sa kafeom preko koga se pristupa natkrivenoj terasi koja zauzima skoro polovinu etaže.

Krov je ravan, neprohodan, sa dijelom prilagođenim za smještanje spoljih jedinica termo-tehničkih instalacija. Dio krova ispod i oko uređaja je prilagođen kretanju osoblja za održavanje. U materijalizaciji i oblikovanju fasada izražen je dualizam, najviše zbog same orijentacije objekta, a i namjene prostorija. Tako da je od sjevera ka istoku fasada izdijeljena vertikalno u segmente širine 90 cm, gdje se smjenjuju pune i ostakljene vertikale, kako bi se što više svjetla dovelo u prostorije. Puni dijelovi su završeni kompakt pločama u dekoru drveta. Od jugoistoka ka zapadu fasada je monolitna, puna, sa horizontalnim procijepima u kojima su smješteni nizovi prozora. Objekat svojom funkcionalnošću, čistoćom forme i elegancijom predstavlja uzoran arhitektonski obrazac daljeg razvoja urbanog prostora u ovom dijelu grada.