Hotelsko apartmanski kolmpleks, Banja Vrućica

Godina projektovanja
2020
Godina izgradnje
xxxx
Status
Glavni projekat
Lokacija
Teslić

Hotelsko apartmanski kolmpleks, Banja Vrućica

Smješten u neposrednoj blizini hotela Kardijal, Banja Vrućica, na nekadašnjoj lokaciji porodičnih objekata kod kojih je prizemlje pretvarano u poslovanje zbog ekskluzivnosti lokacije, projektovano je apartmansko naselje od tri međusobno spojene lamele. Novi bi se kompleks trebao uklopiti u postojeću građevinsku strukturu hotela u neposrednoj blizini i uprkos velikoj gustini izgrađenosti pružiti visok nivo kvaliteta boravka bilo kao gosta ili nekoga ko stanuje u objektu. Projekat se logično nadovezuje na postojeću izgradnju u neposrednoj blizini i činit će sa njom cjelinu. U projektu su se koristile različite visine i tipovi objekta kako bi se što bolje iskoristio prostor uz postizanje različitosti i prilagođavanje okolini, prvenstveno stambeno poslovnom objektu koji je lijevo od novoprojektovanog kompleksa i koji je nedavno završen.

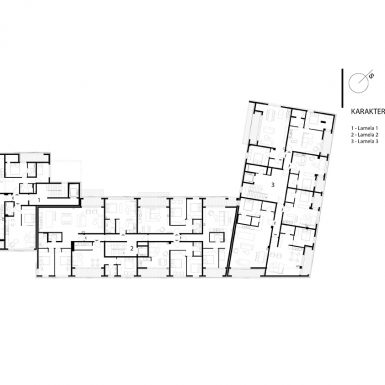
Uzduž granice smješteni su objekti dubine 12-14m kojima broj spratova varira, kao i oblikovanje zavisno od funkcije. Objekti su tri spojene lamele, koja svaka ima svoje stubište, a dvije krajnje i odvojene ulaze u garažu sa dvije saobraćajnice koje sa istoka i sjevera ograničavaju parcelu. Velike staklene plohe slastičarne i restorana objekta L1, poslovnih lokala u L2 ili bazena u objektu L3 daju dodatnu dinamiku objektima kao I nagib terena kome se objekti prilagođavaju. Zahvaljujući izmicanju objekta ka ulici, dobio se kompaktan unutrašnji prostor dvorišta na dva nivoa za odmor u miru.

Pristupom arhitekturi kao djelovanje u zadatom socioekonomskom, tehnološkom i kulturnom kontekstu projektovan je objekat koji aktivno učestvuje na urbanoj sceni, pri tom on ne pripada nekom određenom pravcu, prije predstavlja kontinuirano eksperimentisanje, pri čemu je važno da dobro izgleda u svom kontekstu, da je dobar za korisnika,da pozitivno doprinosi okolini. Objekat je događaj koji se pojavljuje i traje,koji je zbog uobičajenih dinamičkih aktivnosti definisan i materijalizovan kroz formu, oblik, kompoziciju, boju…

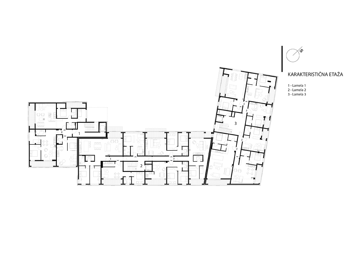
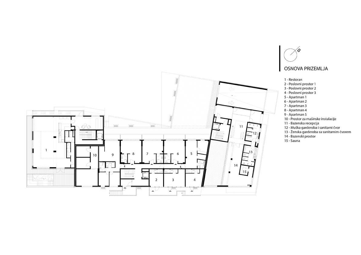
Objekat je projektovan kao poslovni, hotel apartmanskog tipa. U L1 su sadržaji ugostiteljstva neophodni za kvalitetno funkcionisanje cijelog kompleksa, u L2 je prizemlje sa poslovnim prostorima, a u L3 je prostor rekreacije sa bazenom, teretanom i pratećim sadržajima. Lamela 1 je cijelom svojom visinom jedinstvena i odvojena dok su objekti L2 i L3 na nivou podruma i suterena gdje se nalaze parking prostori spojeni u jedinstvenu cjelinu. Etaže iznad prizemlja u svim objektima su apartmani različitih kvadratura.

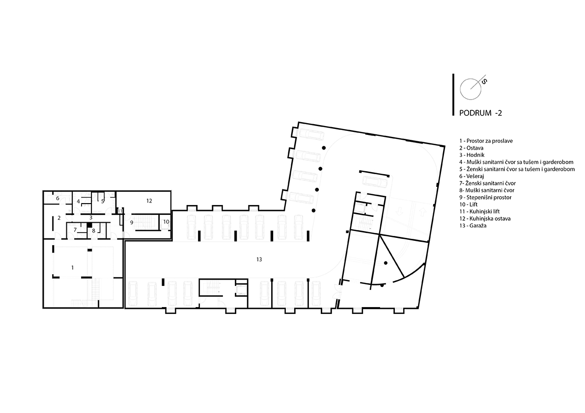
Parking garaža zbog već pomenute denivelacije na okolnim saobraćajnicama sa kojih su projektovane prilazne rampe, na jednom dijelu objekta je na dva nivoa na kojima se nalazi 32 parking mjesta.

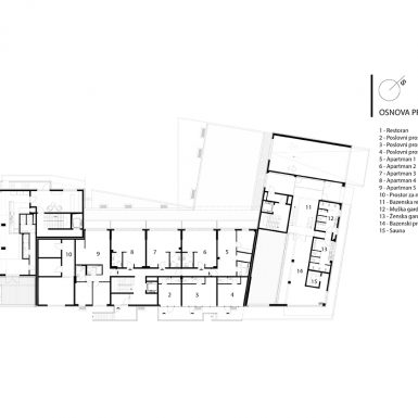
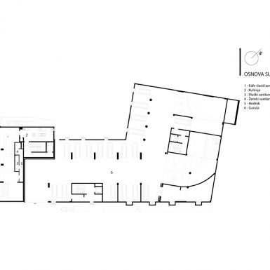
L1 u podrumskoj etaži ima višenamjenski prostor galeriski povezan sa prizemljem, a sa druge strane skladište za kuhinju i prateće prostore kuhinje. Suterenska etaža koja je svojom jednom stranom na nivou ulice, a sa tri strane je većim dijelom zatvorena je projektovana za kafe slastičarnu, a na prizemlju je restoran. Dvije etaže su sa po tri apartmana površine od 42.58m2, 66.87m2 i 91.32m2, a povučena etaža ima dva apartmana od 83.66m2 i 87.59m2, sve zajedno 8 apartmana. Ukupna BGP ove lamele je 1870.35m2.
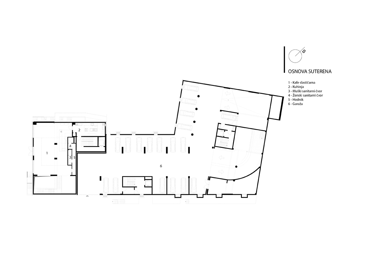
L2 u pudrumskoj etaži na nivou suterena ima garažu. U prizemlju na dijelu prema ulici su tri poslovna prostora od kvadratura od 16-25m2, a prema dvorištu pet apartmana različitih kvadratura. Na tri etaže koje su iste je po 6 apartmana i na povučenoj etaži 4 apartmana. Apartmani su kvadratura od približno 36m2 do 108m2. U ovoj lameli je 27 apartmana. Na ravnom prohodnom krovu je ljetna terasa za sve objekte sa natkrivenim prostorom za druženje.Ukupna b.g.p. ove lamele je 4166.03m2.

L3 takođe na dva nivoa podruma ima garažu dok je u prizemlju bazen, saune, recepcija, garderobe, a na galeriji teretana, kafe. Prvi, drugi i treći sprat imaju po 6 apartmana površine od 37m2 do 87m2, a povučena etaža tri apartmana nešto većih kvadratura. Ukupno 21 apartman ima ova lamella i b.g.p. 3872.53m2.

Projektovano rješenje je dalo jednak značaj svim funkcijama i na taj način definisalo samu postavku na terenu. Različite funkcije se ogledaju na fasadi i lako su čitljive za korisnike.
Vertikalne komunikacije su takođe jasno naglašene da bi bile uvijek uočljive za korisnike a iskorištene su i za estetiku objekta.

Dispoziciono, objekat je rijesen tako da njih tri formiraju pravougaonu formu zatvorenu sa tri strane prema ulicama, a sa dvorišne strane ostaju otvoreni i kao da u svoju cjelinu žele integrisati prethodno sagrađen objekat na kontaktnoj parceli.

Predmetni projektovani objekat su tri objekata sastavljena u jednu cjelinu koja je spratnosti od Po+Su+P+2 do Po+P+3+Pe, ukupne bruto povrsine 9908.91 m2.

Svi objekti su pravilnog pravougaonog oblika sa prizemljem i povučenom etažom na istom nivou a spratnim etažama koje se prepuštaju preko osnovnog gabarita.

Potrebe saobraćaja u mirovanju se rješavaju u okviru podzemne etaže i na parteru. U podrumskoj garaži na dva nivoa je smješteno 39 parking mjesta, a prilaz,odnosno izlaz u parking garažu je rampom iz dvije saobraćajnice na suprotnim stranama parcele.
Ulazi u lamele su postavljeni na tri strane sa tri pristupne saobraćajnice, s tim da je omogućen i pristup kroz cijeli potez dvorišta i sa različitih strana parcele.

Objekat je u oblikovnom i funkcionalnom smislu, svojim arhitektonskim izrazom i ne nametljivim kubusima bez sumnje ispoštovao zakone prostornog projektovanja i naglašavanja značaja prethodno izgrađenog i svoje uklapanje u zatečeni ambijent.

Kombinacija čistih volumena, smaknutih pravougaonih formi koje djele objekat na različite funkcionalne cjeline će sigurno dati novu sliku prostora i stati u red objekata koji su svojim arhitektonskim izrazom dali pečat vremenu u kome su nastali.

Urbani uslovi konteksta, prvenstveno postojeći hotel Kardijal i oblik terena, definisali su osnovnu formu i volumen objekta, a ne samo njegova namjena.

Funkcionalni apartmani upotpunjeni svim sadržajima, koji daju dodatni kvalitet korisnicima, dobro orjentisani i osvjetljeni svi prostori, lako dustupni, sve su to elementi koji doprinose kvalitetnom rješenju.

Osnovna konstrukcija objekta je riješena kao armirano-betonska konstrukcija i pripada grupi ramovskih konstrukcija u kombinaciji sa armirano-betonskim platnima. Temeljna konstrukcija objekta je jedinstvena temeljna armiranobetonska kontra ploča za čitav objekat.

Konstrukcija objekta se sastoji od gotovih isotex međuspratnih tavanica koje se oslanjaju na sistem armirano betonskih ramova u oba smjera koji su ukrućeni armirano betonskim platnima,takođe u isotex zidovima.

Krovna konstrukcija objekta je ravni krov od istih gotovih isotex tavanica sa različitim slojevima ravnog krova zavisno od toga dali je prohodan ili ne. Ravan prohodan krov iznad podrumske,odnosno suterenske etaže je od je takođe od istih međuspratnih ploča sa naknadnim slojevima ozelenjenog ravnog krova unutrašnjeg dvorišta.

Fasadni zidovi su kombinacija demit fasade na jednom dijelu a na drugim dijelovima je drvena obloga tipa trespa, kao i perforirane klizne želuzine koje zatvaraju lođe i doprinose različitosti objekta.

Trespa u boji prirodnog drveta oplemenila je objekat i učinila ga toplijim. Tople boje bravarije i trespe preovladavaju na fasadi i čine je manje strogom i hladnom zajedno sa bijelom u pozadini. A takva materijalizacija dala je utisak manjeg objekta i njegovog kvalitetnog uklapanja u kontekst iako je objakat značajne veličine u tom mjerilu.