Uz glavnu saobraćajnicu neposredno uz Banjsko rekreativni centar Banja Vrućica na k.č.687, K.O. Banja Vrućica, nalazio se stmbeni objekat ukupne korisne površine 547,82 m2. Kompanija ,,DEVIĆ TEKSTIL“ d.o.o. je na navedenom prostoru dobila saglasnost za izgradnju manjeg hotela sa bazenom. Urbanistički koncept zasniva se na formiranju objekta kao jednog u nizu, koji bi se uklopio u urbanistički kontekst ovog dijela naselja tj. objekata duž lijeve strane saobraćajnice. Na dosta maloj parceli, između objekata sa dvije duže strane parcele i otvorenog prostora prema ulici, interpolacijom moderne fasade dobio bi se dodatni kvalitet prostora.
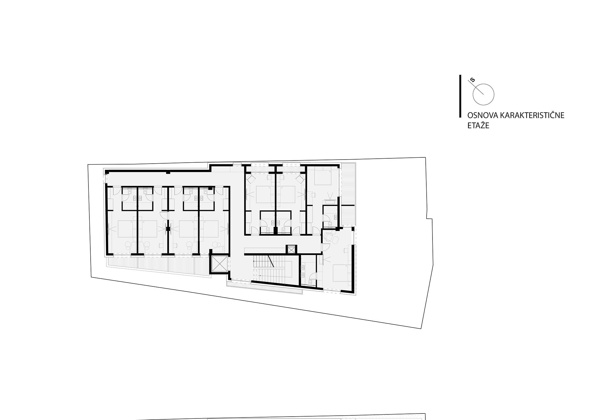
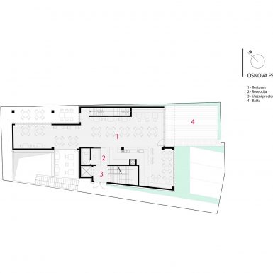
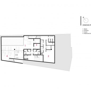
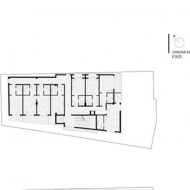
Hotel je projektovana kao spratna građevina, sa tehničkom etažom na -2, iznad je etaža sa bazenom, velnes sadržajima na jednoj strani i kuhinjski i servisni blok na drugoj strani. Prizemlje je namijenjeno ugostiteljskim sadržajima tipa picerija i kafe slastičarna a na spratovima 1 i 2 po osam soba. Povučena etaža ima luksuzni apartman na jugozapadnoj strani i krovnu terasu na jugoistočnoj strani, zaokružuju priču o sadržajima koji daju sve potrebne elemente hotelu upakovane na specifičan način na lokaciji koja je to samo tako dozvoljavala.
Arhitektura koja na najbolji mogući način koristi zatečeno stanje na lokaciji, poštujući susjedstvo, konfiguraciju tla, postojeće klimatske uslove. Ne teži ka pobjedi nad okolinom, niti se od nje brani, već na najbolji mogući način koristi postojeće.
Spratnosti Po-2+Po-1+Pr +2+Pe ukupne bruto povrsine 1725.79 m2 , je spratnost koja se nalazi u okolnom prostoru. Potrebe saobraćaja u mirovanju se rješavaju na uličnom dijelu parcele I na parkingu u neposrednoj blozini objekta.
Osnovna konstrukcija objekta je riješena kao armirano-betonska konstrukcija u kombinaciji stubovi, grede, platna, ploče . Temeljna konstrukcija objekta je jedinstvena temeljna armiranobetonska kontra ploča za čitav objekat na nivou podrumskih etaža.
Fasadni zidovi su kombinacija tamnog i svijetlog kamena, ventilisane fasade i drveta, koje cijelom objektu daje toplinu neophodnu za ovakav tip objekata. Želuzine na prozorima su od prirodnog drveta tipa bor ili smrča kao i perforirane klizne želuzine koje zatvaraju otvoreni južni dio fasade u toplim ljetnim danima ili štite krovnu terasu od različitih vremenskih uslova.
Podrazumijeva se primjena principa energetske efikasnosti je izabran material blok za zidove i međespratna i krovna konstrukcija takvih karakteristikama gdje je toplotna provodljivost U=0,25W/m2K, te je za budući objekat maksimalna potrošnja energije za grijanje i hlađenje određena na 40kWh/m2 godišnje a potrošnja primarne energije 100kWh/m2 godišnje.