Park šuma Starčevica

Godina projektovanja
2023
Godina izgradnje
xxxx
Status
idejni projekat
Lokacija
Banja Luka

Park šuma Starčevica

 

Moderni turizam, na domak grada a izdignut na padini da se grad sagledava iz svakog objekta. Sadržaj je potrebno približiti publici u podnožju, na privlačan način. Bio je to program za novi projekat investitora iz Austrije. Niz objekata samosvjesno proširuje paletu odgovora na složenu temu gradnje i na još složeniji teren. Promišljanje je išlo daleko u regijegdje planina obećava neposredni dožovljaj prirode i egzistencijalno lično iskustvo-iznad gornje granice šume, tamo gdje nesputani elementi otvaraju put potpunoj slobodi a uljeza tjeraju u sklonište. Takva su skloništa na teško pristupačnom terenu građena od jedinog dostupnog materijala-kamena. Pažljivo složen, sirovo ugrađen i bez ukrasa. To je bio podsticaj za arhitektu ali i investitora za ovo savremeno turističko naselje, što je ideja vodilja ovog projekta.

Sada je to skup objekata od sirovog kamena, sve su im strane nepravilno perforirane staklom, kao i krovovi. Pravougaonici su to u tri dimenzije, tri tipa rasporeda prostora, sa ili bez bazena. Osnovna pravilna forma je decentno isprekidana, prvo zbog padine, onda ulica koje se teško formiraše pa oblikovanja vanjskog prostora koji je kod svakog od objekata potpuno drugačiji.

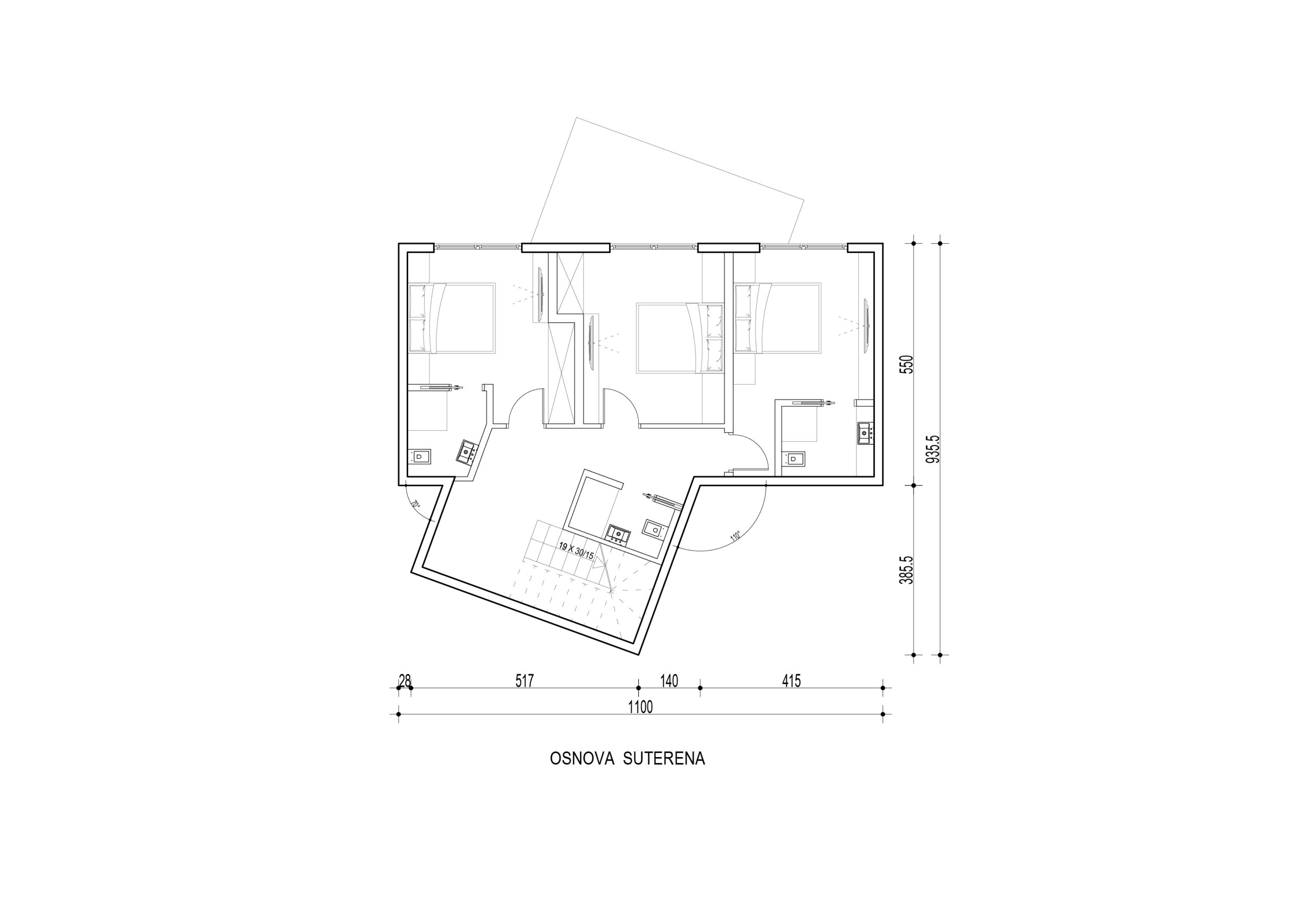
U prizemlju ćemo naći ugodne smještajne jedinice za boravak danju i noću sa bazenom na terasi ili đakuzijem a na suterenu noćne prostore. Svi prostori, posebno oni javni, posjeduju opuštenu atmosferu. Spektakularni vidici nepravilno su raspoređeni, podovi prizemlja od grubog kamena kao i terase a na spratovima hrastovi podovi kao i plafoni i stepenišne ograde.

Sirovi prirodni kamen na fasadama, podzidima, terasama i željeni izgled postignut je sa pet vrsta kamena iz kamenoloma Krajine.