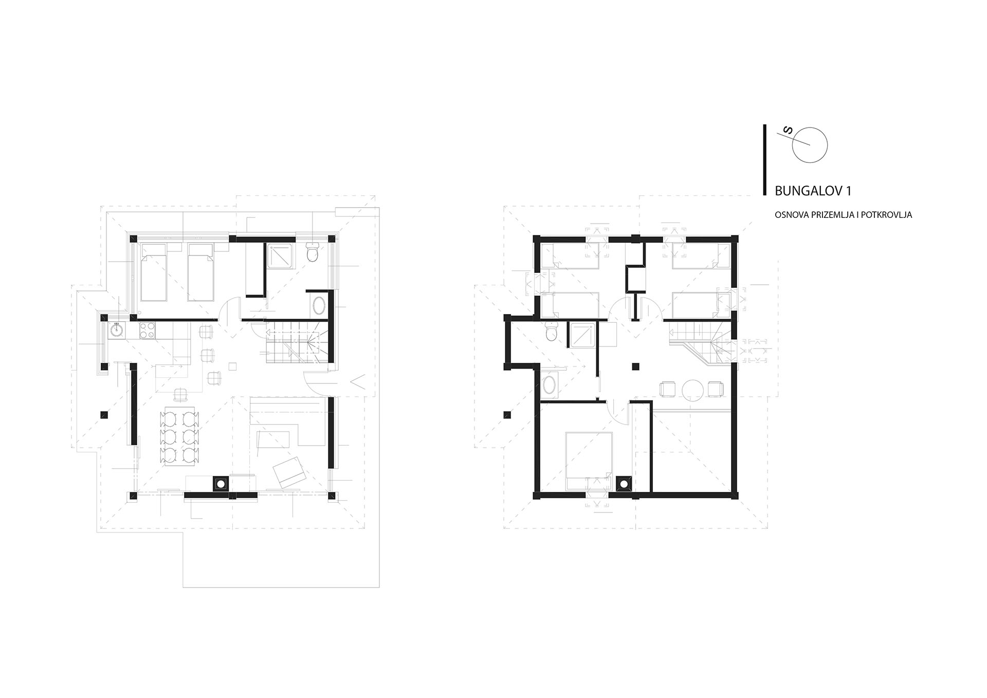
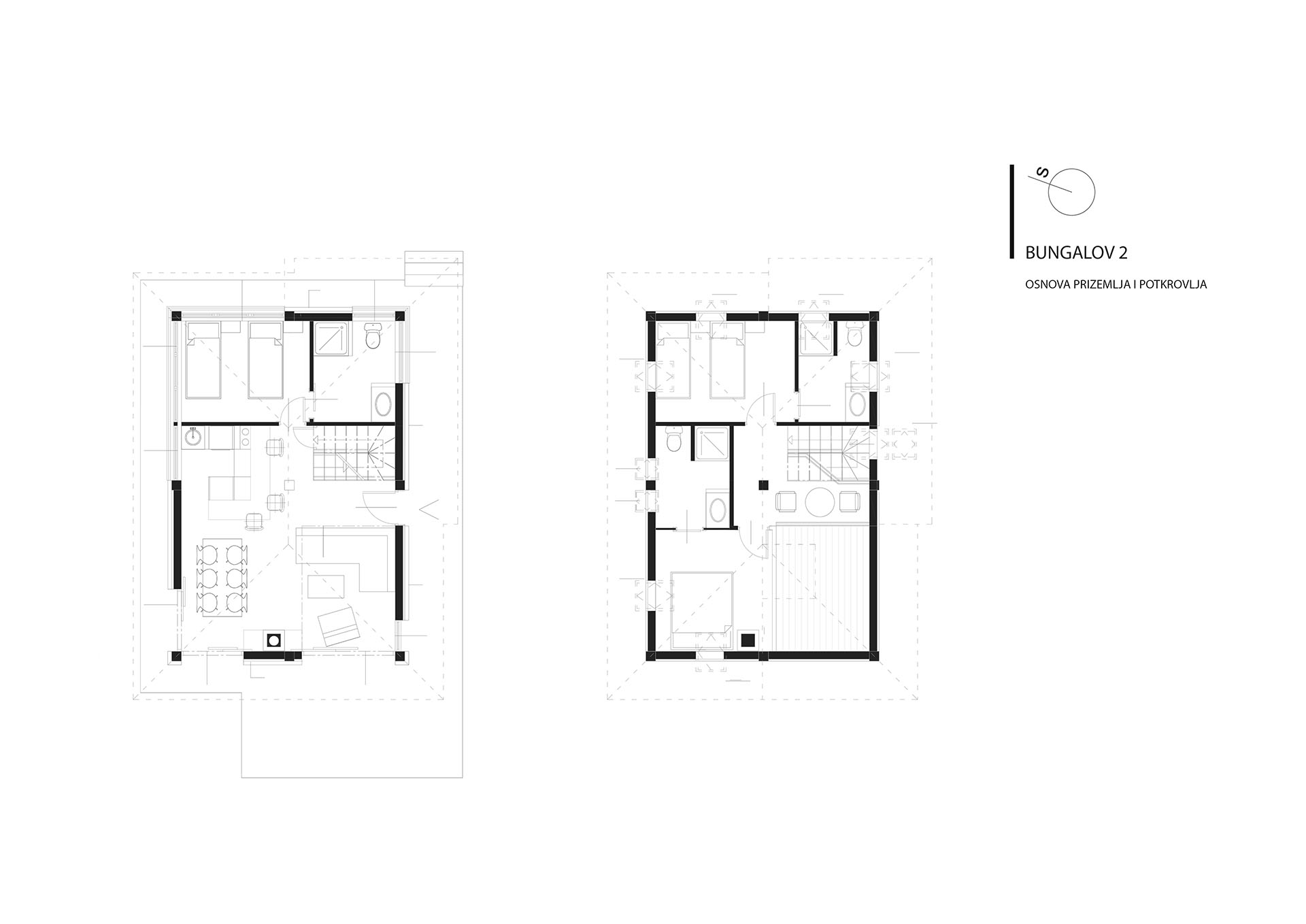
Pliva – enterijeri – bungalovi

Godina projektovanja
2009
Lokacija
Šipovo

TuristiČko rekreativni kompleks Sastavci na Plivi

Bungalovi, njih osam, stav je bio da ljudi unutra dobiju pun komfor. Prostor je podijeljen na tri dijela. Prvi je krajnje klasična postavka trpezarija sa kuhinjom na jednoj i dnevnim boravkom sa garniturom za sjedenje na drugoj strani ,,kao kod kuće”, drugi je galeriski prostor sa najljepšim pogledom kroz stakleni krov objekta i treći sobe za spavanje. Ovakva organizacija podrazumijeva poštovanje i zadovoljenje različitih potreba ljudi koji ovdje dolaze. Enterijerski tretman ovih strukturalnih dijelova je da drvo preovladava, a kamen je ušao sa fasada i unutra tek toliko da poveže enterijer i eksterijer. Zavjese, lusteri, slike u svakom bungalovu drugačije i jedinstvene da daju topline prostoru u koji se rado dolazi.