Porodična kuća na Laušu

Godina projektovanja
2010
Godina izgradnje
2012
Status
izgrađeno
Lokacija
Banja Luka

Porodična kuća na Laušu, banja luka

Na petom kilometru od centra grada u pravcu jugozapada na blago zatalasanim padinama nalazi se naselje Motike gdje se na jednom od uzvišenja orjentisanom u pravcu juga nalazi porodična kuća Arnautović.

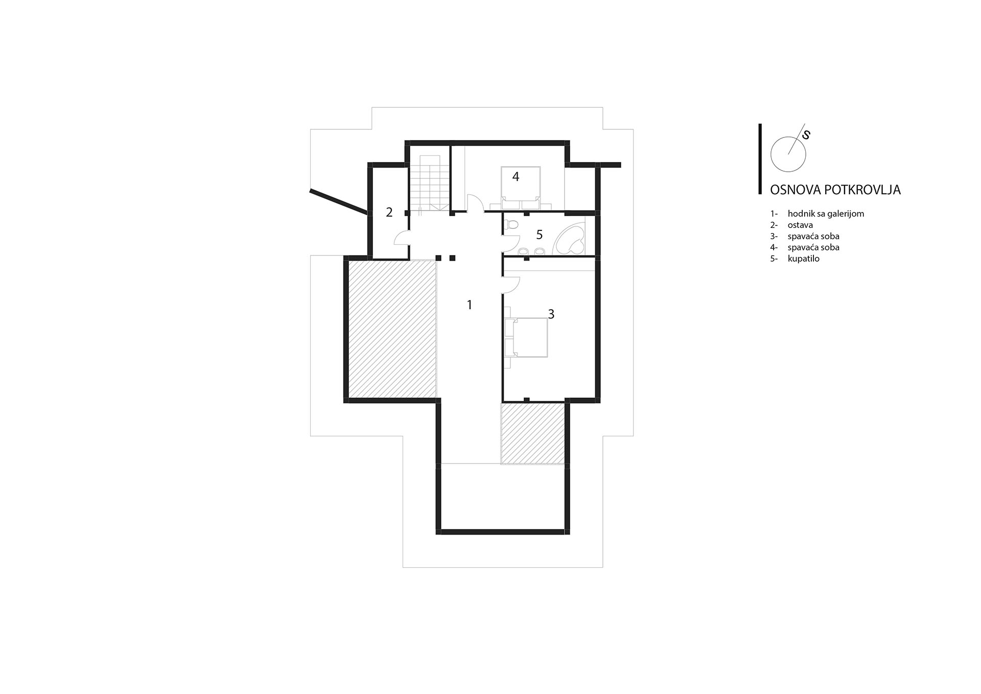
Želja porodice je bila da se objekat ,,sjedini” sa okolinom pa se pomoćni prostori spustaju u suteren da bi prostori za boravak bili što veći, svjetliji i direktno na terenu, a sobe za spavanje ,,podvuku” pod krov koji je sto niži i ne narušava oblik proplanka. Tako zadani okvir je ispoštovan na obostrano zadovoljstvo.