Kuća u centru grada, urbana vila za petočlanu porodicu i odvojenim stanom na potkrovlju smjestena je na maloj parceli te je težnja bila da se što više parcele ostavi pod zelenilom iz čega je proizašao vertikalizam objekta i relativno mala kvadratura osnove.
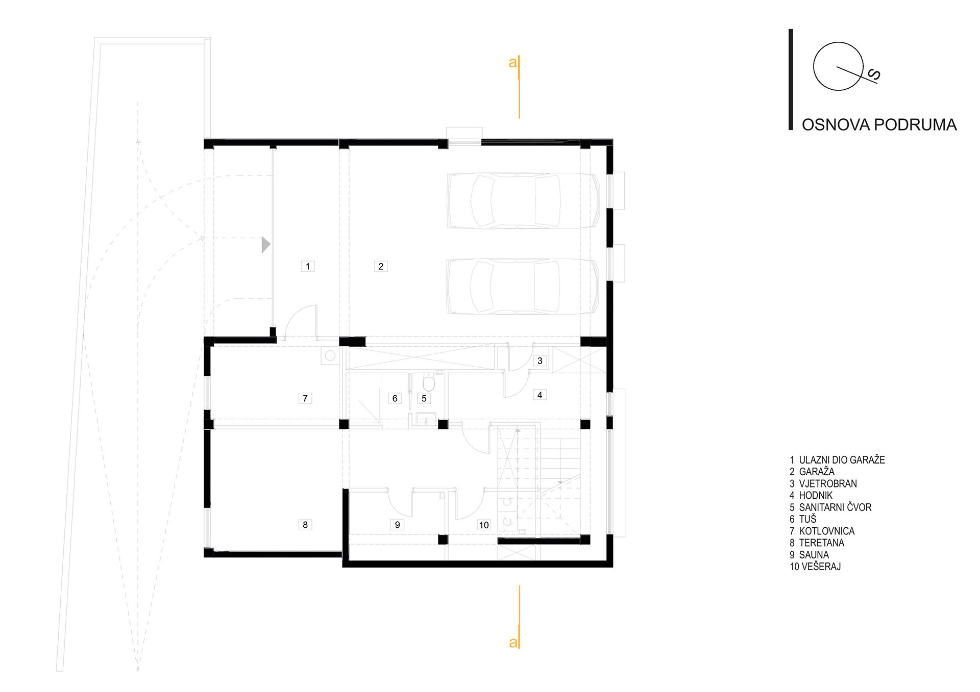
Na prizemlju je dnevni boravak sa trpezarijom, kuhinjom i radnom sobom, a na etaži prvog sprata je grupa za spavanje sa gardarobom i kupatilima. Poseban ulaz iz dvorišta, stepenicama vodi do potkrovlja gdje je jedinstven prostor trosobnog stana. Sve pomoćne prostorije kao sto su garaža, kotlovnica ili prostori za rekreaciju su zajedničke, za navedene stambene cjeline i nalaze se u podrumskoj etaži.
Dinamični izgled i svedene linije u stilu moderne estetike daju šarm ovoj kući koja je za razliku od klasičnog razmišljanja u kojem se u prvi plan prije svega stavljaju estetske vrijednosti, posebna pažnja posvećena zahtjevima korisnika gdje je granica pomjerena u istraživanju etičkih principa i normi u projektovanju savremenih stambenih objekata. Osim suštinskih problema projektovanja u kontekstu arhitektonski eksperiment kod ovog objekta čini istraživanje kvaliteta i načina u funkcionisanju stambenog prostora za veliki broj korisnika različitih starosnih dobi.
Nedoumice koje proizilaze iz pitanja, da li su u određenim slučajevima ideja i koncept autora nosioci osnovnih vrijednosti jednog objekta ili njegov tehnološki nivo i materijalizacija odnose prevagu, u ovom slučaju ne postoje. Učinjen je kvalitetan iskorak na polju predstavljanja ideje, ali je činjenica da materijalizacija i vizuelni efekti koje ona proizvede predstavljaju segment izuzetne brige projektanta i naručioca.