Porodična kuća i banja Osmančević

Godina projektovanja
2021
Godina izgradnje
xxxx
Status
idejni projekat
Lokacija
Banja Luka

Porodična kuća i banja Osmančević

 

Projekat je lociran u Srpskim Toplicama, nekada Gornjem Šeheru, mahala Ilidža, na blago nagnutom terenu desne obale Vrbasa, od koje je odvojen saobraćajnicom.

Komisija za očuvanje nacionalnih spomenika, na osnovu člana V stav 4. Aneksa 8. Opšteg upravnog sporazuma za mir u BiH i člana 36. stav 1. Poslovnika o radu Komisije za očuvanje nacionalnih spomenika ( Sl.glasnik BiH, broj 47/16), na sjednici održanoj 15.06.2020. godine, donijela je Odluku o proglašenju Kulturnog pejzaža Srpske Toplice (Banje u Gornjem Šeheru), Grad Banja Luka, nacionalnim spomenikom BiH. Predmetni objekat Osmančevića kuća i banja se nalaze na k.č.685/1, 686/2, 687 K.O.Banja Luka III-8 i sastavni su dio navedenig Kulturnog dobra.

Osmančevića kuća i banja, stambeni objekat potiče iz osmanskog perioda i pripada interpretaciji kuće orijentalnog tipa u BiH. Prizemlje je izgrađeno od kamena, a sprat je bondruk sistem bez prepusta. Krov je strmi četverovodni, nekad pokriven limom, danas ravnim crijepom. Ekonomski objekti u dvorištu ispred objekta, koji su nekad postojali, imaju vanjski zid od kamena koji je ujedno i ogradni zid dvorišta i na taj način zatvara navedenu cjelinu dajući joj ambijentalnu vrijednost. U sadašnjem stanju ispred zida a prema kući je prazan prostor koji je služio kao ljetna bašta ugostiteljskom objektu u prizemlju kuće.

Jugoistočno od kuće na oko 30m udaljenosti u prizemnom objektu, izgrađenom na k.č. broj 686/1, nalazi se banja poznata pod nazivom Osmančevića banja.

„Iz privatne prostorije dimenzija 2.33 x 3.07m, koja služi kao gardaroba, ulazi se u predprostor banje, dimenzija 1.42 x 2.33 m, koji vodi u krajnju prostoriju dimenzija 2.50 x 2.33m u kojoj je smještena banja. Sa galerije široke 70cm i dugačke oko 2.33m, preko jednokrakih drvenih stepenica silazi se u bazen, čije je dno za 1.50m niže u odnosu na kotu galerije. Visina od dna bazena do plafona iznosi oko 3.60m. Bazen banje je zatvoren u prizemnom objektu koji nema arhitektonskih vrijednosti. Objekat banje se upotrebljava, ali je ventilacija loše riješena, tako da je u svim prostorijama velika koncentracija vlage u vazduhu, a na svim zidovima i plafonima se stvara veoma jak kondenz vlage i uopšte se stiče utisak o neuslovnosti objekta,“ završen citat.

Za hauz je napravljeno detaljno snimanje kao i objekat Osmančevića kuće i urađena projektna dokumentacija na nivou Idejnog projekta.

Kod Osmančevića banje je zadržana samo izvornost namjene lokaliteta, a objekat je zamijenjen novim koji je oblikovan u skladu sa mjerama zaštite definisanim ovom odlukom, pri čemu je Ebin hauz poslužio kao model za oblikovanje uz prateće dijelove objekta savremene arhitektonske interpretacije, neophodne za današnje funkcionisanje objekta i potrebe korisnika.

Dispoziciono, oba objekta  su  postavljeni osom jugoistok-sjeverozapad, stambeni objekat prema Vrbasu i kako se ponovo koristi samo za stanovanje u dijelu prema zidu se formira vrt i prostor sjedenja, a zeleni dio se nastavlja i prema objektu banje u čemu je prioritet očuvanje zelenih i ambijentalnih vrijednosti parcele.

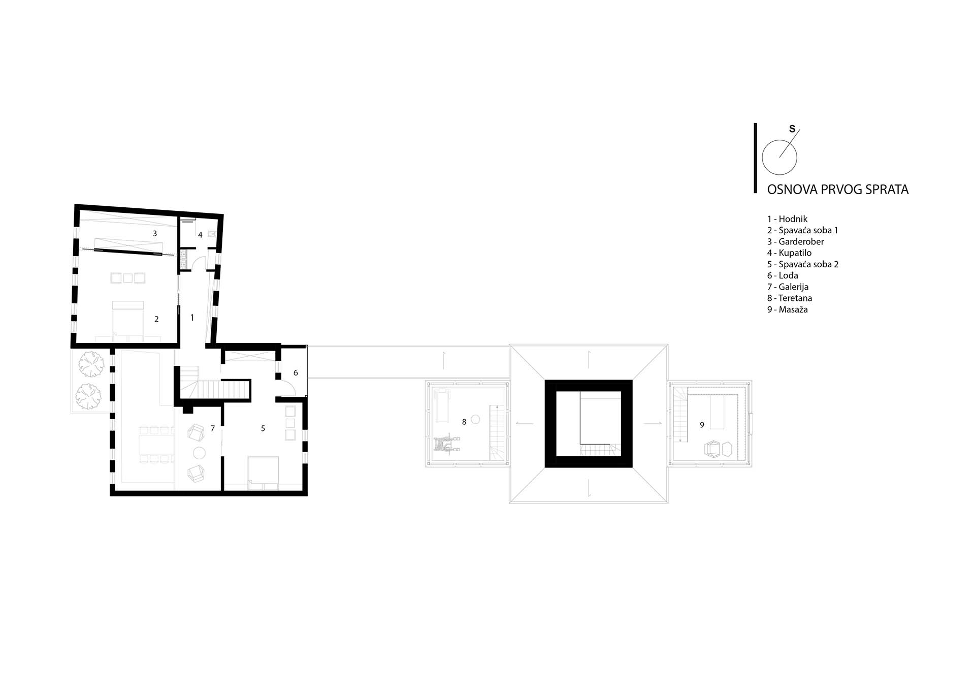
Spratnosti  P +1 je ista kako kod objekta Osmančevića kuće (objekat 1) ukupne bruto povrsine 357.59 m2, tako i kod objekata oko hauza, koji je prizemlje, ali sa visinom dvije etaže. Bruto površina (objekat 2) je 186.7 m2.

Potrebe saobraćaja u mirovanju se rješavaju u okviru parcele.

U svrhu prilagođavanja objekata savremenim potrebama stanovanja, izvršena je adaptacija određenih dijelova objekta Osmančevića kuće koja je u zatečenom stanju na nivou prizemlja imala restoran sa kuhinjom i baštom u dvorištu i na prvom spratu jednog dijela objekta, dok je stanovanje bilo na spratu drugog dijela.

Kako će novi objekat služiti samo stanovanju što i jeste njegova prvobitna funkcija, prizemlje je prostor boravka sa kuhinjom, ostavom, trpezarijom a na spratu je spavanje, tačnije dvije spavaće sobe. Nadkrivenom pergolom je povezan sa hauzom, koji je za dodatni kvalitet života a sve je oplemenjeno hortikulturnim uređenjem.

Objekat Osmančevića kuće je kubusne forme, pokriven četvorovodnim krovom, nagiba 35 stepeni ,,osnovna“ kuća i 30 stepeni objekat pored u sastavu kuće, dubokih streha i pokrivač je bio lim, trenutno je biber crijep i projektom je planirano da ponovo bude lim. Zidovi prizemlja su zidani od kamena, a na spratu je primjenjena drvena bondručna konstrukcija, sa ispunom od pletera, čatme ili ćerpića.

Hauz je zamijenjen novim po uzoru na Ebin hauz, tačnije njegov prvobitni oblik, koji je bio jednoprostorne dispozicije i kvadratne osnove (spoljni gabarit 5.10 x 5.10m). Zidovi hauza su debljine 65 cm, zidani su lomljenim kamenom,spolja dersovani, unutra malterisani a kao vezivno sredstvo korišten je krečni malter. Sve dimenzije i izgled navedenog hauza i način gradnje su autentični po kartonu spomenika koji je izradio Republički zavod za zaštitu kulturno-istoriskog i prirodnog nasleđa Republike Srpske. Dno bazena koje je nekad bilo pošljunčano sada je kameno. Kako je navedeni hauz “poslednje godine 20.vijeka dočekao u veoma ruševnom stanju a zbog neprimjerenih sanacionih intervencija na banji poduzetih u proteklih nekoliko godina,sadašnji izgled banje je zadržao vrlo malo od svog prvobitnog izgleda…“navodi se u navedenoj Odluci.

Temelji kuće kao i zidovi prizemlja izvedeni su od lokalnog kamena krečnjaka u krečnom malteru. Zidovi su konstruktivno uvezani hrastovim hatulama. Pregradni zidovi prizemlja, kao i zidovi sprata objekta su izvedeni u drvenoj bondručnoj konstrukciji sa ispunom od ćerpića. Krovna konstrukcija je dvostruka kosa stolica od tesane hrastove građe. Krovni pokrivač je lim. Objekat je na spratu malterisan laganim krečnim malterom a u prizemlju je kameni zid.

Objekat hauza je kameni i po navedenom kartonu spomenika, a dodanti objekti stakleni u kombinaciji sa kamenom savremenog načina oblikovanja, kao još jedan od načina različitosti, obzirom na vrijeme izgradnje.