Porodična kuća Jajce

Godina projektovanja
2014
Godina izgradnje
2015
Status
izgrađeno
Lokacija
Jajce

Porodična kuća jajce

Organizovana na dvorištu okrenutom prema istoku u mirnom i ozelenjenom dijelu grada, kuća se pojavljuje kao skup neprozirnih lejera koji dvosmisleno izražavaju masivno fizičko prisustvo i manipulativnu snagu da nam se predstave kao apstraktna oblikovna kompozicija.

Kubično svedena forma, sa naglašenim ramom koji štiti od pogleda sa ulice, predstavlja slobodnostojeći objekat, otvoren na sve četiri strane. Za razliku od ostalih kuća u okruženju, koje se otvaraju prema ulici, ova kuća stvara intimni mikroambijent, orjentišući unutrašnje prostore uglavnom ka njemu. Kuća se bavi negacijom konteksta, ali nedvosmisleno predočava svoje drugačije prioritete.

Materijalizacija kuće bila je najistaknutiji element koji određuje njenu arhitekturu. Umotana u gladak i monolitan zid koji joj pruža fizičku čvrstoću, sa povremenim vertikalnim prekidima u punoj visini transparentnim otvorima, karakterističnim prozorima i tananim terasama daje nešto upečatljivo i novo.

Projektovana da sačuva posebne sekvence intimnog i da na nekim mjestima zamagli jasnu vezu između spoljašnjeg i unutrašnjeg prostora, glatka monolitna opna je kombinovana sa kutijama od aluminijuma i stakla minimalne potrebne konstrukcije.

Projektovana na padini, osnova kuće gradi seriju jednostavnih unutrašnjih prostora, sa pažljivo razmotrenim nizanjem i komponovanjem svake sobe, tako da prostori sami sebi diktiraju hijerarhiju.

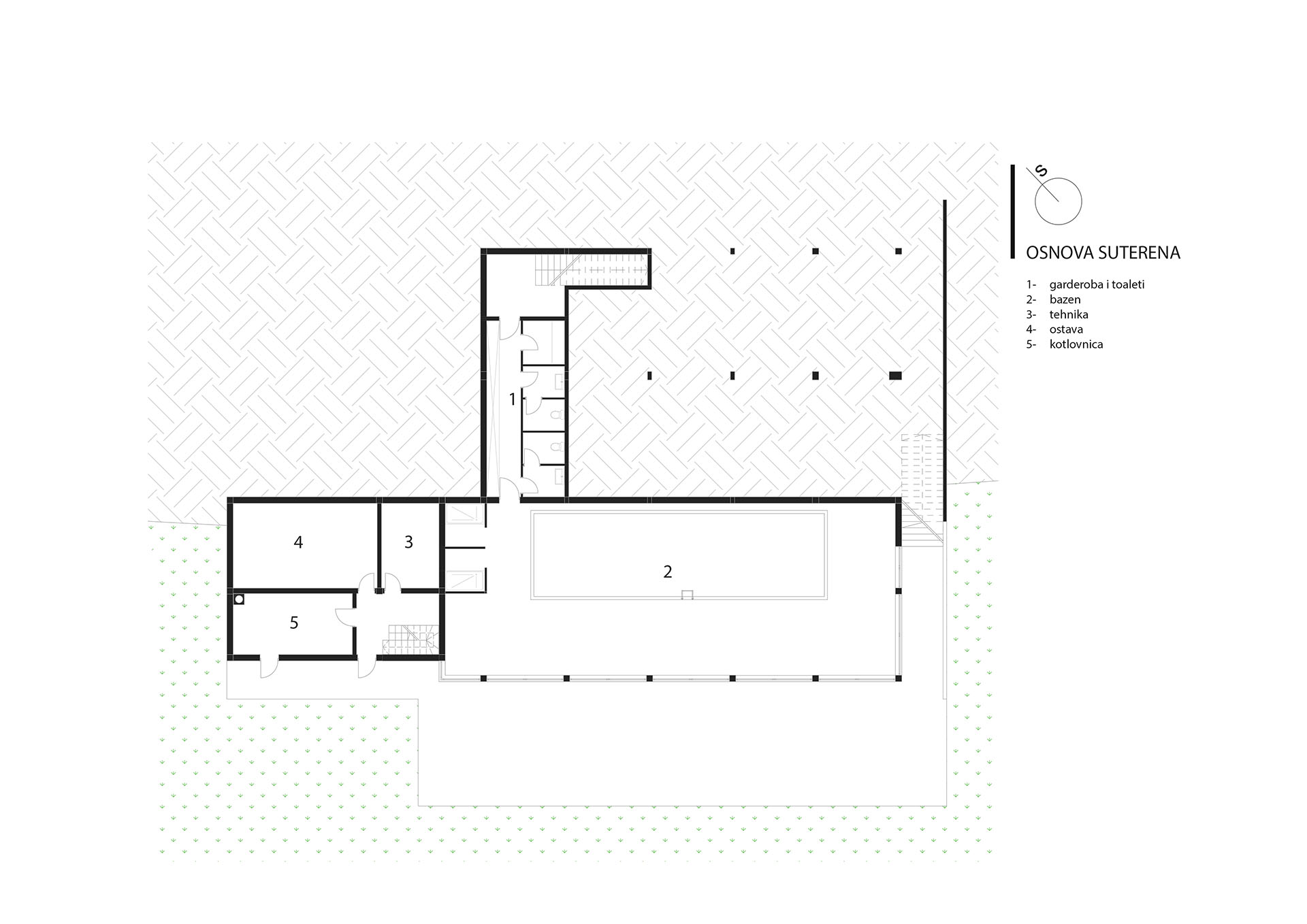
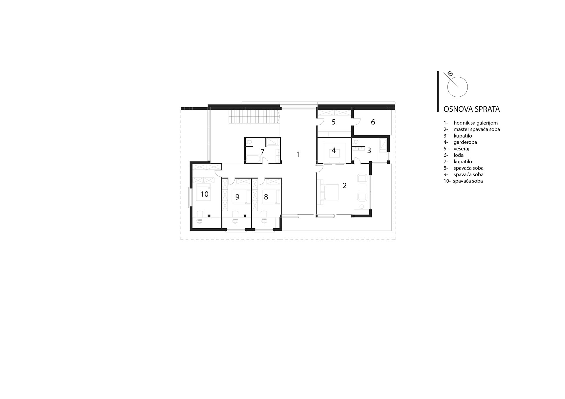
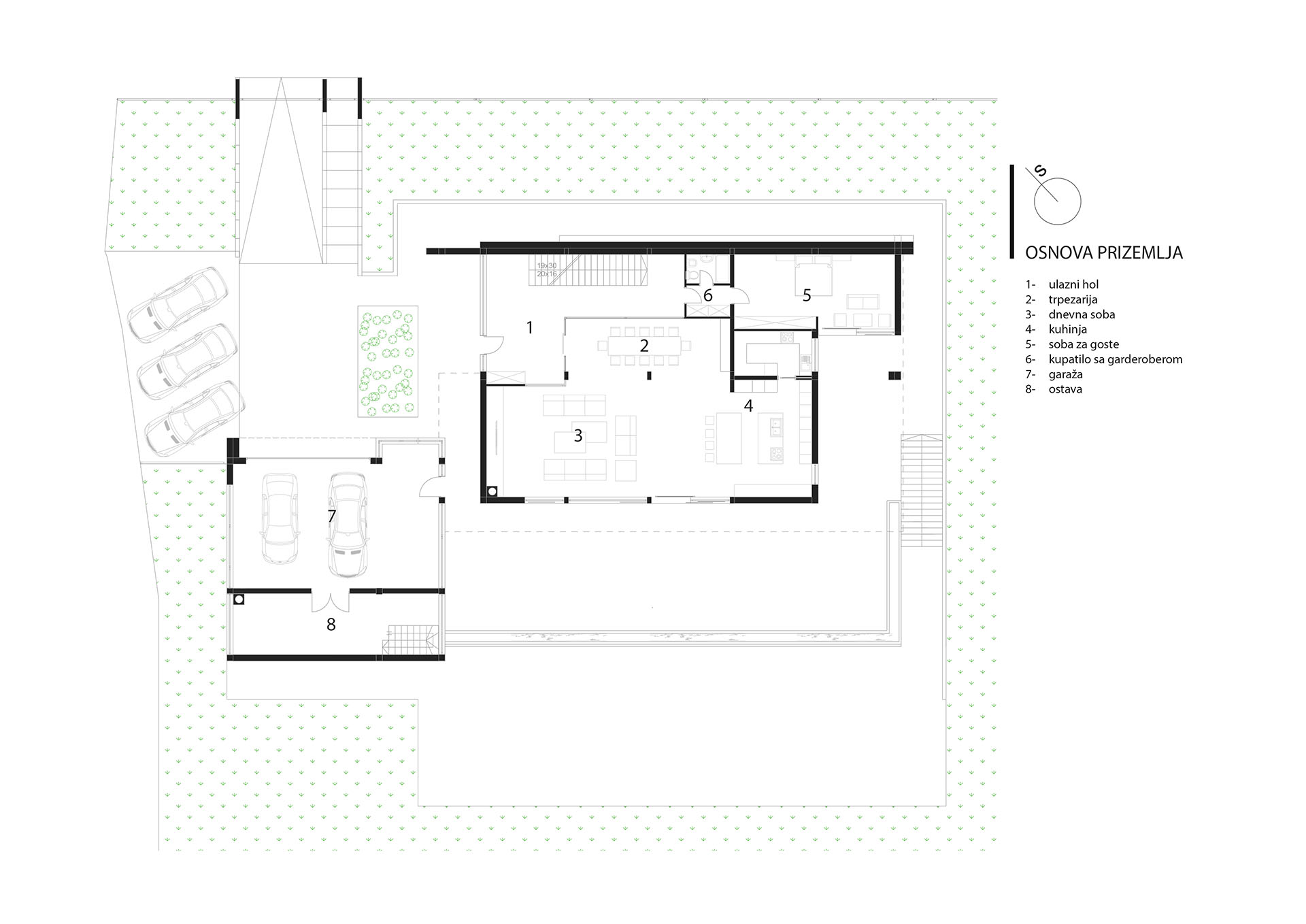
U suterenu se pored servisnih prostorija nalazi zatvoreni bazen sa pratećim sadržajima, kao i prostor za igru djece koji je ispod terase direktno povezan sa dvorištem. U okviru visokog prizemlja nalazi se dnevna, a na spratu noćna zona sa izuzetno raskošnim prostorom za vlasnike kuće.

Svaka od ove tri zone je projektovana tako da ne predstavlja poseban odjeljak, već razvijenu sekvencu prostora, artikulisanu tako da iskoristi prednost beskrajno promjenljivih kvaliteta prirodne svjetlosti i postojećih pogleda i veza sa dvorištem.

Posvećenost dostizanju najvećih mogućih standard u svim aspektima projekta bila je naročito važna.