Poslovni objekat u Z. Čelara 2

Godina projektovanja
2023
Godina izgradnje
xxxx
Status
Glavni projekat
Lokacija
Banja Luka

Poslovni objekat,  Mijatović

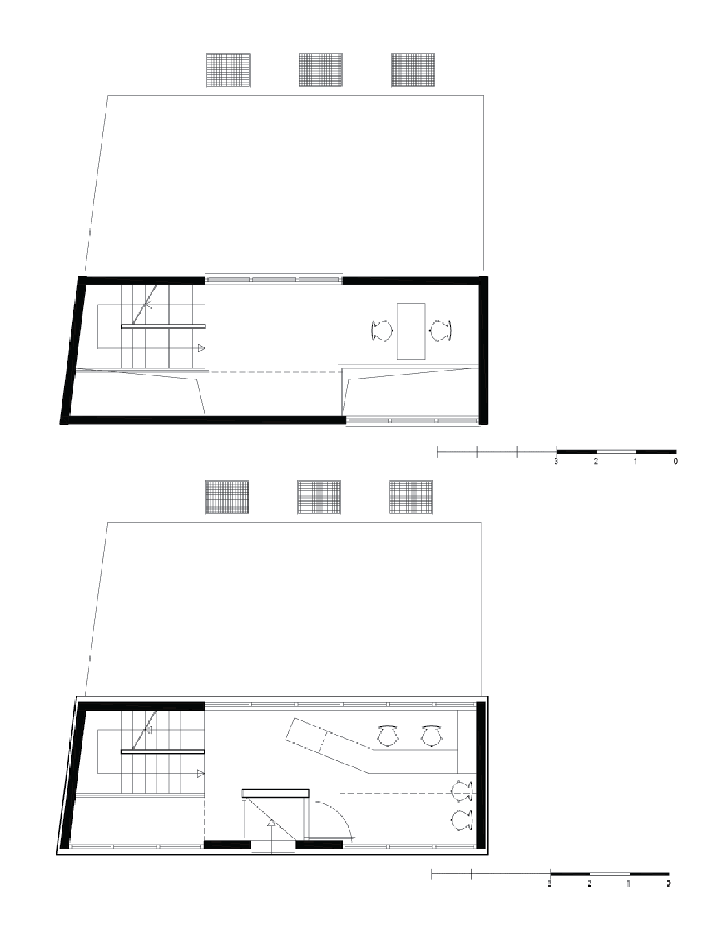
Planirani poslovni objekat se nalazi u istorijskom jezgru grada Banjaluke, u neposrednom kontaktu sa parcelom džamije Ferhadije i predstavlja dio planiranog uličnog niza duž Ul. Zdravka Čelara, orjentisan i prema ulici Kralja Petra I Karađorćevića. Gabarit objekta je limitiran površinom parcele od svega 100 m2 koja predstavlja recidiv orijentalnog nasljeđa nekadašnje čaršije sa usitnjenom strukturom parcela i objekata-dućana koji su nekada tu egzistirali. Urbana transformacija ćelokupnog prostora kroz protekli period dovela je do redefinisanja urbane strukture u neposrednom okruženju džamije, koja je i dalje u ograničenim gabaritima, kako ne bi ugrožavale vizure i zonu nacionalnog spomenika.

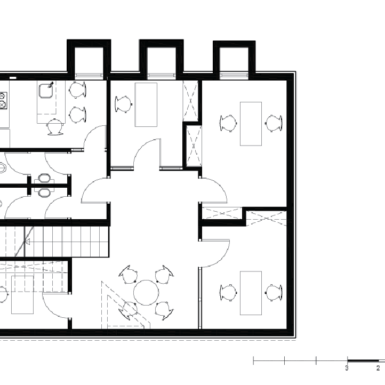
Ulična fasada planiranog objekta je direktno vezana na trotoar ulice. U dvorištu, u prizemlju se nalazi terasa koja je formirana od ravnog prohodnog krova dijela podrumske etaže. Na parceli se nalaze i tri svjetlarnika kojima se osvjetljava podrumska etaža. Unutrašnjost objekta je organizovana kao kancelarijski prostor u tri nivoa. Podzemni nivo je maksimalno iskorišćen, s obzirom na mogućnosti parcele, dok su prizemlje i galerija suženog gabarita, s obzirom na date uslove regulacije. Objekat, upakovan u kutijastu formu armirano-betonskih zidova, obložen perforiranim limom, predstavlja neutralnu arhitekturu, koja se svojim gabaritima, formom i materijalizacijom ne nameće u prostoru, a ipak odaje autonomnost, postavljajući decentne mjere i granice prostornih odnosa u delikatnom kontekstu.