Restoran Monumental

Godina projektovanja
2013
Godina izgradnje
2015
Status
izgrađeno
Lokacija
Srbac

Restoran Monumental

Uprkos modernizaciji ne smijemo zaboraviti da gradske centre odlikuje nešto vise od čitljivih korjena urbanizacije, staro jezgro, koje je nemoguće nadomjestiti savremenim tehnologijama, ma koliko grad bio mali ili veliki, zarivanjem globalizacije u svaku poru… a to je Genius Loci. Duh mjesta, kao sasvim iracionalan pojam, ponekad oboji urbani mit, katkad prisvoji ime legende nekog kvarta, a najčešće useli gradsku kafanu sa baštom. Mjesto okupljanja u kojem se svako osjeća kao da pripada baš ovom gradu i nijednom vise.

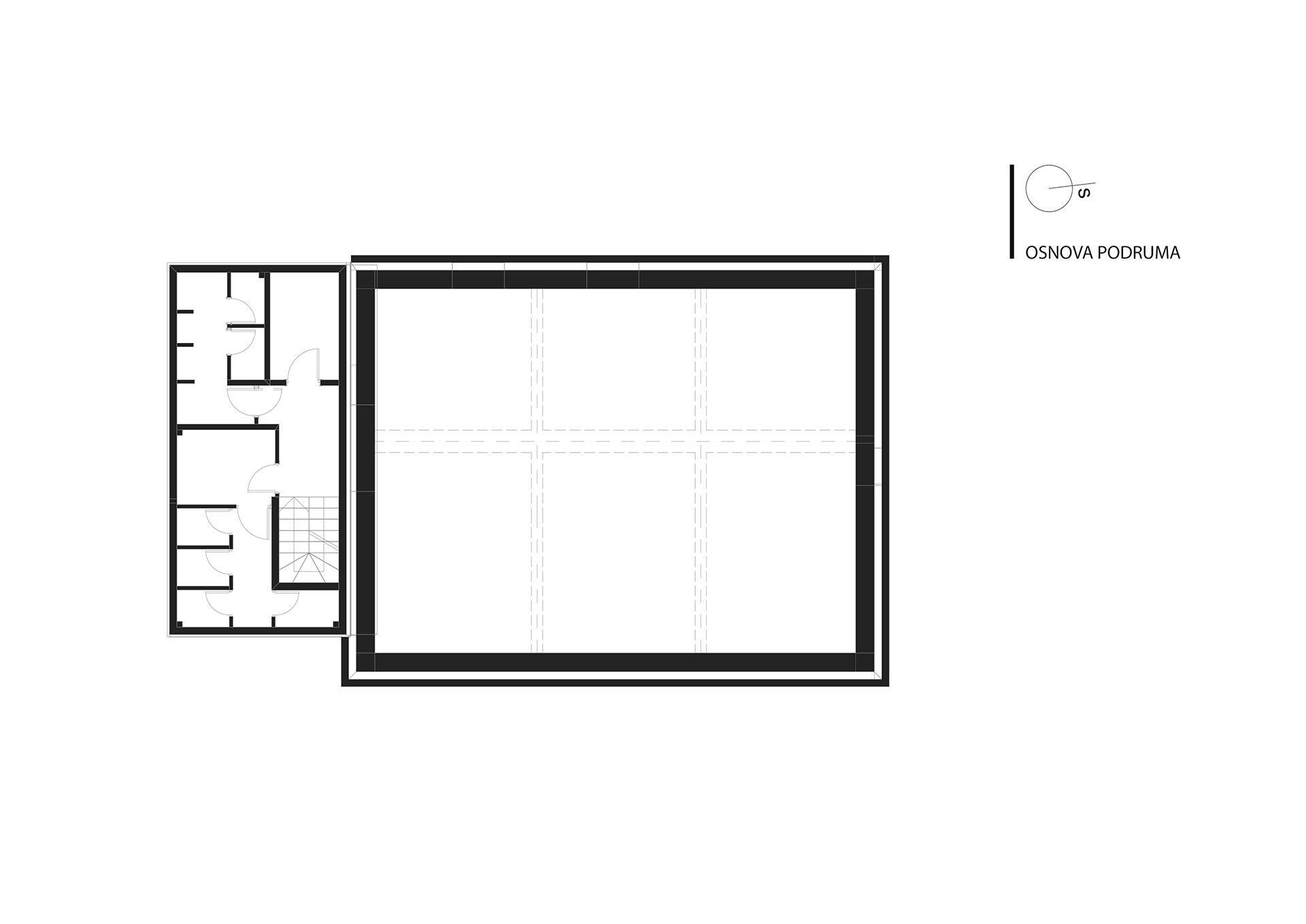
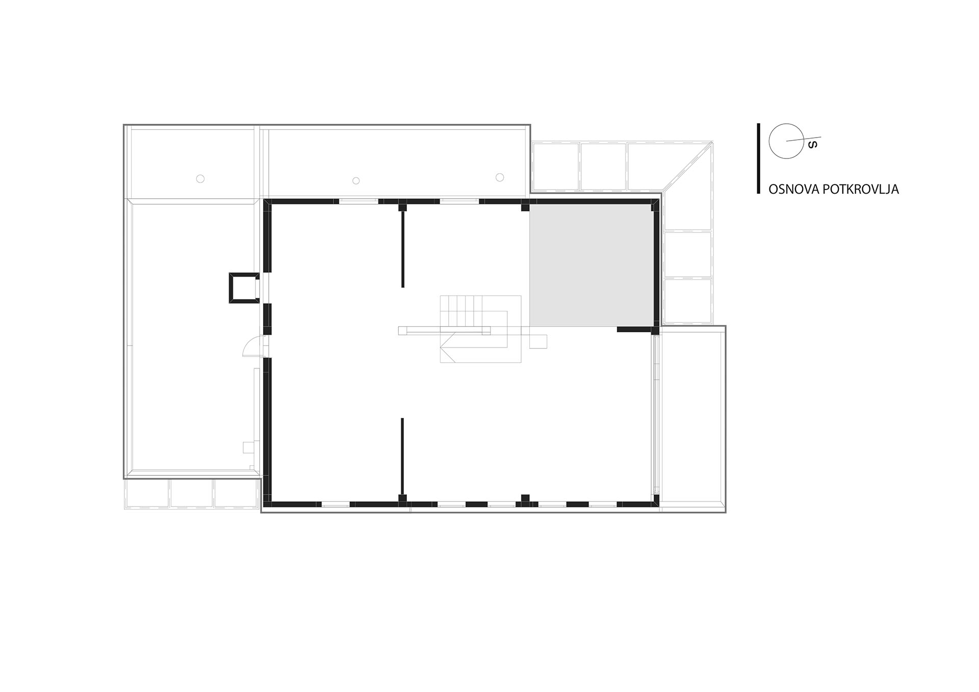
Monumental je jedan od simbola Srbca. Objekat sagrađen dvadesetih godina dvadesetog vijeka i u njemu je bila ,,mehanska,, djelatnost u kojoj je dato ovlaštenje za postavljanje bilijara, istih tih godina. Novi vlasnici su poštujući te podatke željeli da zadrže postojeći objekat iako je rekonstrukcija bila zahtjevnija u svakom pogledu od rušenja i izgradnje novog objekta. Tako smo projektom se vezali za objekat koji zauzima važno mjesto u životu Srbčana. Nakon rekonstrukcije željeli smo uticati i na život nešto mlađih sugrađana. U suštini, želja je bila da reinterpretiramo atmosferu na jedan nov i savremen način.

Bašta nije bila u funkciji ranijeg objekta, ali red starih lipa doprinosi novom imidžu Monumentala. To je prostor koncipiran tako da se gosti osjećaju opušteno, zaklonjeno i sigurno, a pod nastrešnicom može da svira orkestar i muzikom boji atmosferu.