Suštinu procesa kreiranja ove porodične vile je njen značaj u Ul. P.Kočiča koja je zaštićena kao ambijentalna cjelina. Posebno ulična fasada koja se morala zadržati je određivala naš pristup oblikovanju novog dijela objekta. Projektovane su zasebne cjeline formirane po etažama koje zajedno čine jedinstvenu formu, definišući plan objekta na parceli.
Objekat ima dva pročelja pošto je interpolirana u uličnom nizu a zatvoreno pročelje prema ulici je najupečatljivija slika i glavni motiv objekta uz skladnost volumena gdje je dio mase ukinut na koti postojećeg prizemlja da bi se omogućio ulaz za automobile. Drugo pročelje dimenzionisanjem otvora prema dvorištu i jugozapadnoj strani omogućio je primanje intenzvne svjetlosti i stvaranje okvira-ramova za prizore okruženja.
Varijacije svjetla i sjenke sa uvučenim i isturenim površinama sažimaju i ističu volumen objekta, pojačavajući osjećaj interne i eksterne dinamike. Dinamika je I u razlici oblikovanja postojećeg prizemlja gdje se zadržava klasicistička plastika fasade I potpunoj jednostavnosti fasade dograđenog dijela.
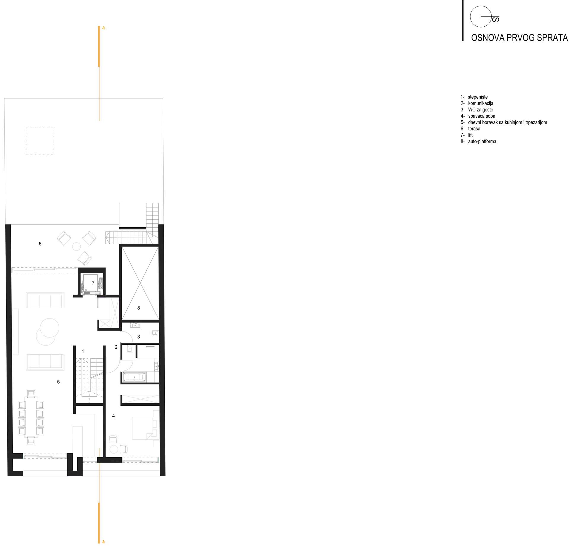
Objekat površine 1175.59m2 u prizemnoj etaži ima prostore za dnevni boravak sa kuhinjom I trpezarijom te tri sobe sa kupatilima I poslovnog je karaktera,za prijem gostiju. Silazeći u podrumsku etažu je prostor bazena sa svim pratećim sadržajima gardaroba,sauna,tuševi te na uličnoj strani vinoteka sa priručnom kuhinjom. Tu su I neophodna kotlovnica,veš kuhinja I ostale pomoćne prostorije.
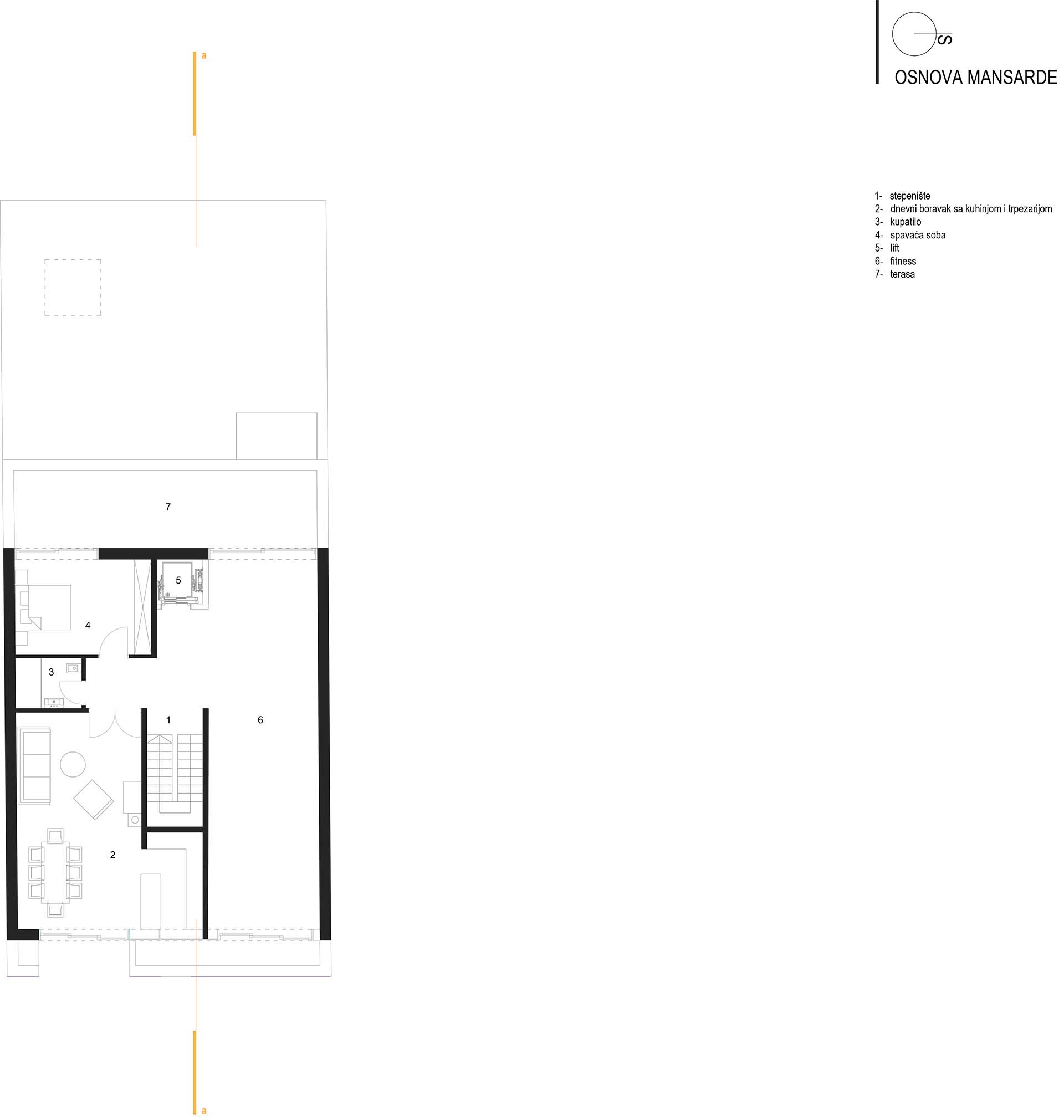
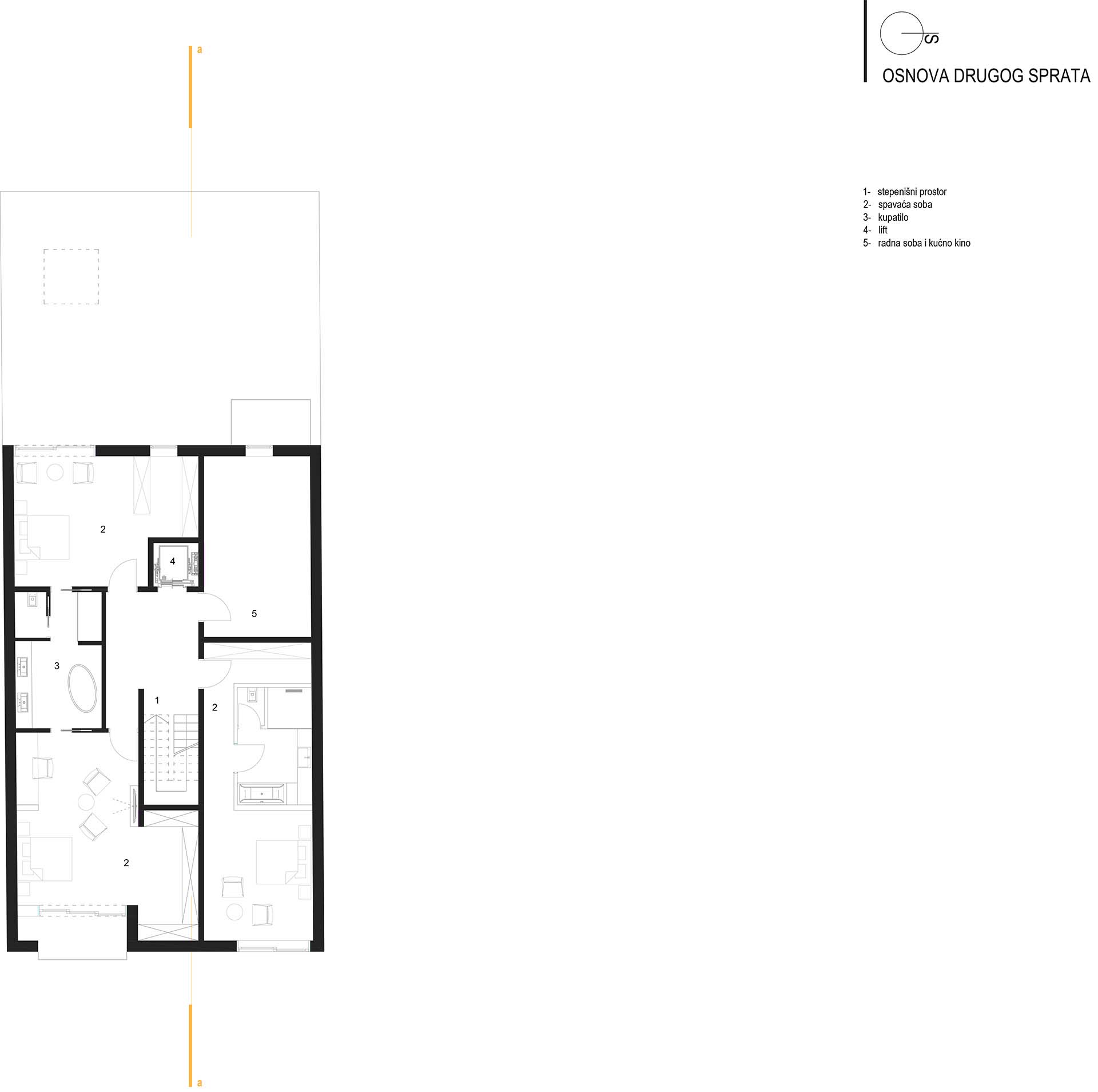
Na prvom spratu je stan vlasnika objekta tačnije njegov dio za Dnevni boravak a na drugom sobe za spavanje sa kupatilima I gardarobama.
Objekat na povučenoj etaži ima prostore za rekreaciju I manji stan. A svaka od etaža ima izlaz na velike terase prema dvorištu.
Obično se kaže da su projekti nešto poput portreta klijenta i svaki je važan, ali ovaj je čini nam se najviše to, jer se sa klijentom kroz duži period razgovaralo osmišljavajući sve potrebe i iznalazeći način da se one zadovolje.
Svaka kuća je i priča o životu. Karakteristika porodične vile Bijelić leži u dvoznačju: istovremeno je asketski suzdržana u novoprojektovanom dijelu i pokrenuta razigrana u prizemlju, Izražava težnju za univerzalnim redom u kojem pulsiraju emocije. Nadamo se da se čita kao ispunjen uslov za ugodan život svih članova porodice i njihovih gostiju ,zajednici koja se temelji na poštovanju drugih.