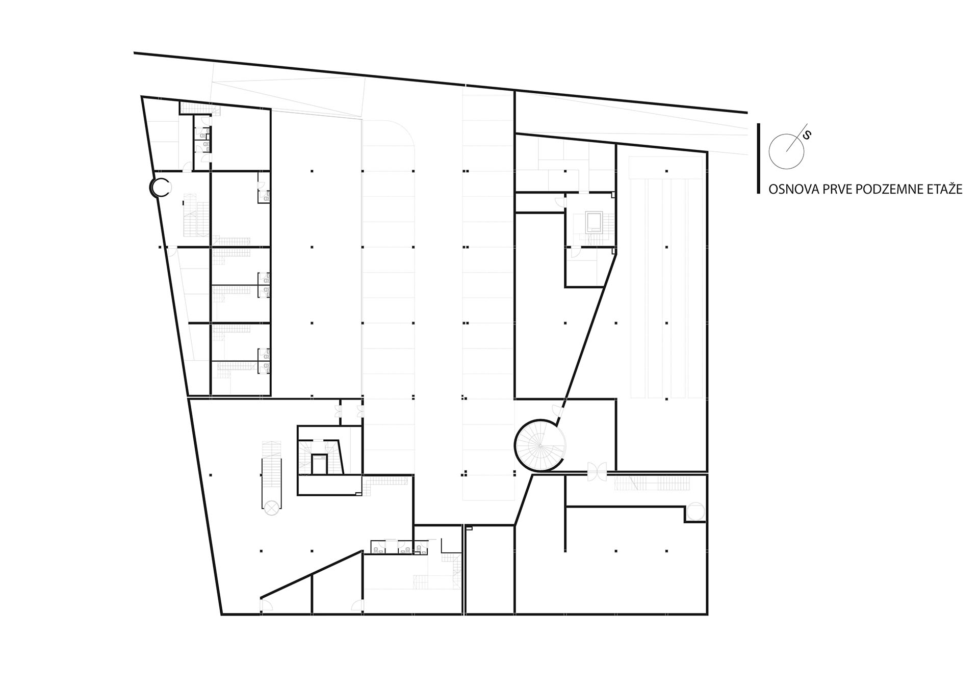
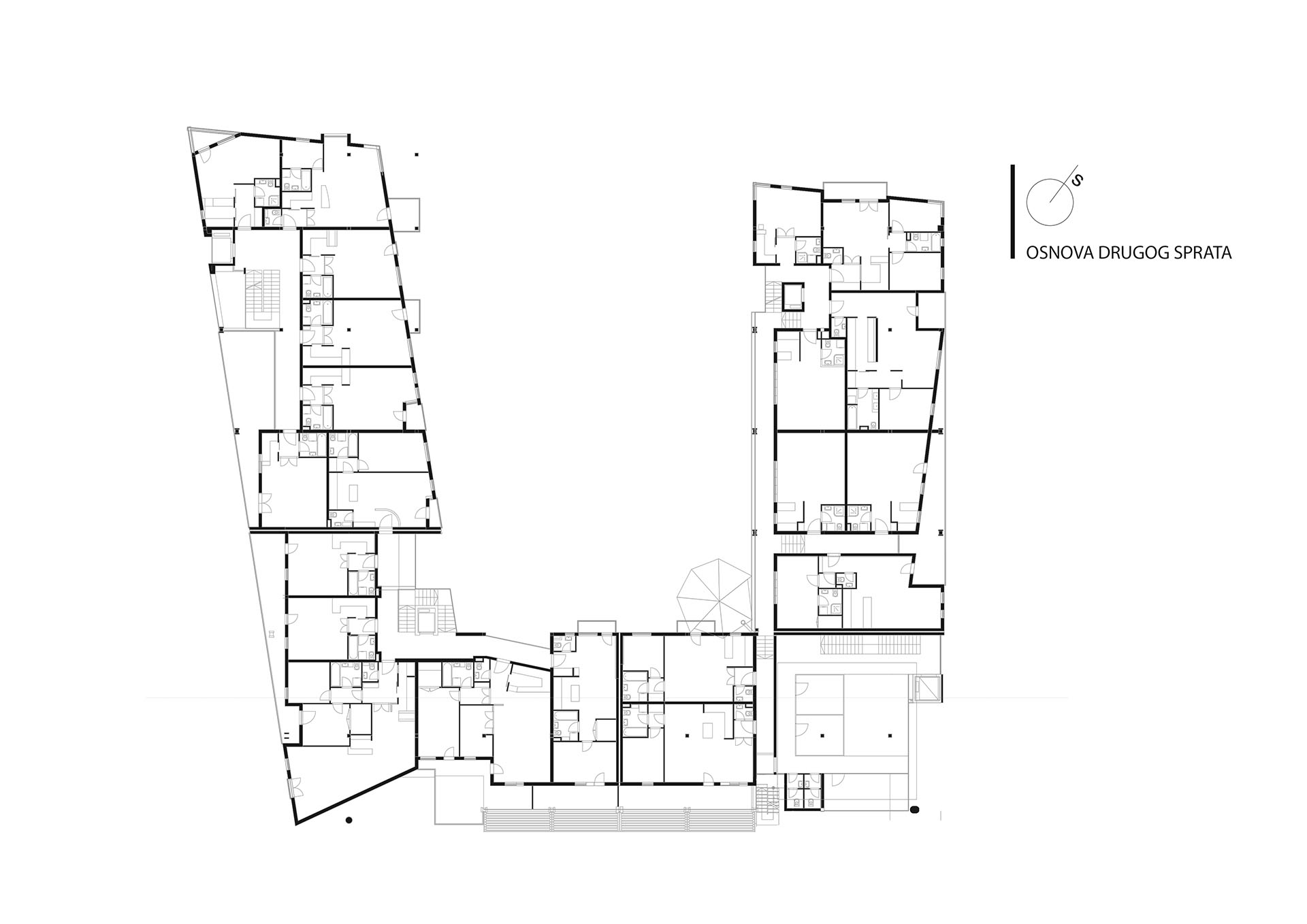
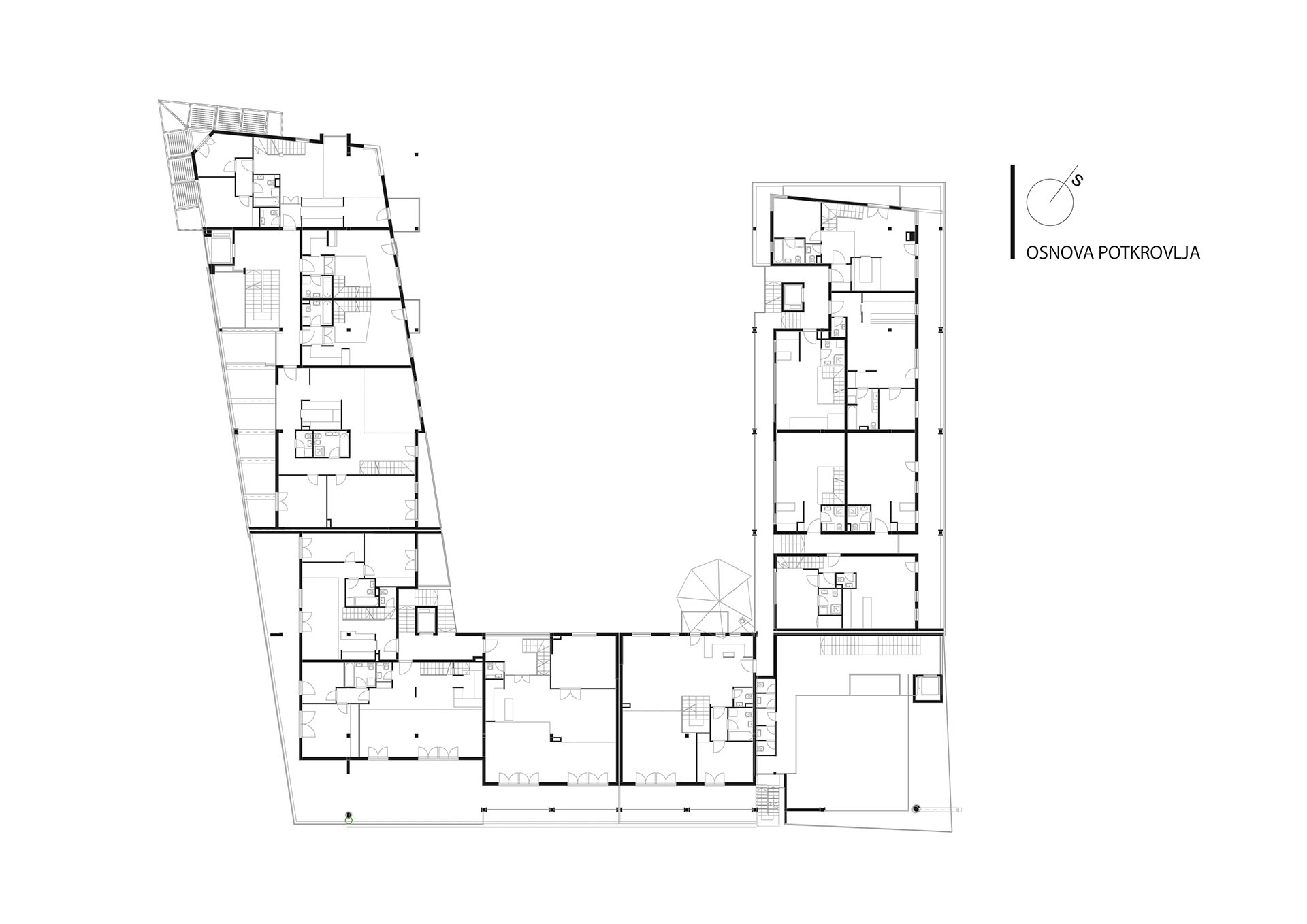
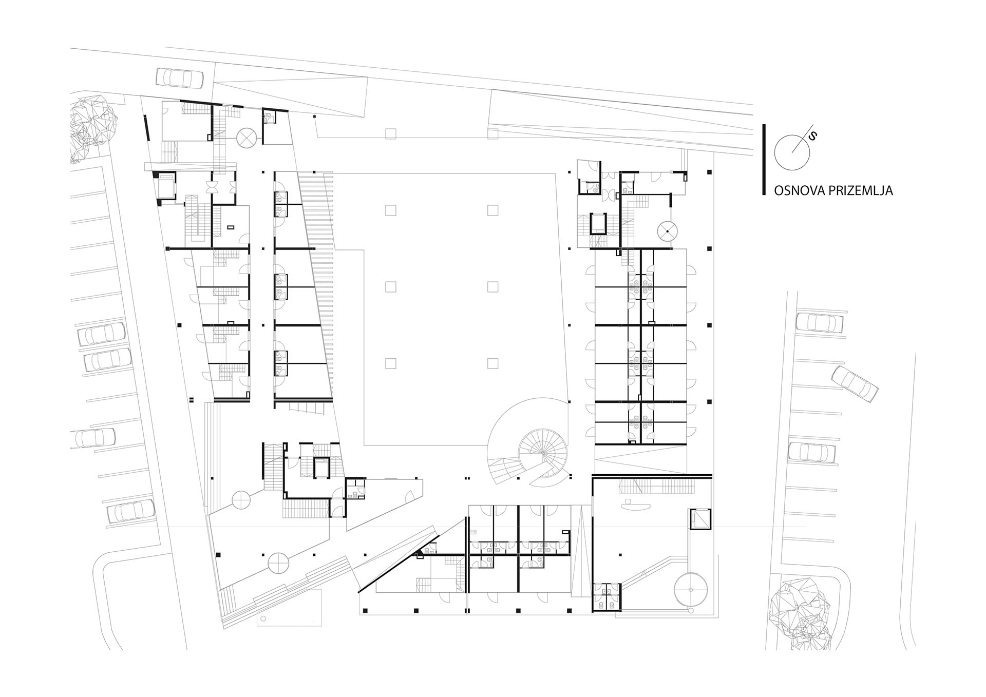
Stambeno poslovni objekat LUKA u ul. Vojvode Živojina Mišića

Godina projektovanja
2000
Godina izgradnje
xxxx
Status
Glavni projekat
Lokacija
Čelinac

Stambeno poslovni objekat u ul. Vojvode Mišića

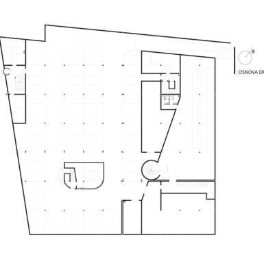
Puno je različitih funkcija u ovom objektu, ali glavne: tržni centar, biološko hemiski institut, poslovni prostori u prizemlju različitih namjena, stanovanje, izdižu ga kao objekat iznad nivoa ,,obične” gradnje. Pored namjere da unaprijedi urbanističko okruženje i da mu da svojstven pečat LUKA u sebi nosi i želju autora da daju sugestiju u kom smijeru bi ovakva vrsta objekata trebala da se razvija i predstavlja nov koncept objekata kod nas. Kontekst gradnje, struktura i tehnologija ovakvog objekta jesu oblasti sa kojim se arhitekti upoznaju, ali i sve vise razrađuju i rješavaju.

Prodaja je svakako glavna stavka čitave investicije, tako da je funkcionalno rješenje moralo biti maksimalno jednostavno i efikasno za korištenje svakog od dijelova kompleksa. Ovakvi objekti zahtijevaju krajnje minimalistički pristup sa primarnim formama pojednostavljene geometrije. Razrada planova fasada predstavlja segment rada gdje autori pokušavaju da na najbolji način ,,uklope”objekat u okruženje. Stepen takve razrade određuje, na neki način, i konačan rezultat u tom domenu. To je i mjesto međutim, za pokušaj stvaranja jedinstvenog karaktera zgrade.

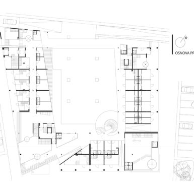
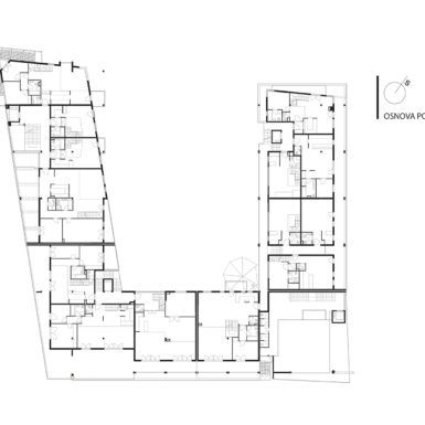
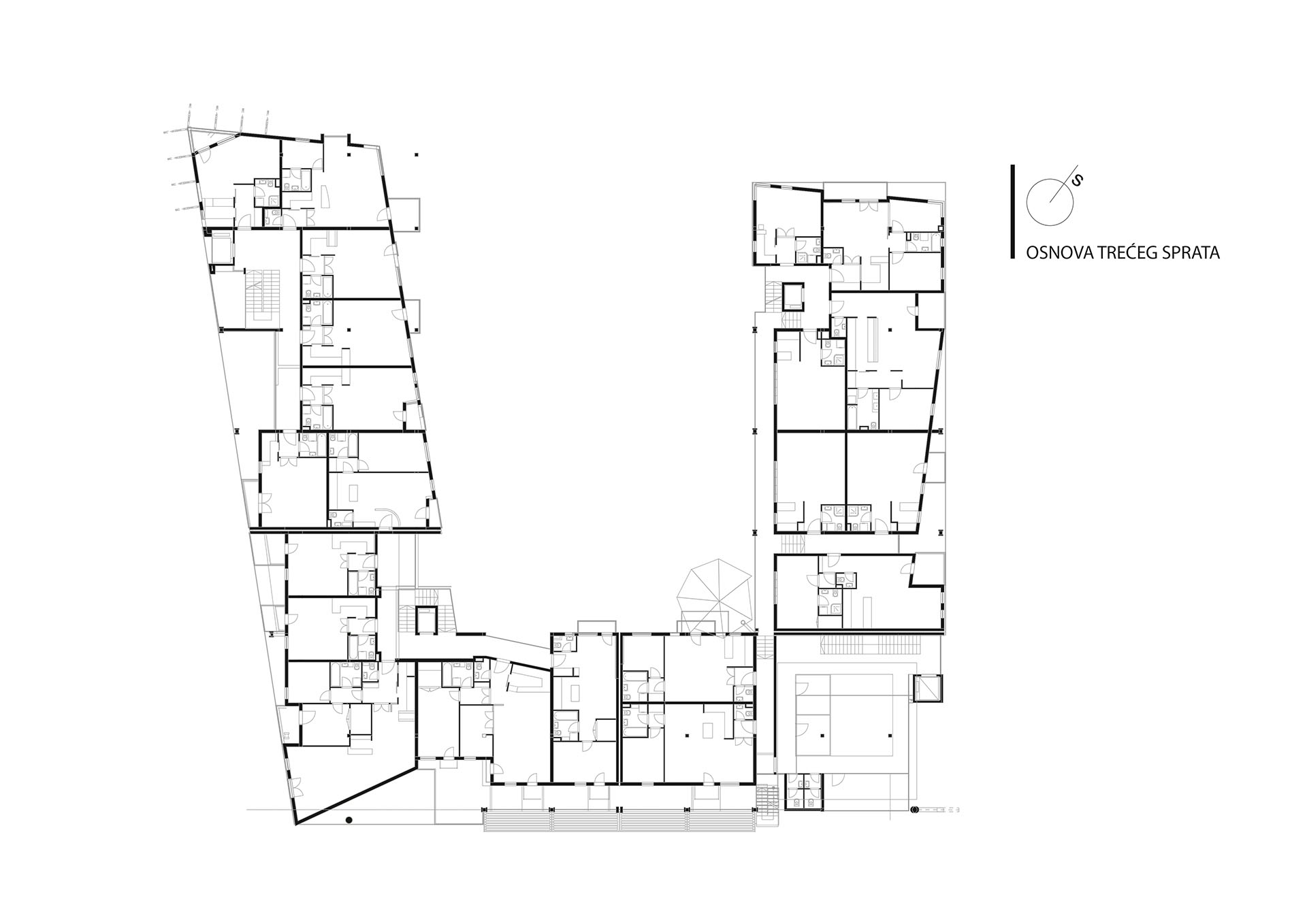
Težnja da se jasno izrazi način funkcionalne organizacije, kompaktno i trokrako rješenje volumena nametnulo se kao jedino prihvatljivo sa stanovišta estetike takođe, ali i kao racionalan odgovor na pitanje o ekonomičnosti. Objekat obzirom na svoju kvadraturu djeluje manji i uklapa se u okolni prostor, dajući mu dodatni kvalitet.

Na poslovnom dijelu objekta primarni materijali spoljašnje obrade su staklo i aluminijum, a na nekim dijelovima i alukobond kao sekundarna obrada, a sve iz razloga dodatnog akcentiranja određenih dijelova cjeline. Tako je na stambenim dijelovima korišteno drvo kao fasadna obloga u kombinaciji sa demit fasadom.