Stambeno – poslovni objekat Velika Kladuša

Godina projektovanja
2020
Godina izgradnje
2022
Status
izgrađeno
Lokacija
Velika Kladuša

Stambeno poslovni objekat Velika Kladuša

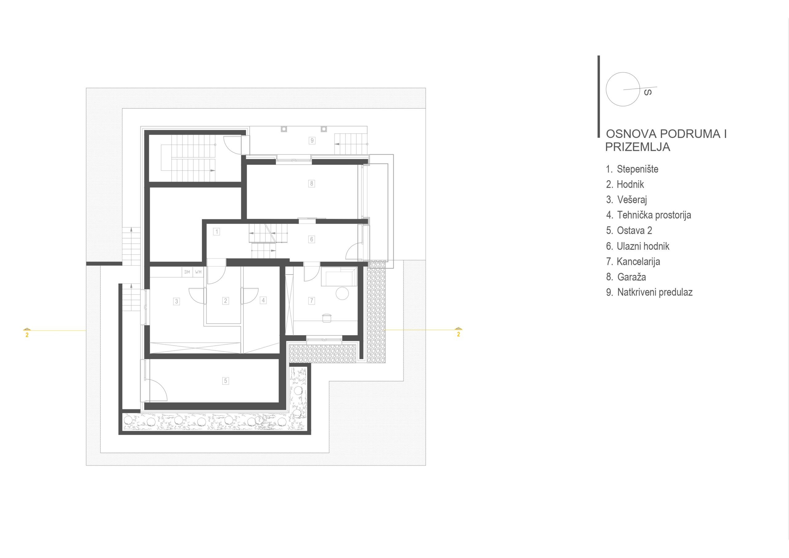
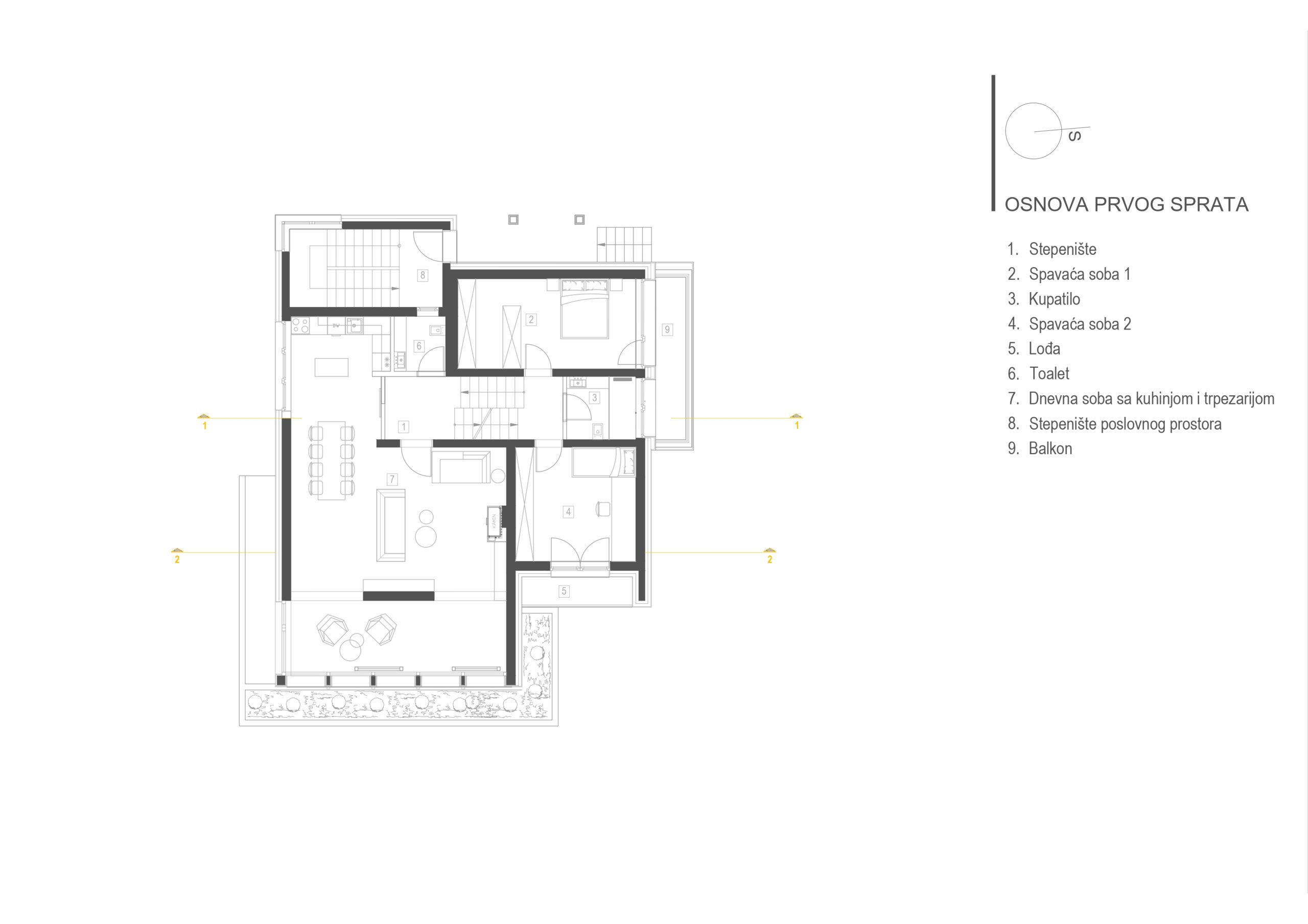
Porodična kuća, dom gdje su sve prostorije smještene u jednu pravougaonu kutiju, dugačku, a široku, različitih visina jer se na jednoj strani zakačila za padinu na nivou suterena, a na drugoj nalegla na istu na nivou prizemlja. Za razliku od modernističkog pristupa, koji daje utisak da je kuća postavljena na tlo, ova kuća je zagnjurena u zemlju što doprinosi spoju enterijera i eksterijera.

Planirana je za dom četvoročlane porodice, ali i za mogućnost boravka više ljudi, sa zajedničkim prostorima za druženje i sa mogućnošću potpune privatnosti kad neko poželi mir. Zaštićena visokom bijelim zidom na dolaznoj strani, oklop djeluje nepovrediv, glavna linija kuće prati spoljni plan, a visoki naglašeni portal usmjeren ka ulazu do koga vode široke stepenice i ulazak u prostor, koji odaje sasvim drugačiji utisak. Stakleni zidovi u kontinuitetu na fasadi daju utisak otvorenosti i sna o domu u kome će konstrukcija i priroda biti jedno i gdje je ta harmonija obezbjeđena. Zidovi izgledaju kao umjetnička djela, prostor je pravljen po mjeri stanara, a kad padne noć, započinje magična igra svjetlosti, sjenki i zelenkasti odsjaj bazena, a dalje na horizontu različitosti koje samo priroda može da ponudi.