Svadbeni salon Prijedor

Godina projektovanja
2020
Godina izgradnje
xxxx
Status
Glavni projekat
Lokacija
Prijedor

Svadbeni salon Prijedor

Objekat je projektovan kao savremeni svadbeni i ugostiteljsko-smještajni kompleks spratnosti P+1+Pk, namijenjen organizaciji svadbi, proslava i drugih svečanih događaja, uz mogućnost boravka gostiju u okviru samog objekta.

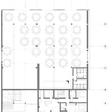
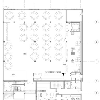
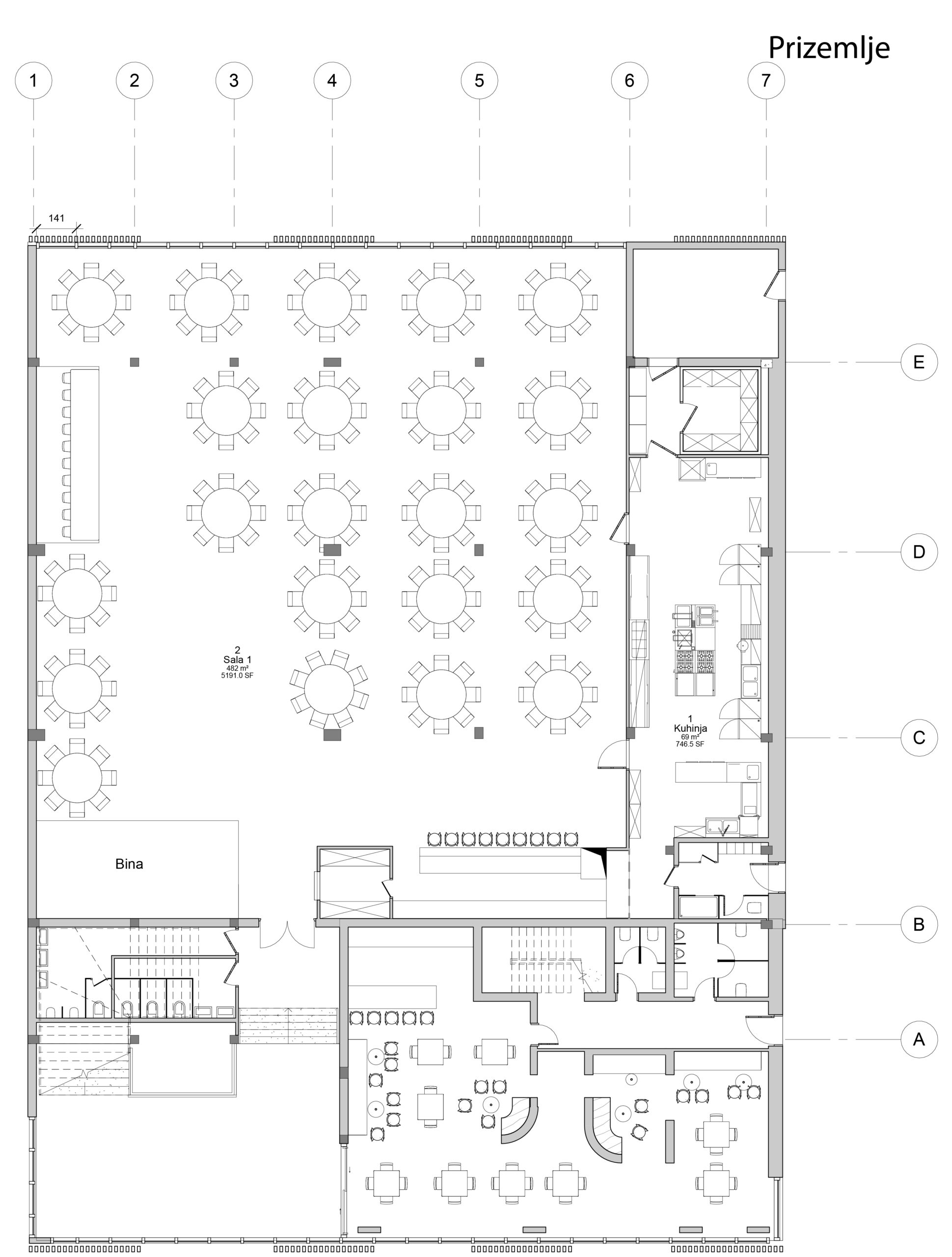
U prizemlju se nalazi veliki svadbeni salon sa pratećim sadržajima, kao i kafe bar koji je funkcionalno povezan sa ulaznim prostorom i salom. Prostor prizemlja karakterišu velike staklene površine koje obezbjeđuju obilje prirodnog osvjetljenja i vizuelnu povezanost enterijera sa spoljnim prostorom.

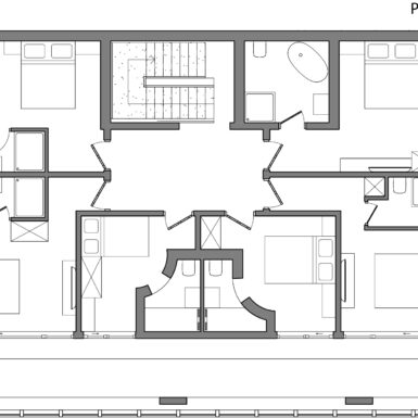
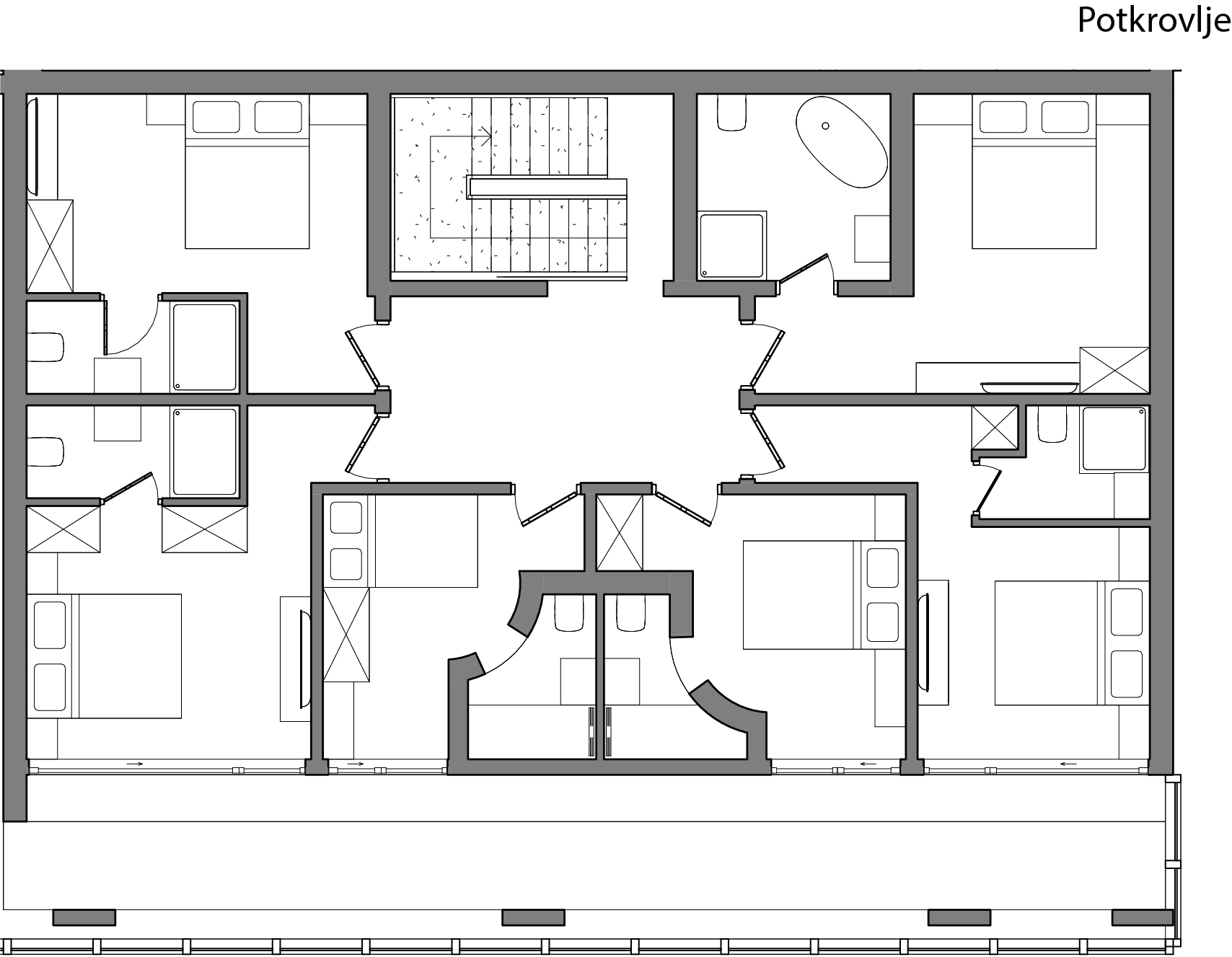
Na spratu je smještena manja svečana sala, pogodna za intimnije događaje i posebne prilike, kao i dva apartmana za smještaj gostiju. Potkrovlje dodatno proširuje smještajne kapacitete objekta sa šest komfornih soba, uz jasno razdvajanje javnih i privatnih zona.

Arhitektonsko oblikovanje objekta je savremeno i minimalističko, sa naglašenim vertikalnim fasadnim elementima koji definišu ritam i identitet glavne fasade. Kombinacija svijetlih tonova, vertikalnih lamela i velikih staklenih otvora doprinosi elegantnom i reprezentativnom izgledu objekta, u skladu sa njegovom namjenom i karakterom prostora.