Preduzeće Eurohem želeći da pokrene novi proizvodni pogon iz oblasti hemijske industrije, što i jeste njihova primarna djelatnost, obratilo se sa projektnim zadatkom koji bi na jednom mjestu okupio sve dijelove proizvodnje raspršene na više različitih unajmljenih lokacija. Pored proizvodnog programa predviđena su i posebna područja za laboratorije, te kancelariski prostori za zaposlene kao i prateći prostori i skladišta sirovine i gotovih proizvoda. Bilo je potrebno osmisliti inovativne prostore koji pri uređenju radnih mjesta uvažavaju najnovija saznanja na polju organizacije rada. Prostor je projektovan tako da podstiče kreativnost i inovacije, te pridonosi poboljšanju interne komunikacije. Zaposleni rade u atraktivnom i modernom proizvodnom pogonu koji im pruža uslove za fleksibilno izvršavanje radnih zadataka.
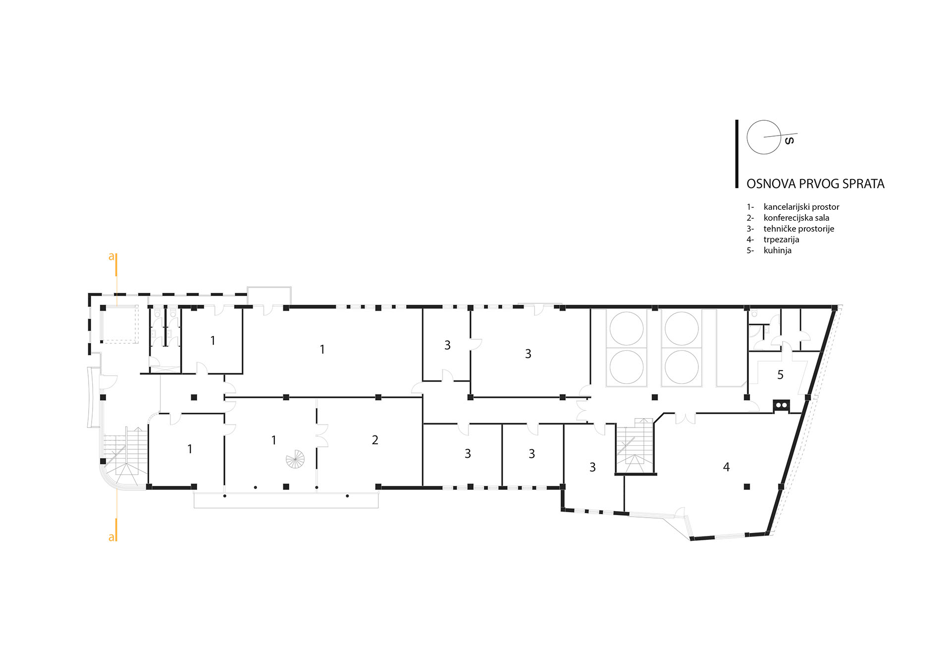
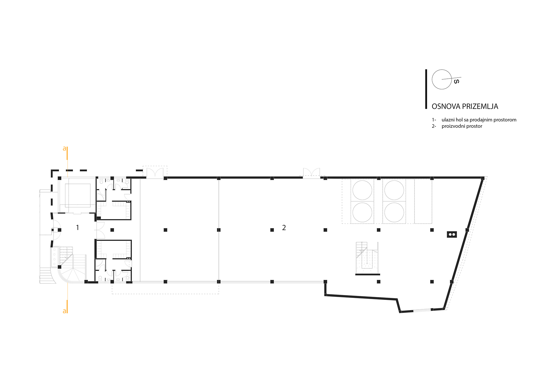
Tlocrt u obliku slova L sa ulazom na užoj strani uličnog objekta za upravni dio i goste odvaja objekat na javni duž ulice i onaj dvorišni koji obezbjeđuje potpunu izolovanost proizvodnog dijela. U prizemlju i suterenu je proizvodnja, na spratu laboratorije i uprava, a zajednički prostori, trpezarija i sala za sastanke su na uglu spajanja dva objekta. Tako je zaokružena potreba preduzeća za objedinjavanjem svega na jednom mjestu i znatno povećana efikasnost.
Fasada objekta je žute zaštitne boje preduzeća sa svjetlucavim efektom zbog čega zgrada uvijek djeluje drugačije.