Stambeno poslovni objekat Starčević

Godina projektovanja
2014
Godina izgradnje
2016
Status
izgrađeno
Lokacija
Teslić

Stambeno poslovni objekat Starčević

 

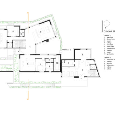
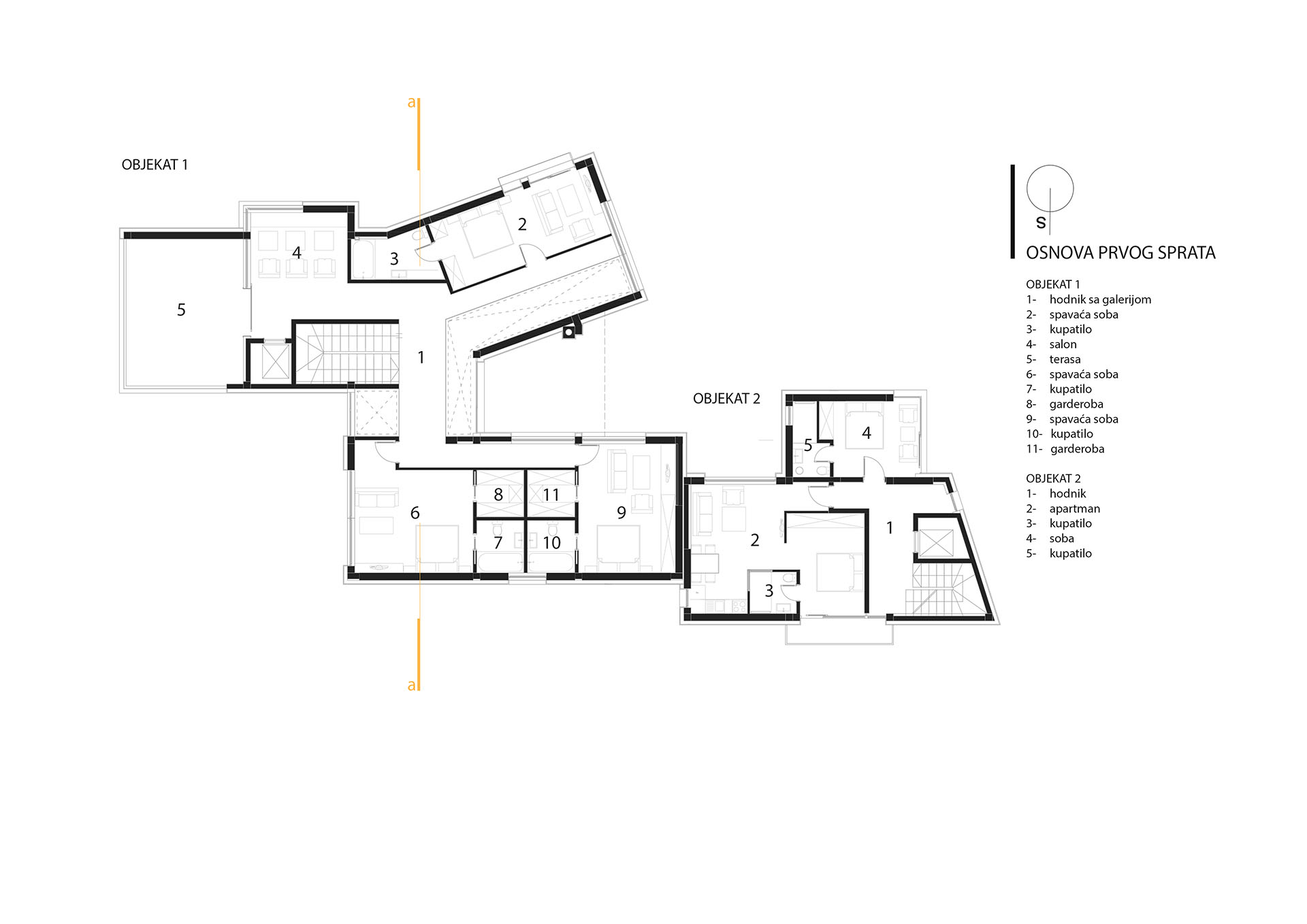
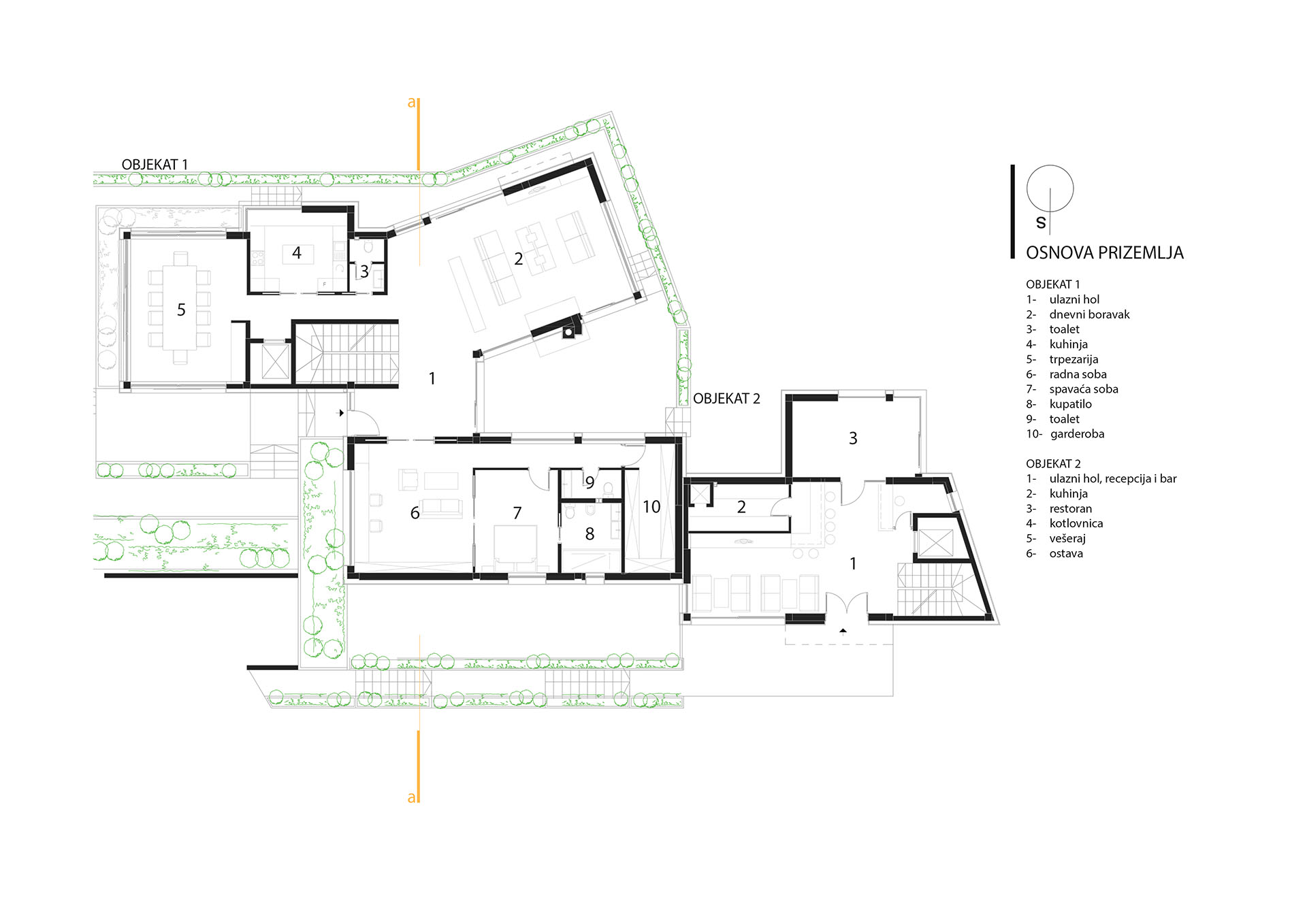
Umjesto standardnih predstava o prostoru u kojima preovladavaju pravi uglovi a osnove se protežu duž jedne ili dvije glavne ose, ovdje je sve sasvim drugačije. Atipičnim pristupom i razradom projekta po vise osa, stvorena je dinamična i pokrenuta kuća. Suštinu projektovanja ove porodične vile sa posebnim dijelom objekta ili gotovo drugog objekta za goste čini postavljanje tri zasebne cjeline pod disonantnim uglovima. One su zajedno jedinstvena forma, i definišu plan objekta na padini. Sam teren je doprinio da se na zanimljiv način uradi vertikalna regulacija – on je pod nagibom, tako da je tokom modelovanja volumena korištena prednost konfiguracije tla. Razrješenjem osnove srednjeg nivoa – glavni ulaz, određeni su obrisi volumena eksterijera – utvrđen je identitet objekta – sinteza skulpture, arhitekture, urbanizma i pejzažnog dizajna.

Sa niže kote na kojoj su garaže, prostori za rekreaciju i pomoćni prostori, stepenistem se stiže do ulaza ili otvorenih terasa koje uokviruju objekat svojom razuđenom formom. Pravougaono pročelje iznad koga je velika natkrivena terasa čiji krov ,,lebdi” je glavni motiv objekta, najupečatljivija je slika. Volumen je skladan i  dopadljiv, povučen u više ravni i prostire se padinom.

Centralni dio nastao je pažljivim planiranjem, koje je obuhvatilo dimenzionisanje otvora prema intenzitetu dnevne svjetlosti i stvaranje okvira – ramova, za prizore okruženja koje treba ili ne treba sagledavati. Ovakav vid projektovanja karakteriše istraživanje iskustva momenta kroz različite nivoe transparentnosti.

Varijacije svjetlosti i sjenke na isturenim i uvučenim površinama sažimaju i ističu volumene objekta, pojačavajući osjećaj interne i eksterne dinamike. Iz različitih vizura doživljavaju se uzbudljive i interesantne perspektive vizure, obogaćene perspektivnim tenzijama. Geometrijski obrisi skulpturalnog izgleda nastali su kao posljedica sukoba između mreže i vektora – mreže koja sadrži informacije o koordinatnim masama, a vektori usmjeravaju njihovu pokrenutost.

Ponovo je kuća priča o životu. Glavna karakteristika ove kuće je višeznačnost. Istovremeno je asketski suzdržana, pokrenuta i izražava težnju za univerzalnim redom, te  ispunjava uslove za ugodan život, u traganju za harmoničnim mjestom u kome će vlasnici prepoznati sebe u proporcionalnom prostoru bez pretencioznosti.