Porodična kuća u Kninskoj, Laktaši

Godina projektovanja
2014
Godina izgradnje
2015
Status
izgrađeno
Lokacija
Laktaši

Porodična kuća u kninskoj ulici, laktaši

Suštinu procesa kreiranja ove porodične vile postavljanje tri zasebne cjeline koje zajedno čine jedinstvenu formu, definišući plan objekta na parceli.

Zatvoreno pročelje prema ulici je najupečatljivija slika i glavni motiv objekta uz skladnost volumena gdje je dio mase ukinut na koti prizemlja. Taj glavni objekat dimenzionisanjem otvora prema dvorištu i istočnoj strani omogućio je primanje intenzvne svjetlosti i stvaranje okvira-ramova za prizore okruženja.

Varijacije svjetla i sjenke sa uvučenim i isturenim površinama sažimaju i ističu volumen objekta, pojačavajući osjećaj interne i eksterne dinamike.

U Laktašima mjestu oko dvadeset kilometara udaljenom od Banja Luke u centru mjesta na parceli površine 1209m2 za petoročlanu porodicu projektovana je kuca sa pomoćnim objektom u kome je prostor za prijem gostiju i druzenje kao i zatvoreni bazen na nivou podrumske etaže  sa svojom terasom za sunčanje na istom nivou da bi se korisnici izolovali od pogleda, obzirom da se objekat nalazi u gusto izgrađenom dijelu mjesta.

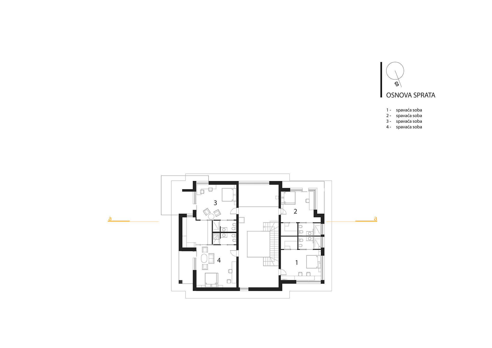
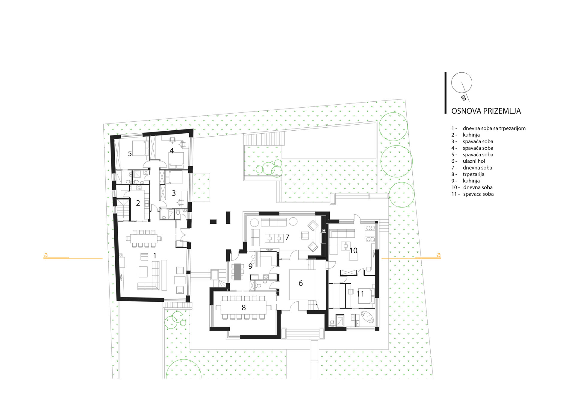
Glavni objekat površine 1125.31m2 u prizemnoj etaži ima prostore za dnevni boravak i roditeljski apartman koji su povezani sa terasom na juznoj strani (zeleni krov bazena), a na spratu sobe za svako od troje djece i gostinsku sobu. Silazeći u podrumsku etažu je prostor vinoteke i prostori za rekreaciju sa pomoćnim prostorijama a preko istih je veza sa bazenom ili garažnim prostorom te sa svim sadržajima u pomoćnom objektu.

Pomoćni ili objekat za prijem gostiju površine 427.55m2 u podrumskoj etaži ima garažu sa tri parking mjesta i pomoćne prostore koji su u službi svih objekata kao sto je kotlovnica ili prostor bazenske tehnike. U prizemlju ovog objekta je velika trpezarija sa kuhinjom, gostinske sobe i boravak koji je povezan sa terasom bazena.

Objekat sa bazenom je naknadno projektovan na nivou podrumske etaze glavnog objekta kao uočeni nedostatak u toku korištenja objekta i sadrži samo bazen sa prostorom za sunčanje iI dio bazenske tehnike a površine je 235.69m2.

Obezbjedjeno je povezivanje sva tri objekta u jednu cjelinu kako u nivou prizemlja tako i na nivou podrumske etaže.

Obično se kaže da su projekti nešto poput portreta klijenta i svaki je važan, ali ovaj je čini nam se najviše to, jer se sa klijentom kroz dvije godine razgovaralo osmišljavajući sve potrebe i iznalazeći način da se porodica ne preseljava nigdje dok se objekat gradi iz čega je proisteklo da se prvo gradi objekat koji će kasnije biti gostinski, a u kome će klijenti stanovati dok se sruši postojeći objekat i sagradi novi na istom mjestu.

Svaka kuća je i priča o životu. Karakteristika porodične vile Đukić leži u dvoznačju: istovremeno je asketski suzdržana i pokrenuta. Izražava težnju za univerzalnim redom u kojem pulsiraju emocije. Planom se čita kao ispunjen uslov za život u zajednici koja se temelji na poštovanju drugih.