Turističko-rekreativni centar Pliva

Godina projektovanja
2009
Godina izgradnje
2009
Status
izgrađeno
Lokacija
Šipovo

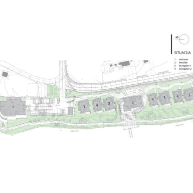
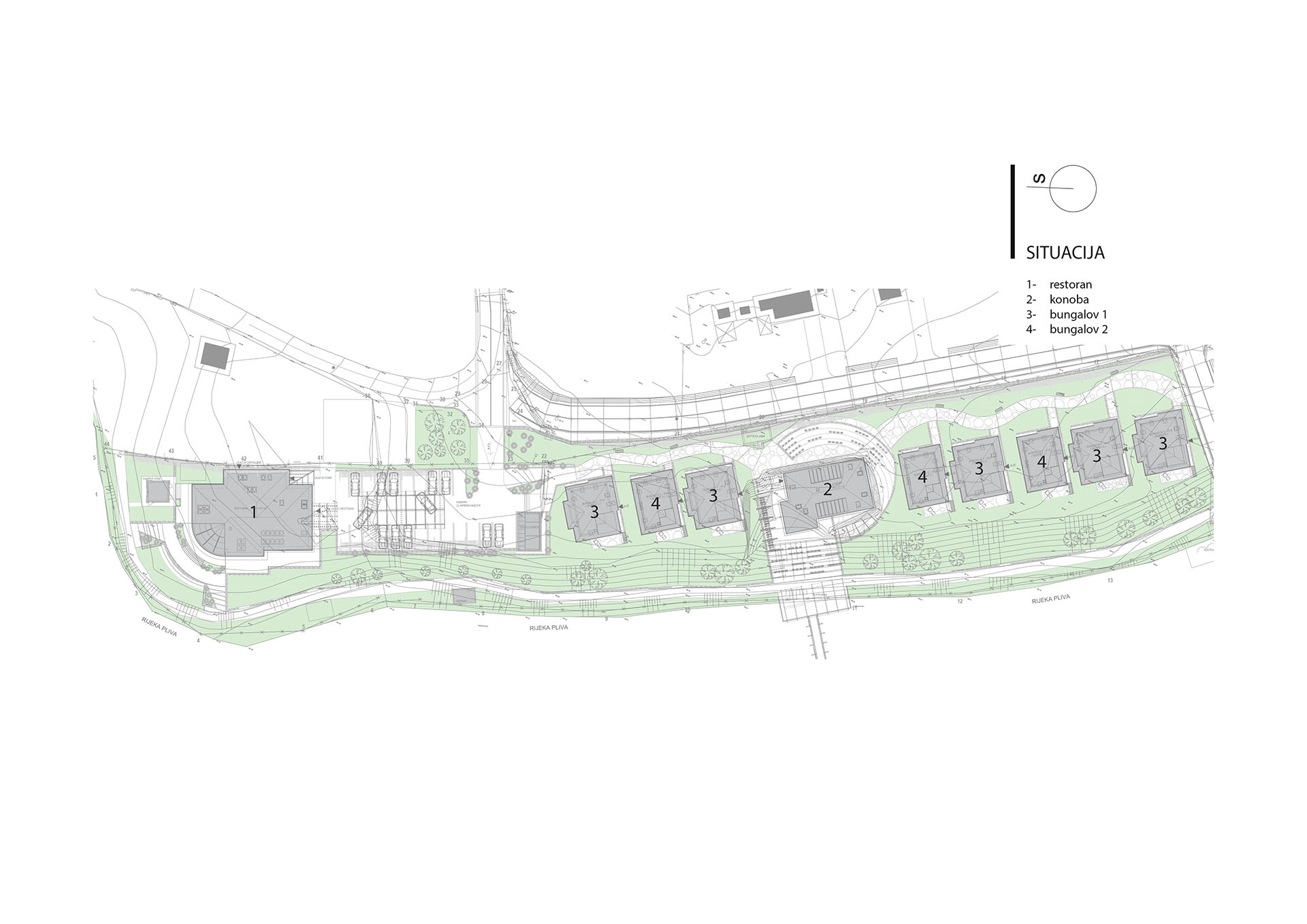
TuristiČko rekreativni kompleks sastavci na Plivi

Rijeka Pliva simbol zdravlja i čistoće, predstavlja raskošno bogatstvo Opštine Šipovo. Izvire u mjestu Pljeva i čine je tri vrela koja se poslije 300m odvojenog toka spajaju u jednu snažnu i hladnu rijeku. Upravo ovo mjesto predstavljalo je vrhunsku lokaciju za pozicioniranje novoizgrađenog ugostiteljsko rekreativnog centra na lijevoj obali tek spojenih izvora u jedinstvenu rijeku.

Galerija, konoba, hotel i osam bungalova prostiru se duž obale rijeke na ukupnoj površini od 0.69ha. Prilikom projektovanja kompleksa, u prvom planu bilo je poštovanje prirode i uspostavljanje skladnog odnosa sa spoljašnjim prostorom. Raznolik teren svojom dinamikom naglašava tok rijeke Plive, objekti su postavljeni na vrh strme i uvijek osunčane obale, koja poput prirodnog amfiteatra pruža nesmetan pogled na scenu rijeke i zelenog prostranstva njenih obala. Udaljenost objekata od rijeke je približno petnaest metara čime je omogućena maksimalna privatnost kako korisnika sadržaja kompleksa tako i posjetilaca prirodnog ambijenta duž rijeke.

Svojom formom i materijalizacijom objekti ne narušavaju postojeći ambijent već se uklapaju i sjedinjuju sa njim. Strmi krovovi od 52 stepena pokriveni šindrom vire iz svog zelenog okruženja parajući nebo i kao da se nadmeću sa okolnim planinskim vrhovima. Svi objekti imaju jugoistočnu orjentaciju dnevnih prostora i prema rijeci. Prilikom uređenja vanjskog prostora velika pažnja je posvećena oblikovanju zelenih površina kao i kamenom popločanim stazama koje prilagođavajući se ustalasanom terenu upotpunjuju sliku kompleksa duž rijeke. Jedna staza predstavlja glavnu komunikaciju između objekata,stepenasto savladavajući teren, dok druga prati rijeku i obilazi kompleks od zadnjeg bungalova do hotela.

Materijali korišteni na fasadama prvenstveno kamen i drvo se provlače i na vanjsko uređenje kao što ulaze i unutar u objekte. Tri različite vrste kamena iz lokalnih kamenoloma, ukomponovane su tako da dodatno razigraju prostor svojim različitim bojama i oblicima i daje utisak povezanosti prostora i usklađenost enterijera i eksterijera.

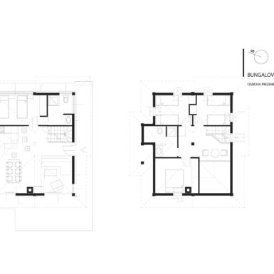
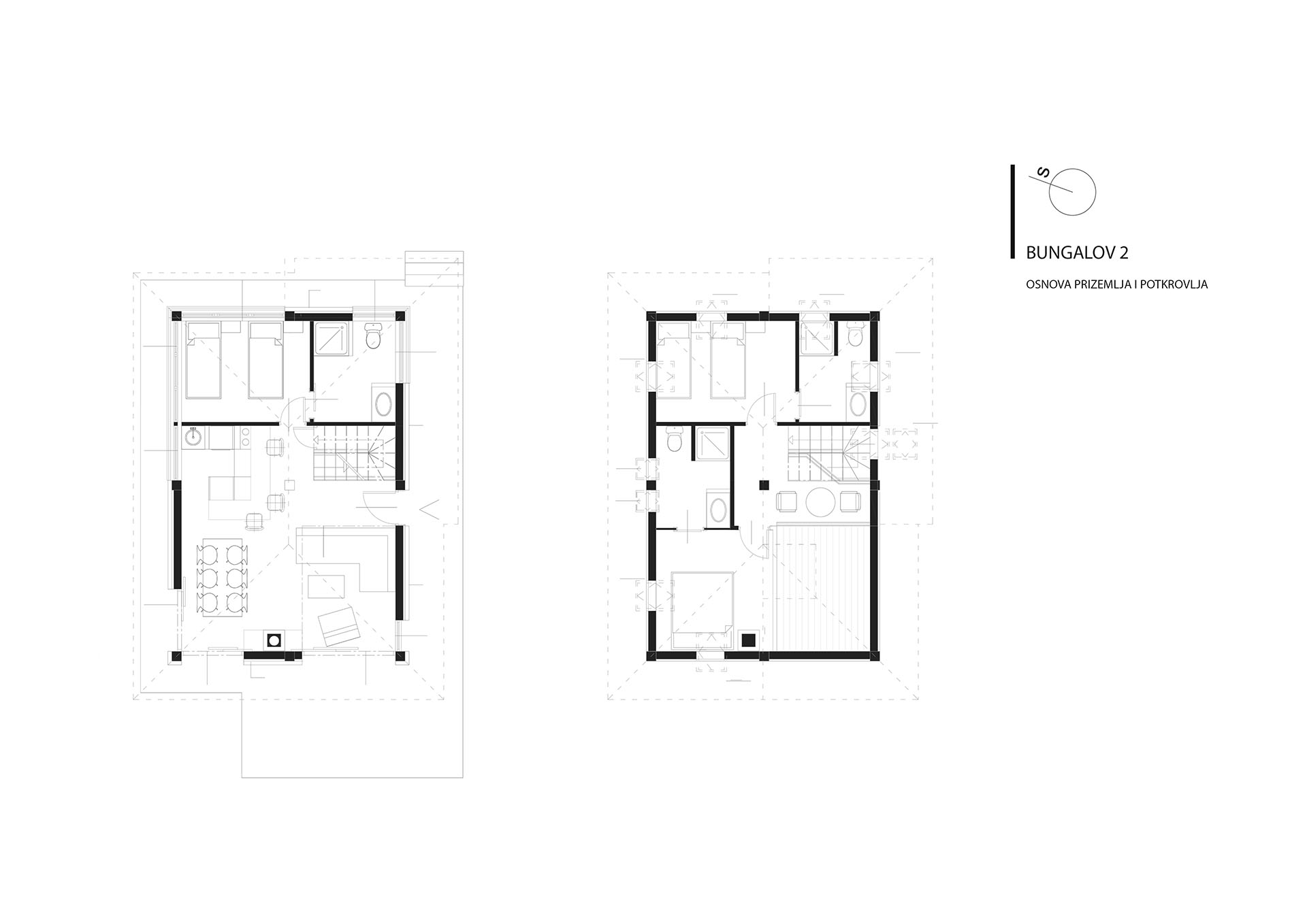
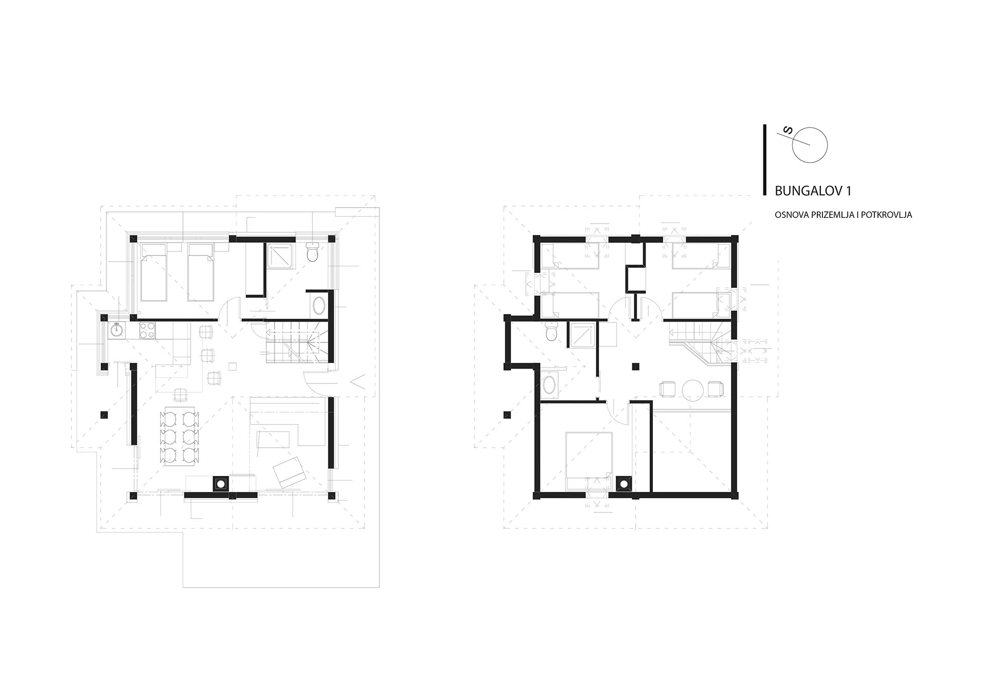
Dva su tipa bungalova, njih pet je osmokrevetnih i tri nešto manja šestoktrvetna. U prizemlju oba tipa organizovani su zajednički prostor dnevnog boravka sa kuhinjom i trpezarijom orjentisani prema rijeci i terasi na istoku. Na spratu je galerija koja komunicira sa prizemljem preko otvorenog dijela ¼ površine poda, a sa nje se pristupa sobama kojih je kod većeg objekta tri, a kod manjeg dvije. Najzanimljiviji dio galerije predsavlja prostor za sjedenje ispod staklenog krova sa inspirativnim pogledom na okruženje. Bungalovi iznutra izgledaju znatno otvorenije nego što se čini spolja. Sa ulične strane prozori su mali, zaštićeni drvenim brisolejima radi zaštite privatnosti korisnika. Prema rijeci objekat je otvoren i pruža veličanstven pogled na okruženje, a zahvaljujući denivelaciji terena, zadržan je potreban nivo intimnosti korisnika.

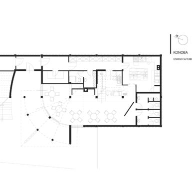
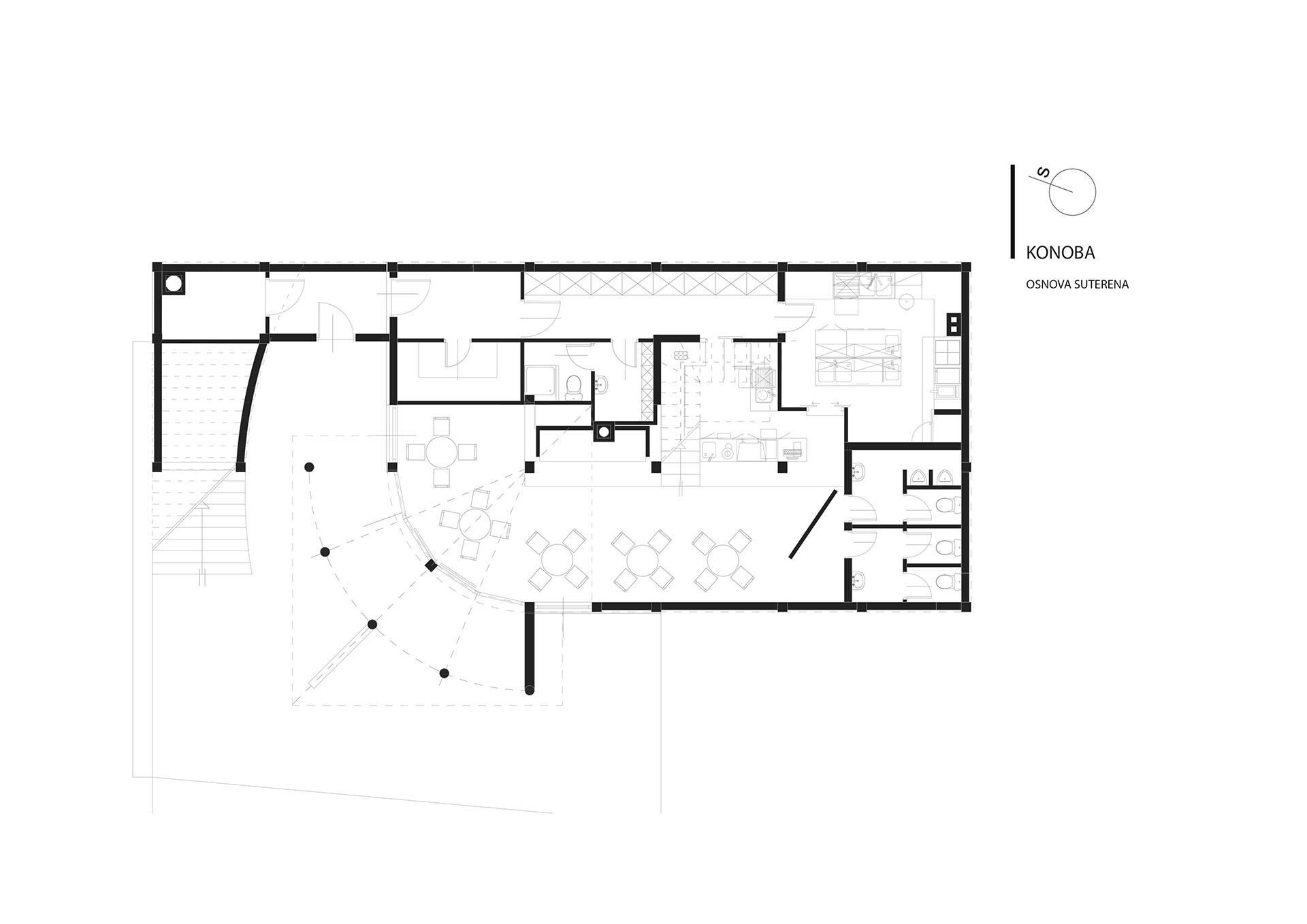
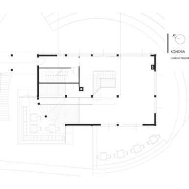
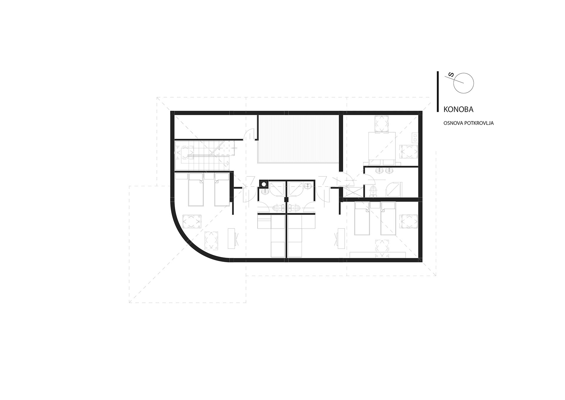
Konoba u suterenu, galerija u prizemlju za rad i izložbe Međunarodne likovne kolonije koja se ovdje održava sa anfiteatrom na istočnoj strani prema rijeci i zapadnoj strani za događaje kojima šum rijeke ometa mir kao što su muzički koncerti i slično je devet objekati u nizu ovog kompleksa. On jedini svojim suterenskim dijelom u kome je konoba, izlazi na rijeku i goste potpuno izluje od svega okolo ušuškavajući ih u šum rijeke.

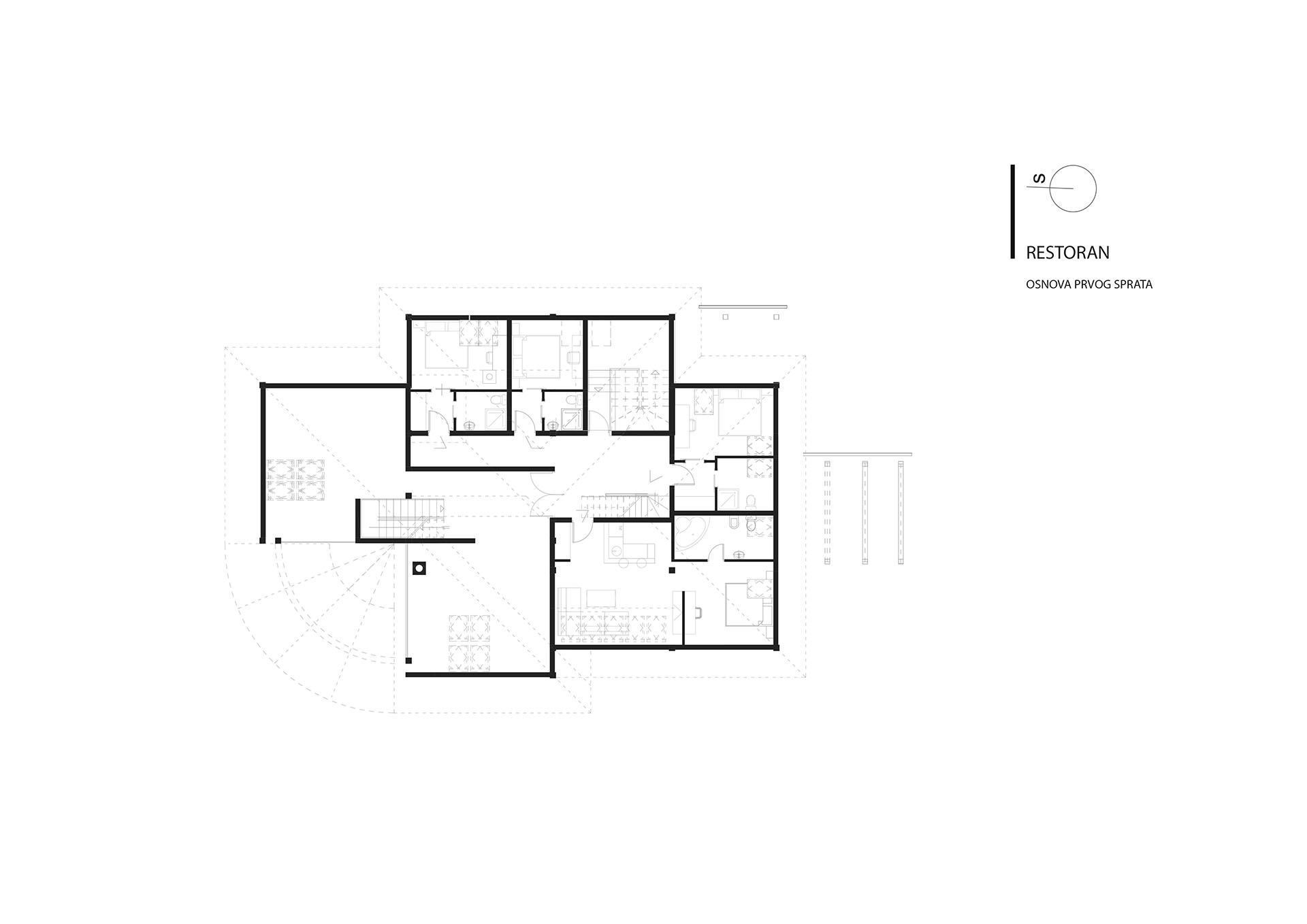
Objekat hotela ne zauzima centralno mjesto kompleksa, ali svojim položajem na ušću Rijeka, veličinom i formom svakako dominira prostorom. Smješten je na južnoj strani kompleksa, a ispred objekta je prostrani multifunkcionalni trg. Projektovanjem drvenih pergola sa pokrivačem od stakla ovaj prostor veoma lako pretvara u prostor za izložbe, radionice na otvorenom i slično.

U podrumu objekta su smješteni rekreativni sadržaji teretana, sauna, velnes centar i bilijar sala. U prizemlju je restoran kapaciteta 120 mjesta u zatvoren dijelu sa kuhinjom. Isto toliko mjesta je i na terasama duž rijeke. Na zapadnoj strani je recepcija odakle stepenište vodi do soba i apartmana na spratovima.

Dizajnirani da minimalno utiču na prirodno okruženje, a istovremeno da uspješno ostvare jedinstven arhitektonski uticaj, kompleks objekata na lijevoj obali Plive sa svojim kamenim fasadama, drvenim brisolejima i krovovima od šindre dodatno učvršćuju odnos između prirode i arhitekture.