Porodična kuća na Zmajevcu, Sarajevo

Godina projektovanja
2021
Godina izgradnje
2024
Status
izgrađeno
Lokacija
Sarajevo

Porodična kuća na zmajevcu, sarajevo

Prvo je kreiran jedan veliki, spoljni prostor, a u njega je potom smještena kuća. Ona je u prirodnom pejzažu koji joj daje izgled hrama. Mjesto spajanja spoljnog i unutrašnjeg univerzuma, mjesto gdje čovjek živi uravnoteženo. Smještena na brijegu iznad Sarajeva sa pogledom na kanjon Miljacke i okolne padine, tako blizu, a tako daleko od civilizacije.
Projektovani su prostori koji se ulijevaju jedan u drugi, bez vidljivih prelaza, longitudinalno od kapije, kroz ili pored objekta do bazena, na padini koja je nagnuta prema jugu i površine da za sve ima prostora.

Porodična kuća, dom gdje su sve prostorije smještene u jednu pravougaonu kutiju, dugačku, a široku, različitih visina jer se na jednoj strani zakačila za padinu na nivou suterena, a na drugoj nalegla na istu na nivou prizemlja. Za razliku od modernističkog pristupa, koji daje utisak da je kuća postavljena na tlo, ova kuća je zagnjurena u zemlju što doprinosi spoju enterijera i eksterijera.

Planirana je za dom četvoročlane porodice, ali i za mogućnost boravka više ljudi, sa zajedničkim prostorima za druženje i sa mogućnošću potpune privatnosti kad neko poželi mir. Zaštićena visokom bijelim zidom na dolaznoj strani, oklop djeluje nepovrediv, glavna linija kuće prati spoljni plan, a visoki naglašeni portal usmjeren ka ulazu do koga vode široke stepenice i ulazak u prostor, koji odaje sasvim drugačiji utisak. Stakleni zidovi u kontinuitetu na fasadi daju utisak otvorenosti i sna o domu u kome će konstrukcija i priroda biti jedno i gdje je ta harmonija obezbjeđena. Zidovi izgledaju kao umjetnička djela, prostor je pravljen po mjeri stanara, a kad padne noć, započinje magična igra svjetlosti, sjenki i zelenkasti odsjaj bazena, a dalje na horizontu različitosti koje samo priroda može da ponudi.

Dispoziciono, objekat pravougaone forme je postavljen na gornjem rubnom dijelu parcele na vrhu nagiba tako da ispred ostavlja otvoren sav sebi pripadajući dio sa dvorištem, ali i otvorene poglede od istoka pa sve do zapada.

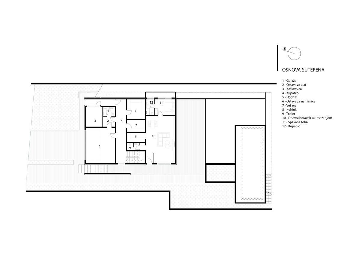
Spratnosti Su+Pr, ukupne bruto povrsine 1047.42 m2

Potrebe saobraćaja u mirovanju se rješavaju u okviru suterenske etaže u garaži i na sjevernoj strani parcele između objekta i kapije.

U oblikovnom smislu čisti volumen pravougaone forme, dijelom zatvoren, dijelom potpuno prozračan i otvoren, uklopljen u svoje prirodno okruženje koje oplemenjuje. Provlačenjem istog na krov, proširuje u funkcionalnom smislu, različite funkcionalne cjeline, kao prostori odmora i spavanja, prostori zajedničkog boravka, oni oko bazena ili oni za goste i prateći funkcionalni prostori su dali tri glavna prostora na dva nivoa.

Osnovna konstrukcija objekta je riješena kao armirano-betonska konstrukcija platana u, za naše uslove, novom materijalu isotex blokovima koji obezbjeđuju bržu gradnju, izuzetno visok nivo termičke zaštite, kao i zaštite od zemljotresa i požara. Od istog materijala je i međuspratna tavanica kao i krovna ploča na prohodnom ravnom krovu. Temeljna konstrukcija objekta je jedinstvena temeljna armiranobetonska kontra ploča za čitav objekat dijelom na nivou suterena, dijelom na nivou prizemlja.

Fasadni zidovi su kombinacija demit fasade na jednom dijelu, a na drugim dijelovima je kamen, tipa jablanički granit paljen pa četkan da bi dobio finu meku strukturu. Želuzine na prozorima su od prirodnog drveta, tipa bor ili smrča kao i perforirane klizne želuzine koje zatvaraju otvoreni južni dio fasade u toplim ljetnim danima i doprinose različitosti objekta.
Podrazumijeva se primjena principa energetske efikasnosti jer je izabran material isotex blok za zidove i od istog proizvođča i međespratna i krovna konstrukcija takvih karakteristikama gdje je toplotna provodljivost U=0,21W/m2K, te je za budući objekat maksimalna potrošnja energije za grijanje i hlađenje određena na 30kWh/m2 godišnje, a potrošnja primarne energije 100kWh/m2 godišnje. Vazdušna nepropusnost vanjskog omotača n<50<0,6h-1. Kao osnovni izvor toplotne energije u objektu, predviđene su toplotne pumpe.