Porodična kuća u Save Kovačevića, Banja Luka

Godina projektovanja
2021
Godina izgradnje
xxxx
Status
neizgrađeno
Lokacija
Banja Luka

Porodična kuća u save kovačevića, banja luka

Na rubu centra grada i neposredno uz rijeku Vrbas u naselju Borik, idilični dio između stambenih objekata Borika i rijeke, sa pogledom na park na drugoj obali,smjesto se ovaj dom za porodicu. Za ovo omiljeno mjesto stanovanja karakteristične su kuće iz 1070-ih i 80-ih godina, samo tu i tamo se mogu vidjeti pojedinačne novogradnje. Upravo za taj prostor isprojektovali smo modernu stambenu kuću iz koje puca pogled na brda Starčevice, zeleni Vrbas i okolinu. Kako  bi se uspostavio dugotrajni dijalog s topografijom, prilaz sa gornje saobraćajnice je osiguran betonskim platnom koje je ujedno i konstruktivni zid objekta i potpuno bez otvora dok su ostale tri strane gotovo potpuno otvorene i spojene sa okruženjem.

Gledano sa ulične strane ova jednospratna građevina sa jednom stambenom jedinicom doima se suzdržano. Strana okrenuta prema Vrbasu, kao i ona južna, otvaraju se prema vanjskom prostoru prozorima velikog formata, čime se postiže mekan prelaz iz unutrašnjeg u vanjski prostor. Nasuprot ulaznoj fasadi koja zatvara svaki pogled sa ulice i odaje dojam zatvorenosti.

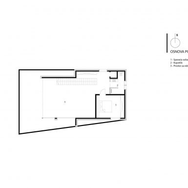
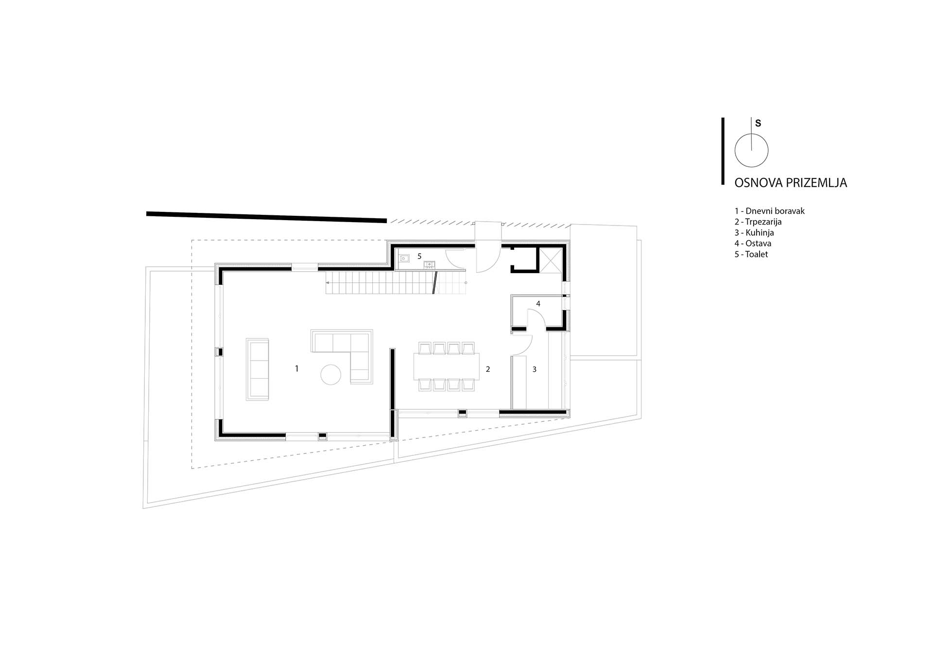
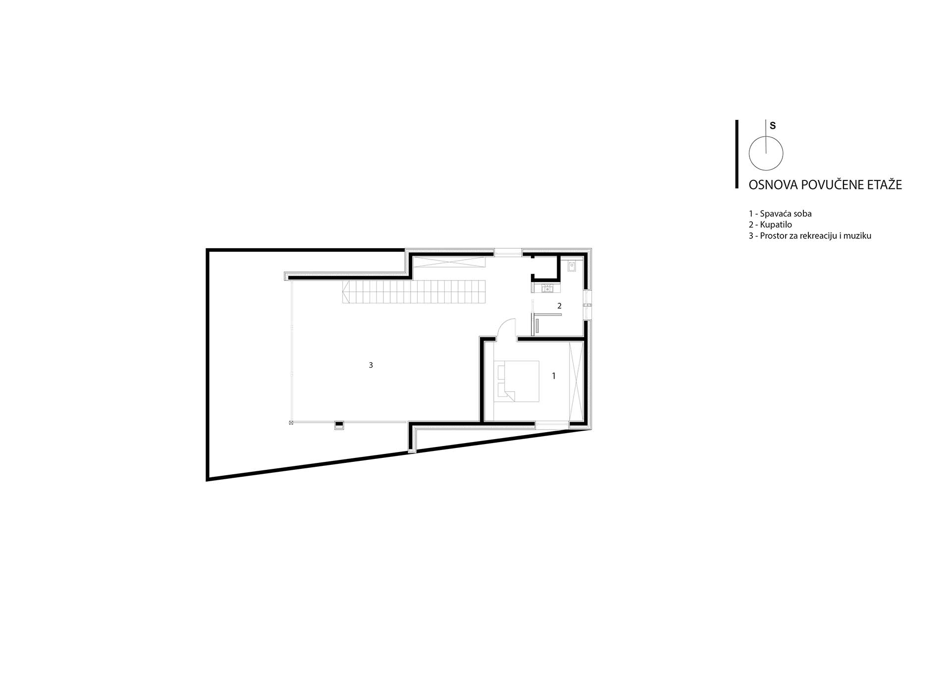
Razlika je i u broju etaža, gdje sad iz vrta imamo tri nivoa i četvrti podrum sa tehničkim prostorijama, pa se objekat doživljava kao veći i svojom otvorenošću suprotno od ulične suzdržanosti, plijeni. Prostori raskošnog dnevnog boravka nalaze se u prizemlju-dnevni boravak, kuhinja, trpezarija i sa izlazom na terasu i vrt. U suterenskij etaži gdje je bazen i ostali sadržaji za druženje, koji takođe imaju svoju vezu sa vrtom i prostore za sunčanje, skrivene od pogleda. Povučena etaža je sa sobom za spavanje uz veliku terasu i prostorom za slušanje muzike i šuma Vrbasa.

Bijela boja kamena različitih obrada kombinovana sa drvetom daju dojam topline i ugođaja doma. Koncept arhitekture prirodno se nastavlja u oblikovanju enterijera u kome su podovi od svijetlog drveta i bijelog kamena te svijetlim tonovima zidova una kojima se ogleda rijeka u svoj svojoj različitosti.