Porodična kuća na Pavlovcu, Banja Luka

Godina projektovanja
2019
Godina izgradnje
2023
Status
izgrađeno
Lokacija
Banja Luka

Porodična kuća na pavlovcu, banja luka

Kuća poput krune stoji na vrh brežuljka u gradskoj četvrti Pavlovac. Sama se parcela nalazi na sjevernom obronku te je okrenuta prema dolini gdje se prostire grad, na koji su impozantne vizure sa ove lokacije. Teren posjeduje vrlo izražajnu topografiju i gotovo ima karakter prirodnog vidikovca. Upravo u tom leži glavna ideja projekta, koji ima za cilj iskoristiti i naglasiti vizure prema gradu, kako bi se uspostavio dugotrajni dijalog s topografijom.

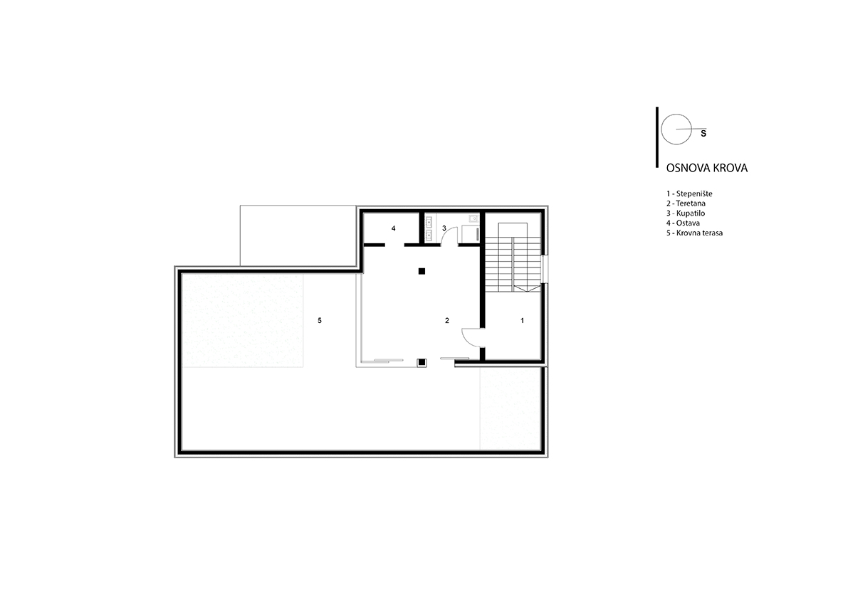
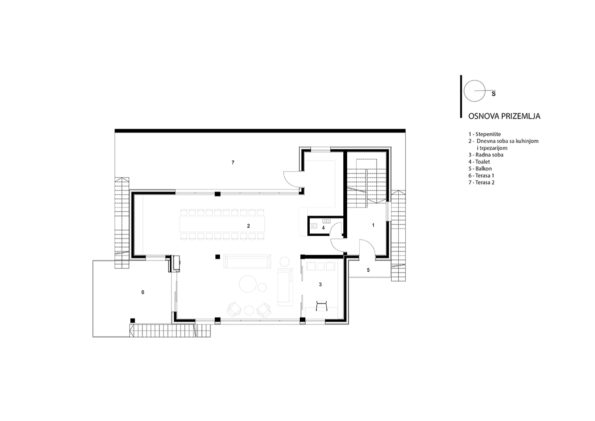
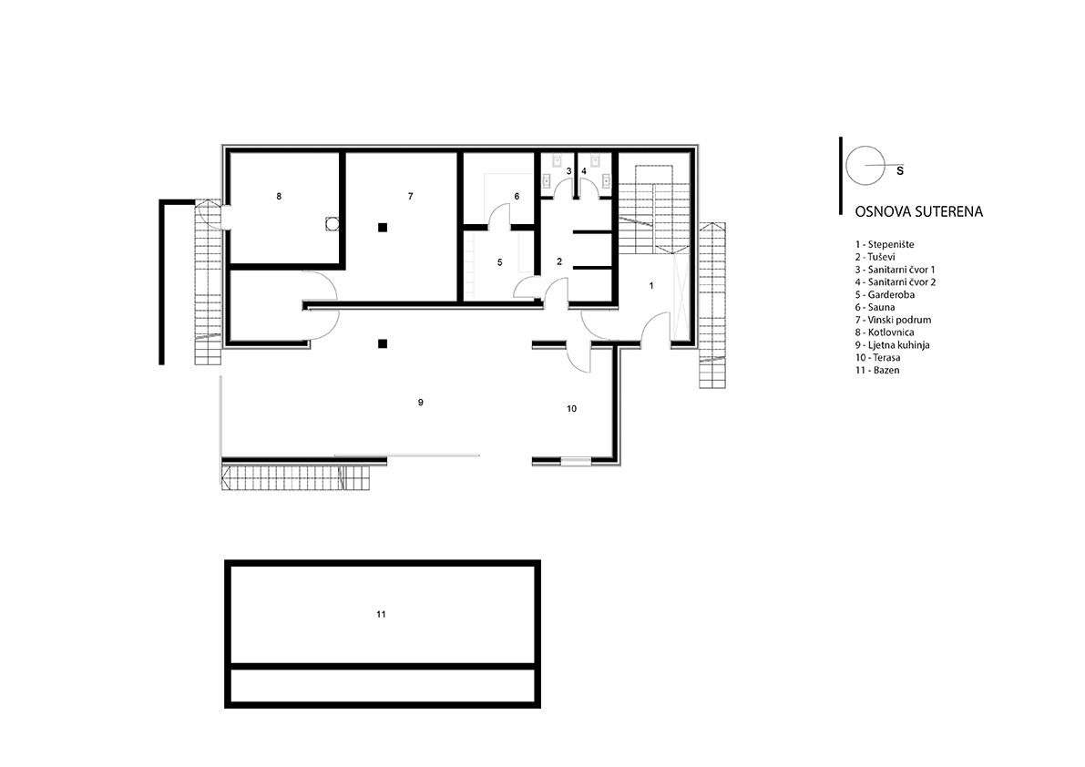
Projekat porodične kuće osmišljen je tako da na prvom nivou počinje sa nizom elemenata namijenjenih djeci, otvorenim bazenom i sadržajima uz isti, te kotlovnicom i drugim pomoćnim prostorima. Upravo tu je formiran atrij koji stvara odnos sa okolinom, služi za osvjetljenje okolnih prostora i ugodno i ušuškano sjedenje u svim vremenskim prilikama. Gornji nivo je onaj na kome se nalazi dnevni boravak, kuhinja i trpezarija koje na svojoj jugozapadnoj strani izlaze na teren, gdje je terasa povezana sa kuhinjom, a prema jugu je terasa dnevnog boravka i preko nje kontakt sa bazenom na nižem nivou. Etaža iznad je namijenjena prostoru za spavanje sa roditeljskom sobom i dvije namijenjene djeci. Krovna terasa zamišljena kao višenamjenski programski element eksterijera, vertikalno povezana sa glavnim stepeništem. Može se koristiti za ugodno sjedenje, čitanje, filmske projekcije, bavljhenje biljkama na krovu…ili samo uživanje u fascinantnom pogledu na grad.

Dispoziciono, objekat pravougaone forme i postavljen je na središnjem dijelu parcele na nagibu tako da ispred ostavlja otvoren pogled, a i na zadnjoj strani je obezbjeđen mir i dovoljna udaljenost od susjednih objekata.
Spratnosti Su+Pr +1 ukupne bruto povrsine 904.51 m2 .
Potrebe saobraćaja u mirovanju se rješavaju u okviru suterenske etaže u garaži koja je na nižem nivou nego objekat, direktno uz dolaznu saobraćajnicu.

U oblikovnom smislu čisti volumen pravougaone forme, dijelom zatvoren, dijelom potpuno prozračan i otvoren, uklopljen u svoje prirodno okruženje koje oplemenjuje i provlačenjem istog na krov, proširuje u funkcionalnom smislu. Različite funkcionalne cjeline, kao prostori odmora i spavanja, prostori zajedničkog boravka, oni oko bazena ili oni za goste i prateći funkcionalni su dali tri glavna prostora na tri nivoa.

Osnovna konstrukcija objekta je riješena kao armirano-betonska konstrukcija platana u, za naše uslove, novom materijalu isotex blokovima koji obezbjeđuju bržu gradnju, izuzetno visok nivo termičke zaštite, kao i zaštite od zemljotresa i požara. Od istog materijala je i međuspratna tavanica kao i krovna ploča na prohodnom ravnom krovu. Temeljna konstrukcija objekta je jedinstvena temeljna armiranobetonska kontra ploča za čitav objekat na nivou suterena.

Fasadni zidovi su bijeli, STO – mineralna fasada sa organskom završnom žbukom, krupnoće zrna 1mm. Na podnim površinama je kamen tipa jablanički granit paljen pa četkan da bi dobio finu meku strukturu. Želuzine na prozorima su od prirodnog drveta tipa bor ili smrča kao i perforirane klizne želuzine koje zatvaraju otvoreni južni dio fasade u toplim ljetnim danima, a drvo se uvlači i na plafon suterena i doprinosi različitosti objekta na nivou suterena jer on to i jeste i u funkcionalnom smislu.

Podrazumijeva se primjena principa energetske efikasnosti jer je izabran material isotex blok za zidove i od istog proizvođča i međespratna i krovna konstrukcija takvih karakteristikama gdje je toplotna provodljivost U=0,21W/m2K te je za budući objekat maksimalna potrošnja energije za grijanje I hlađenje određena na 30kWh/m2 godišnje a potrošnja primarne energije 100kWh/m2 godišnje. Vazdušna nepropusnost vanjskog omotača n<50<0,6h-1. Kao osnovni izvor toplotne energije u objektu, predviđene su toplotne pumpe vazduh, vazduh i sunčani kolektori. Na krovu su zasađene različite biljne vrste, tipične za podneblje.