Porodična kuća u Beogradskoj, Prnjavoru

Godina projektovanja
2020
Godina izgradnje
2020
Status
izgrađeno
Lokacija
Prnjavor

Porodična kuća u beogradskoj, prnjavoru

Kako to obično biva, prvi dolazak na lokaciju otkrio je sve o kući i ništa o kući. Otkrio je geometriju, materijale od kojih je izgrađena i blijedu sliku promjena kroz vrijeme, ljudi koji su tu živjeli i dograđivali, a porodica se mijenjala. Nalazi se u aleji kestenova, jednoj predivnoj ulici koja ide najvišom tačkom brijega ispod koje se na jednu stranu prostire grad, a na drugu zeleni brežuljci. Prilazeći ulicom morate je tražiti pogledom, jer je postala dio zatečene strukture i to je bio prvi zadatak, dati joj identitet. Povećanjem nagiba krovne ravni, visine spratne etaže i promjenom otvora dio posla, na onom dijelu prema ulici je bio završen.

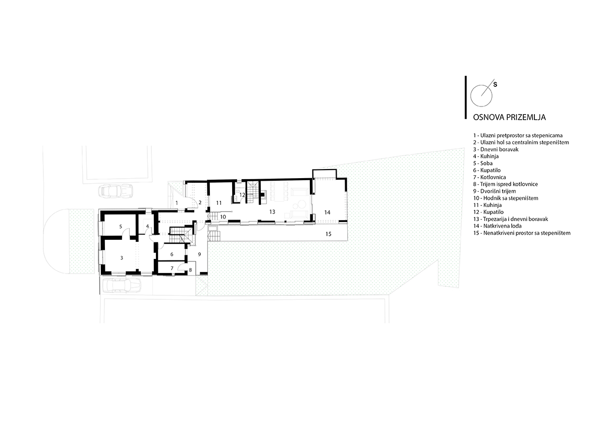
Prethodnim projektima ova porodična kuća se sastojala od dva objekta koja su bila potpuno odvojena i kao takvi ne funkcionalni. Novim oblikovanjem je omogućeno da cijeli parter, a i prizemlje oba objekta, postanu prostori interakcije i druženja. Sam program rezultat je očekivanja porodice šta bi njihova kuća trebala sadržati. Željeli su veliki zajednički dnevni prostor, terasu i dovoljno privatnosti za svakog člana porodice, kvalitetno povezana dva objekta u jednu cjelinu. I sve je tu, zajednički je ulaz, a iz njega po izboru u željeni dio i svaki povezan.

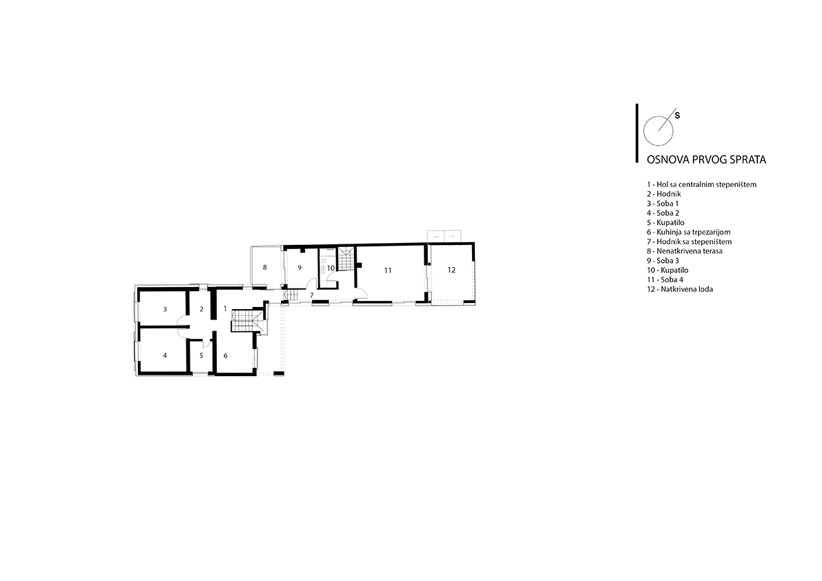
Dispoziciono, oba objekta su pravougaone forme i postavljena tako da je onaj bliže ulici na lijevoj strani parcele, a drugi smaknut na desnu stranu parcele, ali tako da se preklapaju, tek toliko da se povežu i obezbjede mir unutar dvorišta.

Spratnosti Pr +1 ukupne bruto povrsine 424 m2.

Potrebe saobraćaja u mirovanju se rješavaju u okviru parcele.

Cjelina je veća od zbira svojih djelova pa kad se nađete ispred same kuće, principi koji su se stvorili su kristalno jasni i logični. Interpolacijom više projektantskih slojeva je postignut prostorni sklad i stvorena su uzbudljiva mjesta. Namjene su složene po vertikali omogućavajući stepene privatnosti, od već spomenutog dnevnog prostora i terase, koji predstavljaju najjavniji dio kuće, preko porodičnog dnevnog boravka na spratu i soba za odmor na mirnom i izdvojenom dijelu. Zakretanje slojeva je omogućilo da ,,glavni prostor” ima neometan pogled, svaki od prostora svoju terasu, te da zajednički prostori imaju mjesta, a ne samo prostorije.

Tako se oko stepeništa zavrtjela kuća koja nudi dosta različite prostorne doživljaje u svakom svom dijelu, svaki sa svojom vlastitom namjenom, vlastitom geometrijom, vlastitim pogledom, vlastitim komadićem stropne konstrukcije, koja nenapadno afirmiše taj utisak. Staklene stijene odvajaju veliki dnevni prostor od dvorišnog i pomijeranjem dvorište postaje zajednički prostor za istovremeno korištenje. Ovakva kombinacija intimnih jazbina u enterijeru i otvorenih, gotovo izloženih eksterijera, stvorila je zanimljiv kontrast i pružila različite, komplementarne scenarije korištenja.

Osnovna konstrukcija objekta je riješena kao armirano-betonska konstrukcija platana i stubova sa ispunom od opekarskog bloka obzirom da su i postojeći objekti bili izgrađeni na taj način. Temeljna konstrukcija objekta su trakasti temelji i ista je i na novim dijelovima objekta.

Materijalizacija kuće, fasadni zidovi su bijeli, STO – mineralna fasada sa organskom završnom žbukom, krupnoće zrna 1,5mm, natjerat će i najveće skeptike prema tako jednostavnom rješenju da se bace na razmišljanje. Ta bjelina sa elementima drveta tek u naznakama na stolariji ili podovima, savršeno se nadopunjuje sa staklenim ogradama i zelenilom u koje je ušuškana.

Kuća je vrlo taktilna i kao da vas poziva da je dodirnete, da je ispitujete svim čulima i istražujete mjesto za sebe. Na kraju svega, poslije intervencije, kuća je niz privlačnih vještih preklapanja, komponovanje ideja i osjećaja o domu, o mjestu, o kontekstu. Daje važnost zajedništvu, ali i važnost individualnosti i vlastitom prostoru. Ne prisiljava da se koristi na jedan određen način, već vas blago usmjerava prema stvarima za koje ste tek slutili da su moguće. Kad ste jednom tu, znate to je to.