Arhitektonskom studijom prožimanja uloga funkcije i forme, igre volumena u praznom prostoru i u uličnom nizu, definisanje i poštovanje privatnosti u skladu sa namjenom, prilagođavanje uslovima lokacije, postovanje zatečenog u prostoru, slušanjem želja investitora… sve su to stilske vježbe koje treniraju autora da maštu kanališe prema kvalitetnom rezultatu.
Stanovanje u porodičnoj kući podrazumijeva potpun komfor po želji korisnika. U formalnom i funkcionalnom smislu objekat nosi identitet modernog, težeći da takav stil zadrži do kraja. Princip razmišljanja i rada koji nosi ideju progresa i emancipacije vlasnika dobrim dijelom se prenio i na projekat.
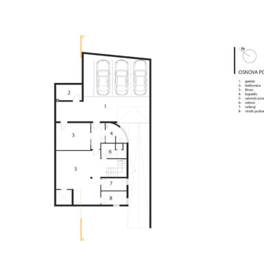
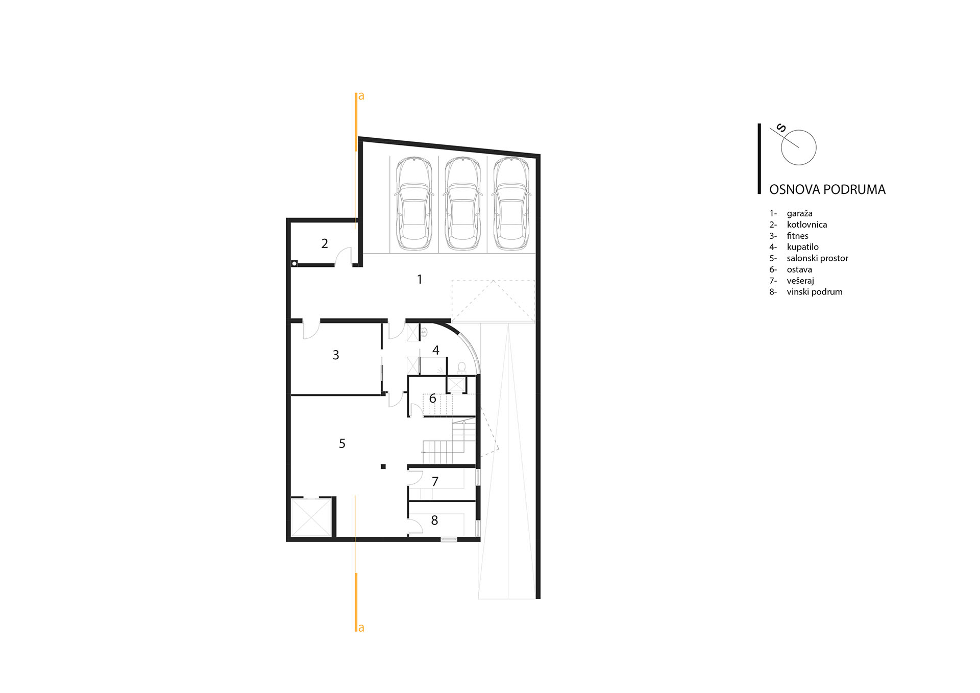
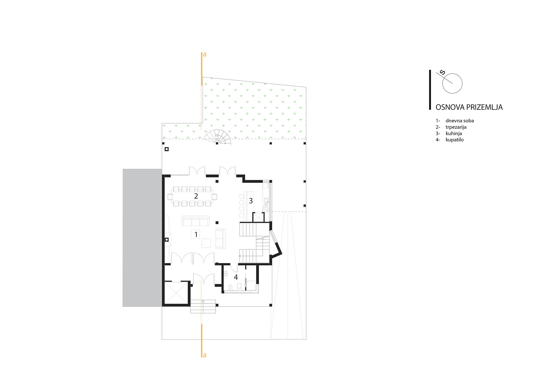
Objekat je čistih geometriskih formi, kompaktne mase, praktično monohromna kuća. Razgradnjom kubusa ugaonim otvorima i terasama stvoren je upečatljiv stilski efekat i pokušaj da se od ulice obezbjedi potpun mir i privatnost, a uvuče što vise svjetla. Pozicija glavnog ulaza i pristup objektu ukazuje na poštovanje konteksta i orjentacije, zadate samom lokacijom. Dnevni prostori se većim dijelom otvaraju ka istoku i sjeveru što u ekstremnim ljetnim uslovima predstavlja povoljnu okolnost. Unutrašnja organizacija prostora dovela je do kvalitetnog spoja namjene i forme, a rješenje pokazuje ideju o smislenoj racionalnosti iako je objekat velike kvadrature. Savremeni način življenja u velikoj mjeri zahtijeva da objekti budu, prije svega korisni i maksimalno prilagođeni potrebama svojih korisnika. Naravno, ovo gledište podrazumijeva poštovanje određena pravila stila koji se nameće. Stilska dosljednost ovog projekta zaokružena je funkcionalnom organizacijom kao i materijalima koji su korišteni na fasadi i završnim obradama.