Poslovno – stambeni objekat Tadić

Godina projektovanja
2008
Godina izgradnje
2011
Status
izgrađeno
Lokacija
Banja Luka

Poslovno stambeni objekat Tadić

Po svojim morfološkim odlikama kuća prati konstrukciju terena, prirodno se nadovezujući na njega. Ovo poslednje je unekoliko narušeno uvođenjem asimetrične forme u južnom dijelu kuće koja probija ravan ugla i postaje odraz organske forme. Ovim postupkom podcrtava se komunikacija i usmjerenost kuće na prirodu, kako u kontekstu njene otvorenosti i upućenosti na spoljašnji prostor, tako i u metaforičnosti u izrazu i inspiraciji tokom procesa projektovanja. U stilskom smislu, izvjestan duh monumentalnosti koji provijava eksterijerom objekta, u vezi je sa lokacijom i okruženjem. Taj naglašeni urbani karakter sa jedne strane i pomenuta intencija za stvaranje čvrste veze sa prirodom, oličavaju dualnost kao sveprisutni princip svake pojave u prirodi.

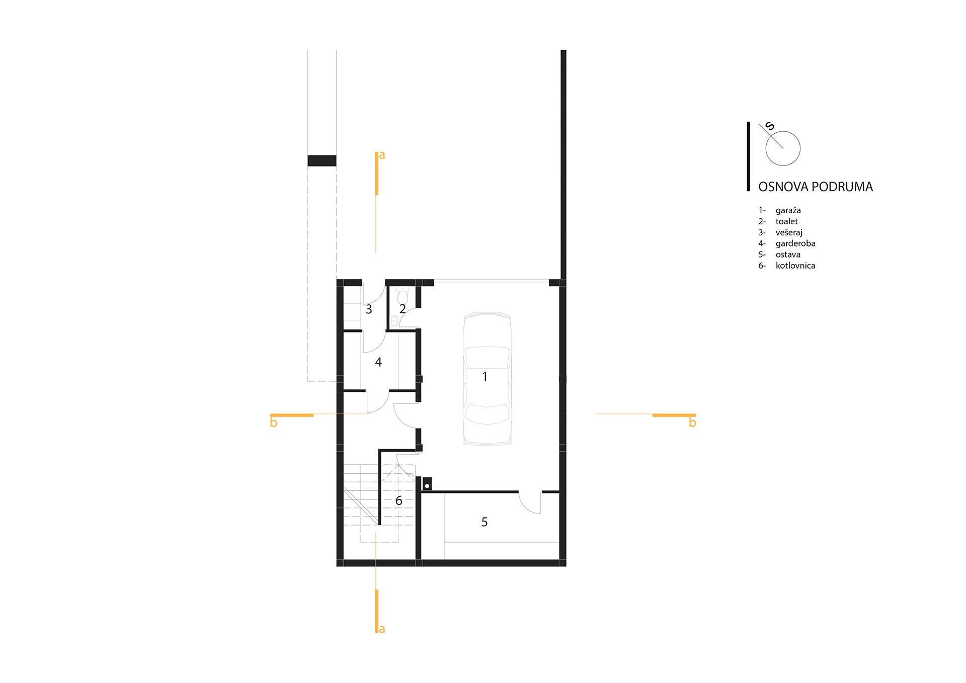
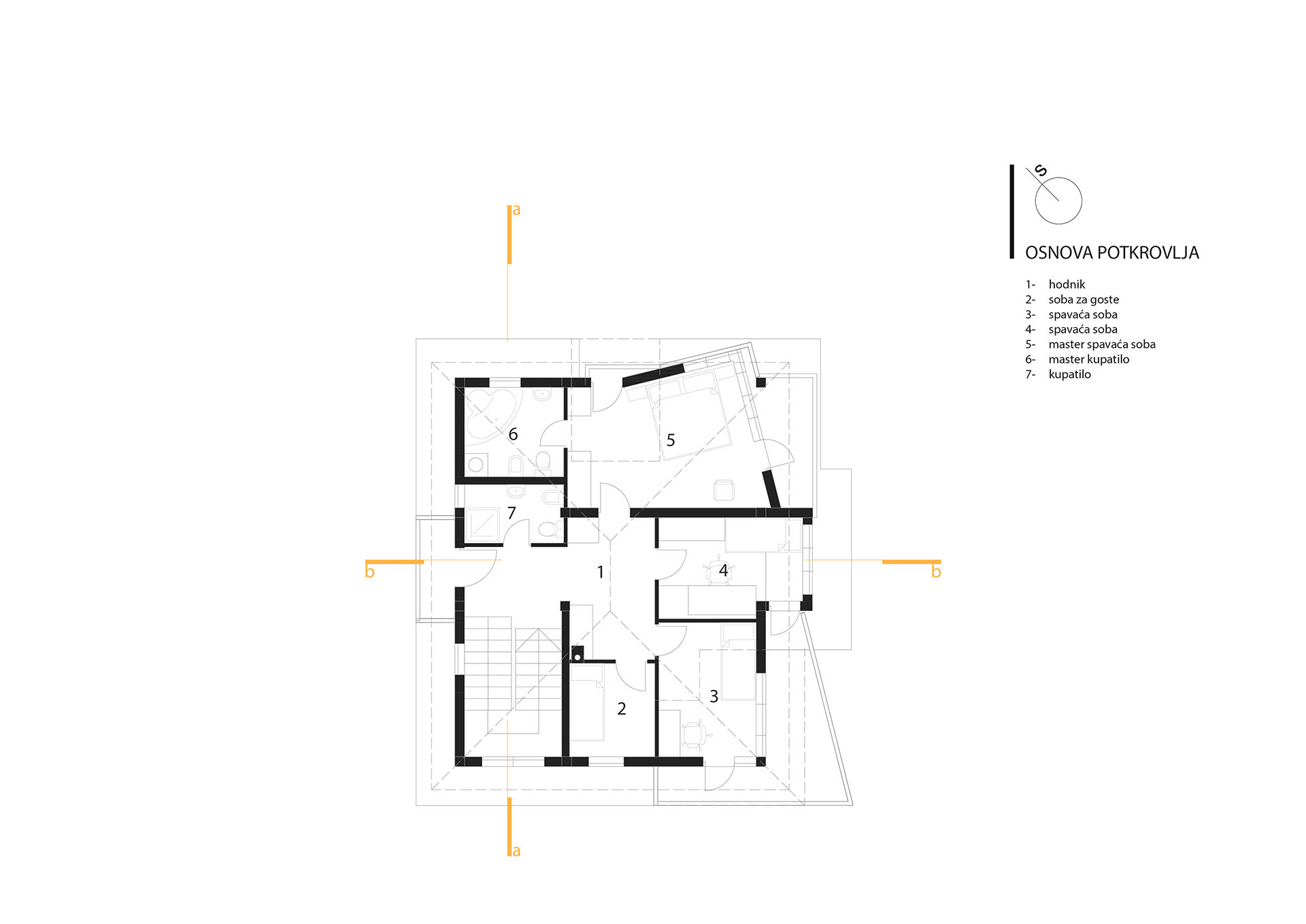
Glavni ulaz u poslovni prostor naglašen je rasporedom masa na objektu, a uređenjem terena i hortikulturom odvojen je ulaz u stambeni dio i simbolizuje granicu između radnog i prostora za život porodice. Ta razlika u funkcijama koje su u tijesnoj fizičkoj vezi, ali istovremeno i potpuno individualizovane u materijalizaciji i funkciji vidljiva je kako spolja tako i unutra. Funkcionalne cjeline su grupisane i izdvojene i kao takve one u cjelini pripadaju životu porodice koji se odvija unutar kuće, ali ga istovremeno i uređuju, olakšavaju, konotiraju.