Restoran Monumental- enterijer

Godina projektovanja
2013
Lokacija
Srbac

Restoran Monumental- enterijer

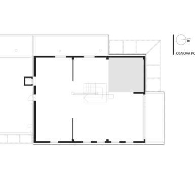
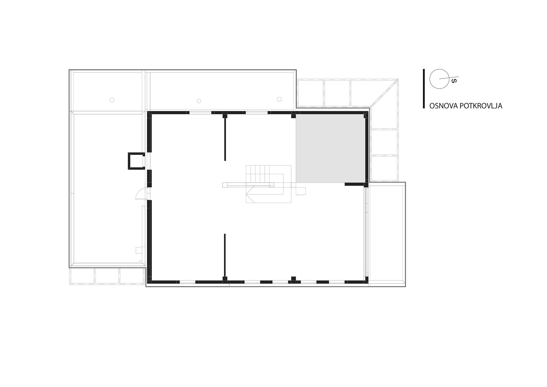
Sam prostor je odredio rješenje enterijera. Definisane su glavne zone sa položajem šanka i kuhinje. Svaku odlikuje prepoznatljiva obrada poda ali su I na drugi način jedinstvene I naglašene: centralna sala u prizemlju je sa starim drvenim gredama, sala za ručavanje na spratu je sa visokim kosim krovom i igrom puno prazno u njegovim vertikalama, kamin sala je prostor za opuštanje ravnih linija i blagog tona boje, velika terasa je pokrivena staklom… Drvena međuspratna konstrukcija nije vise mogla preuzimati funkciju nošenja, ali smo je zaštitili i ostavili onako kako je i stajala, a intervencija je rađena iznad sa novom konstrukcijom. Na dijelovima gdje je bilo neophodno ukloniti stare grede smo to i uradili, ali ih i iskoristili za oblaganje centralnog stepenišnog zida od prizemlja do potkrovlja. A stari lusteri su nas natjerali da sami projektujemo rasvjetu koja bi povezala potpuno različita osvjetljenja.

Ambijent je nov za novu namjenu. Ali ono sto ohrabruje je prisustvo starih gostiju koji se provode na sličan način kao i ranije kao i novih gostiju. Bila je to želja vlasnika, a i nas u birou da se očuvanjem prepoznatljivih vrijednosti omogući kontinuitet života stare kafane. Prepoznatljiva je centralna sala samo ovdje i ovakva, šank sa svojim vertikalizmom zbog velike visine starog objekta, rasvjeta, a gosti su posebno zadovoljni dodavanjem bašte i njenom kombinacijom natkriveno ili nenatkriveno.