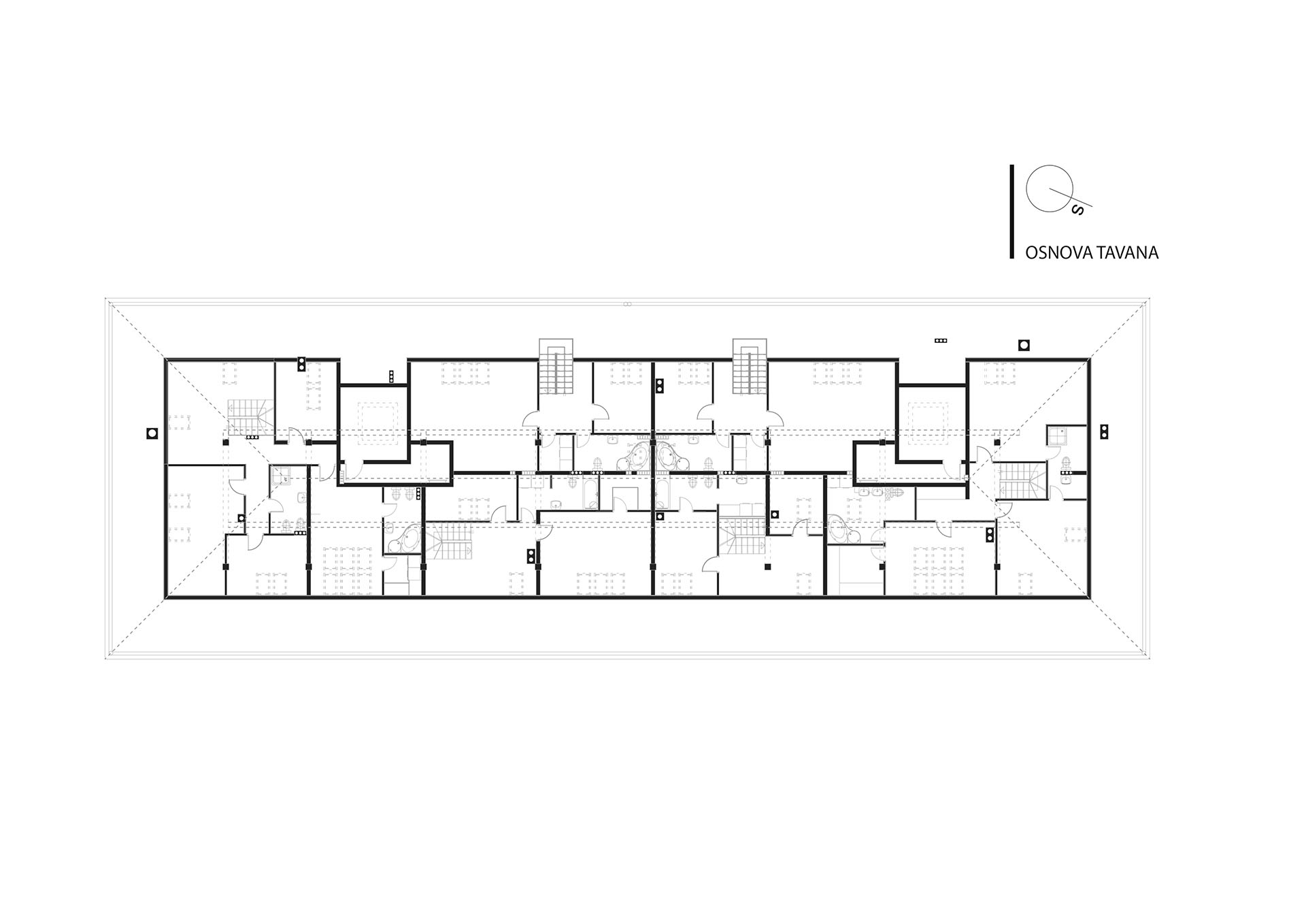
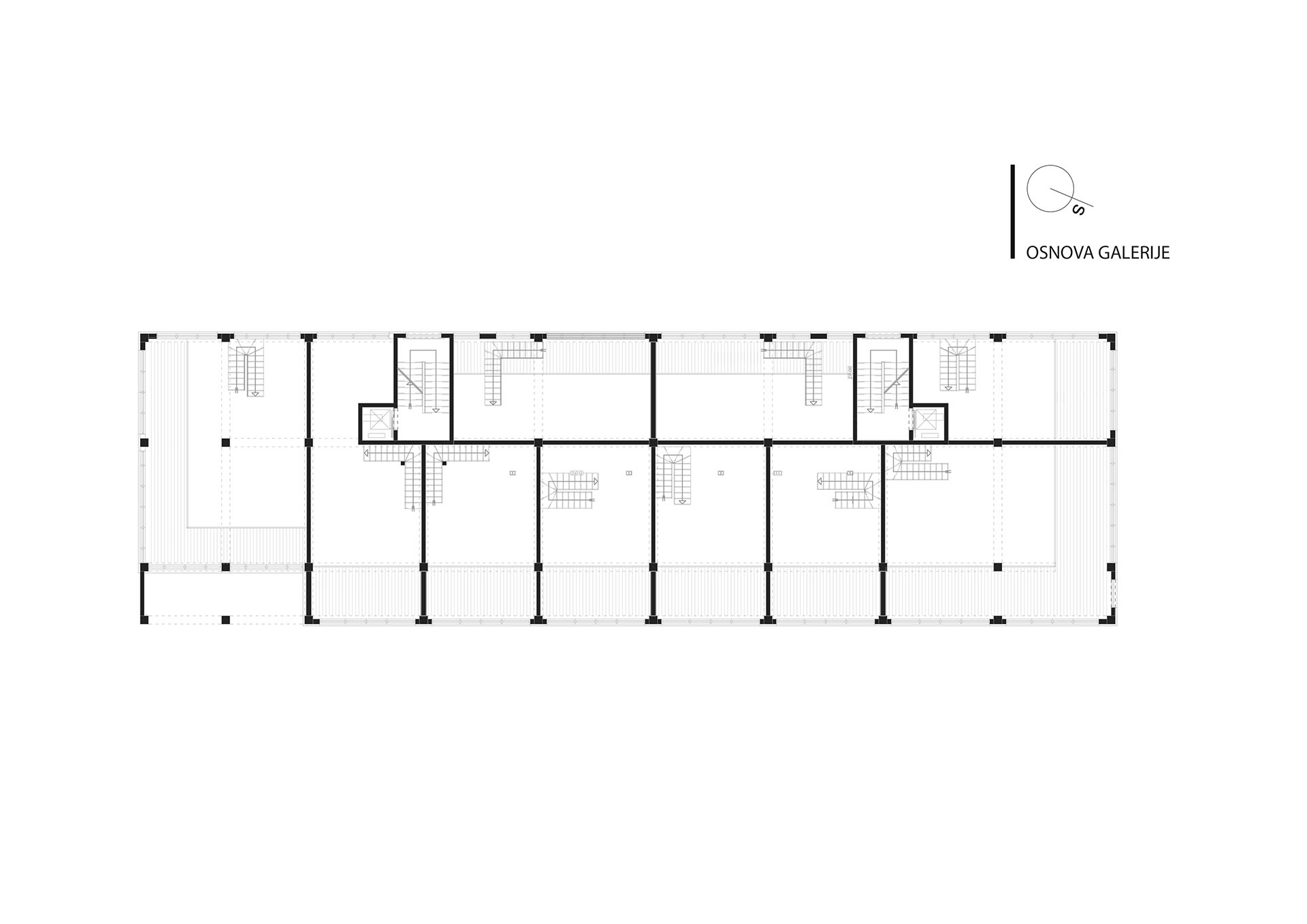
Stambeno poslovni objekat koji se nalazi na jednoj od glavnih gradskih saobraćajnica podrazumijevalo se da ima prizemlje poslovne namjene i da se dobije koji kvadrat više na galeriji iznad. U podrumskoj etaži je parking garaža sa 22 parking mjesta i pomoćni prostori kao ostava za bicikle ili sef i arhiva banke koja se nalazi u prizemlju. U prizemlje je deset poslovnih prostora i svaki od njih ima galeriski prostor i različite su kvadrature od 32 do 90m2.
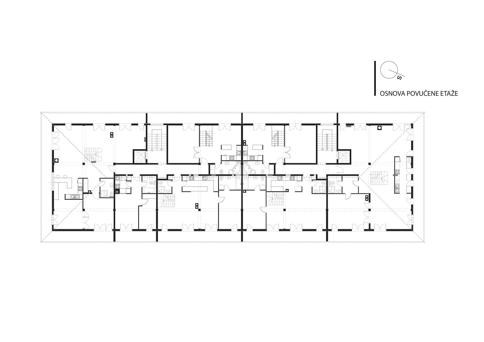
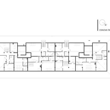
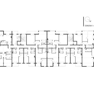
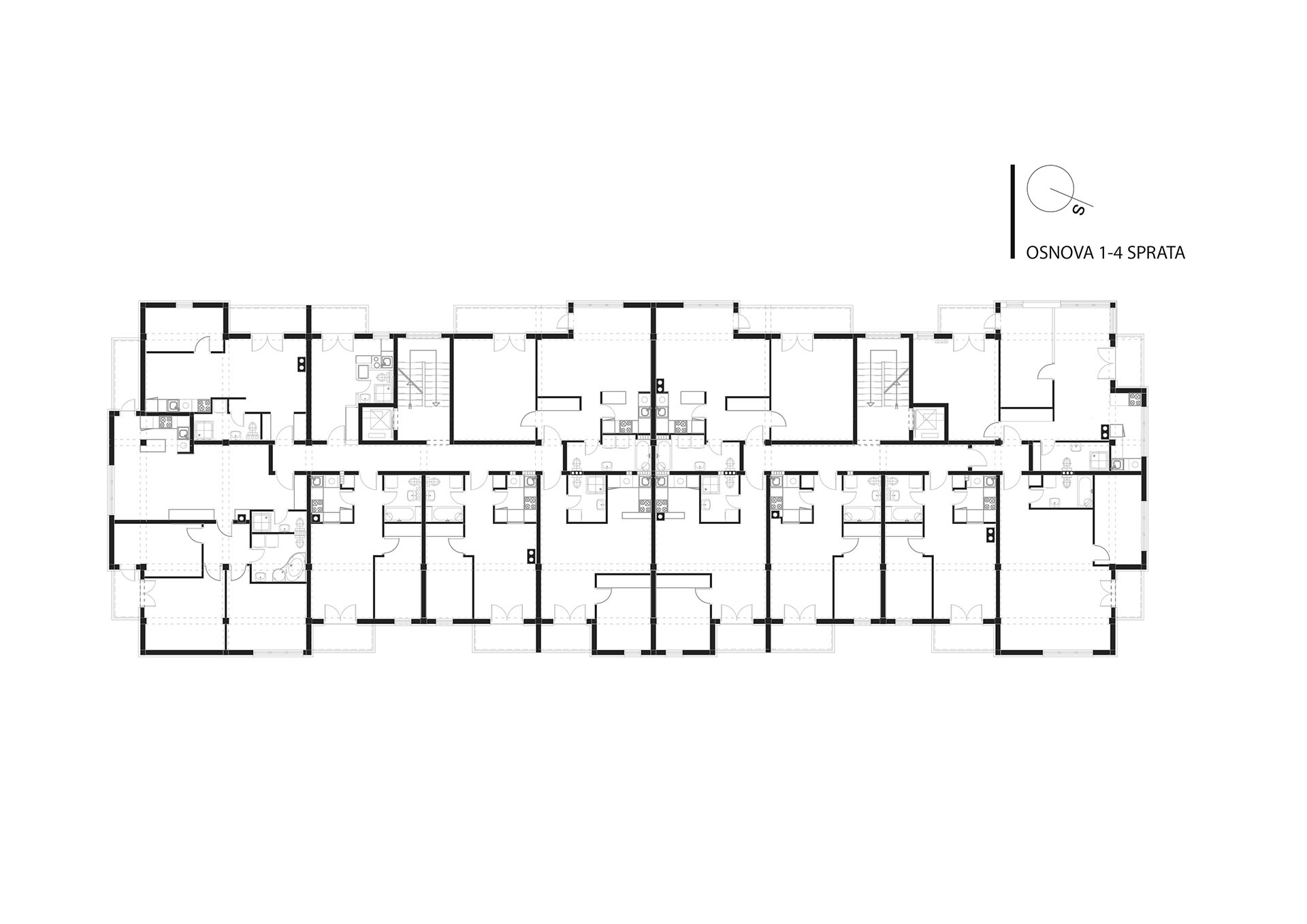
Stambeni dio objekta sastoji se od četiri karakteristične etaže gdje svaka ima po 12 stanova, a s obzirom na veličinu objekta i protivpožarne zahtjeve bilo je neophodno projektovati dvije vertikale stepeništa sa liftovima tako da se na jednoj jugoistočnoj vertikali nalazi sedam stanova, a na drugoj vertikali pet stanova. Povučene etaže na kojoj su dvoetažni stanovi ima sedam stanova od kojih su četiri na jugoistoku, a tri stana na jugozapadu.
Ova naoko jednostavno oblikovana zgrada u duhu moderne, nije obična, jer svojom čitkom funkcijom, logičnom konstrukcijom i oblikom je u kontekstu današnjeg trenda veoma ozbiljna, intrigantna, potiče na radoznalost, komunikaciju i zadovoljstvo dolaska.
Fluidnost, naglašenost stambenog i poslovnog dijela, racionalnost, energetska ušteda, funkcionalna uvjerljivost i dr. su odlike ovog objekta.