Hotel Lanterna

Godina projektovanja
2018
Godina izgradnje
2024
Status
izgrađeno
Lokacija
Srbac

Hotel lanterna – SRBAC

Je li arhitekturi zaista eminentno da se svojom apstraktnom formom izdvaja iz prirodnog konteksta? Ako posmatramo primjer Le Corbusierove, čini se da se prirodni kontekst i arhitektura ne nalaze u neposrednom formalnom dijalogu, nego sa okruženjem na apstraktan način, promišljenom pozicijom, prostornom integracijom i odnosima. Tek preispitivanjem same biti Moderne počinje se pojavljivati arhitektura koja na drugačije načine uspostavlja odnose u prirodnom kontekstu. Arhitektura Alvara Alta otvara nam nove horizonte na kojima arhitektura i priroda međusobno više nisu tako udaljene. Svojim arhitektonskim strukturama Alto se suptilno približava prirodnim strukturama. Često to obrazlaže i svojim tekstovima o kojima govori o logici organizacije prirode i njene povezanosti s arhitekrturom. Priroda strukturalizma krije se u sposobnosti beskonačnog širenja I rasta,oblik je rasterećen,omogućava fleksibilnost, isprepletanje upotrebe. Mreža postaje organizacioni peincip.

Objekat u Srbcu smješten je u gradskom središtu, na raskršću dviju glavnih saobraćajnica  sa dovoljnom udaljenošću od njih, ali sa prekrasnim pogledom na obje. Danas arhitekta vrlo rijetko ima priliku odabrati lokaciju za kuću, odrediti njezinu poziciju, na sreću nekad je to bilo drugačije i objekat sagrađen pedesetih godina je dobro postavljen na lokaciji. Arhitekta o kome na žalost nemamo podataka, je znao prepoznati identitet prostora,topografiju, strane svijeta, stabla, otvoreni pogled. Razumio je prostor i ljude. Objekat svojim volumenom slijedi pad terena, a fasadama se otvara prema najljepšim pogledima. S tri strane, s novooblikovanim terenom, tvori terasu oko kuće. Najatraktivnija je na jugozapadnoj strani, gdje se oblikuje pristup ulazima jedan u budući restoran u suterenu, a drugi prema hotelskim sobama u postojećem objektu kao i planiranoj izgradnji novog objekta na sjevernoj strani. Moćno stablo brekinje na jugu tom prostoru daje poseban identitet i kao da poziva na ulaz.

,,Iskustvo prostora, koji arhitektura čini mogućim, spada u primarne osjećaje“, kaže Johani Pallasamaa. Objekat navodi kao znak kulture u prostoru, percepciju njezine pojavnosti u prostoru te ulaz na teritoriju, osjećaj ugodnog boravka pod krovom, u zaklonu utisak sigurnosti, zajedništva ili izolacija, boravak oko žarišta koje je ovaj put dijelom i pod zemljom uz vatru i druženje. Razlikovanje prostorija u smislu svjetlosti ili tame, zajedništva ili samoće, pogleda kroz prozor i povezanosti sa okolinom.

Objektu se dolazi alejom. Primjećujemo ga među stablima, a onda ulazimo u dvorište gdje su velike zelene površine sa obje strane ulaza i dijele ga od javnog prostora naglašavajući privatnost. Jedinstven asketski volumen postojećeg objekta smo uspjeli zadržati bez obzira na promjenu namjene iz porodične kuće za stanovanje u ugostiteljski objekat sa restoranom i sobama za spavanje. On je jednostavno obavezivao na poštovanje. S diskretnim ritmom ploha druge dvije, u prvobitnom projektu manje bitne fasade, istočne i sjeverne, i velikih ostakljenih prozorskih otvora na krovu objekta, te igrom dodatnog prostora u krovnoj etaži promjenjen je eksterijer tako da nije narušena njena autentičnost.

Tako oblikovan objekat priprema nas na iznenađenje koje posjetioce očekuje u unutrašnjosti.

Sa naručiocima se lako dogovaralo oko zadržavanja starog objekta, čuvanju svega što se moglo sačuvati pa i drvenog postojećeg krova od starih hrastovih greda. Zadržan je skeletni sistem i projektovan objekat po modularnoj mreži. I upravo tu se može prepoznati baština Moderne.

Mreža je ovdje uspostavljena na nov i savremen način. Prema vani je uhvaćena u jedinstvenom arhetipskom volumenu, te samo strukturom vertikalnih podjela fasade, što dviju  postojećih fasada, što novih izražava elementarni unutrašnji ritam objekta. Ovojnica pokriva konstrukciju kuće koja je pomaknuta u unutrašnjost. Modularni ritam nosivih elemenata nosi krov i određuje pojedine jedinice objekta, koji je posve otvoren, razuđen i u unutrašnjosti osvijetljen sa više strana. Objekat je pročišćen, jednostavan i elementaran prema vani, a u unutrašnjosti struktuiran u pojedine mikro ambijente i raščlanjen konstrukcijom.

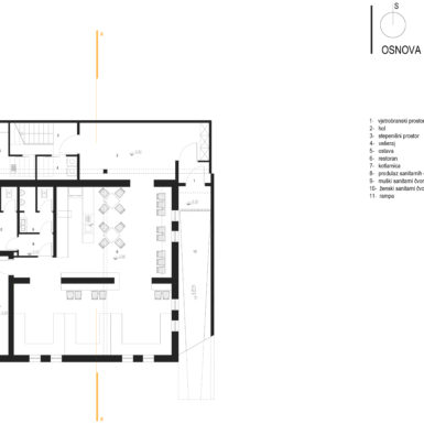
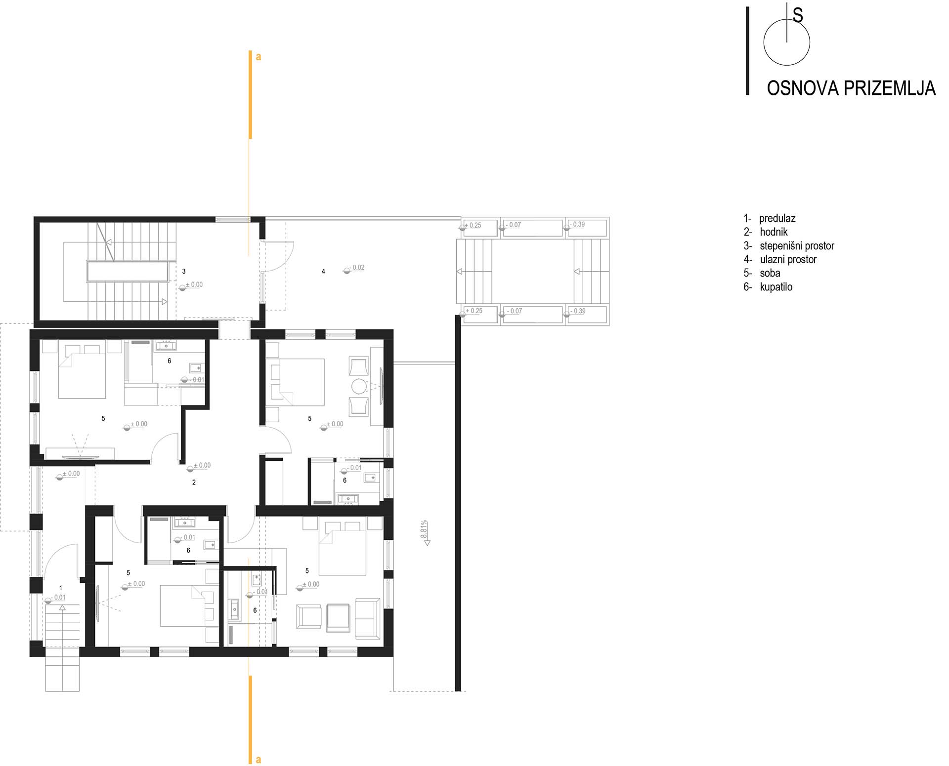
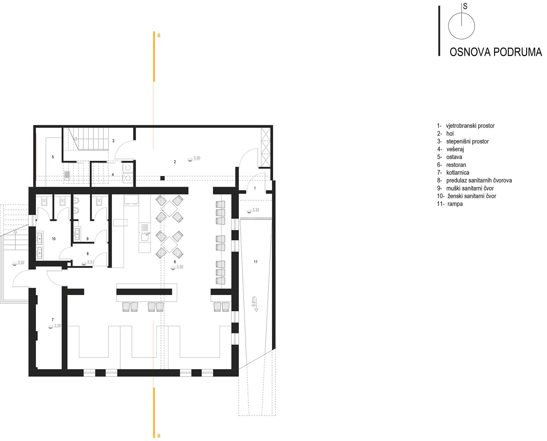
Rampa preko koje ulazimo u ugostiteljski dio, uvodi nas u prostor bara i preko njega sve druge mirnije prostore. Svi ti prostori postupno prevode izrazitu horizontalnost rampe i dolaskom u restoran koji nas popločanjem od opeke i niskim sjedenjem uz vatru tako prizemljuje da zaželimo sjesti na pod, tu izdvojeni visokim prozorima od okolnog prostora. Druga je priča ako stepeništem krenemo na prizemlje i dalje gdje iz svake sobe velikim prozorskim otvorima komuniciramo sa okolinom baš onoliko koliko želimo. Red je temelj slobodnog tlocrta. Topli prirodni materijali: drvo, opeka, staklo daju ugođaj topline. Nije ovo minimalistički objekat koji bi težio potpuno pročišćenoj ljepoti jer je on sagrađen kad Moderna još nije stigla na ove prostore, već njegova bit leži u autentičnosti konstrukcije i materijala, te u izuzetnosti različitih ambijenata koji pozivaju na boravak, kako one koji objekat znaju decenijama tako i one koji ga prvi put vide. Ostao je ,,svoj” u svojoj izvornosti, ali bez opterećenja prilagodio se sadašnjem vremenu i novoj namjeni.