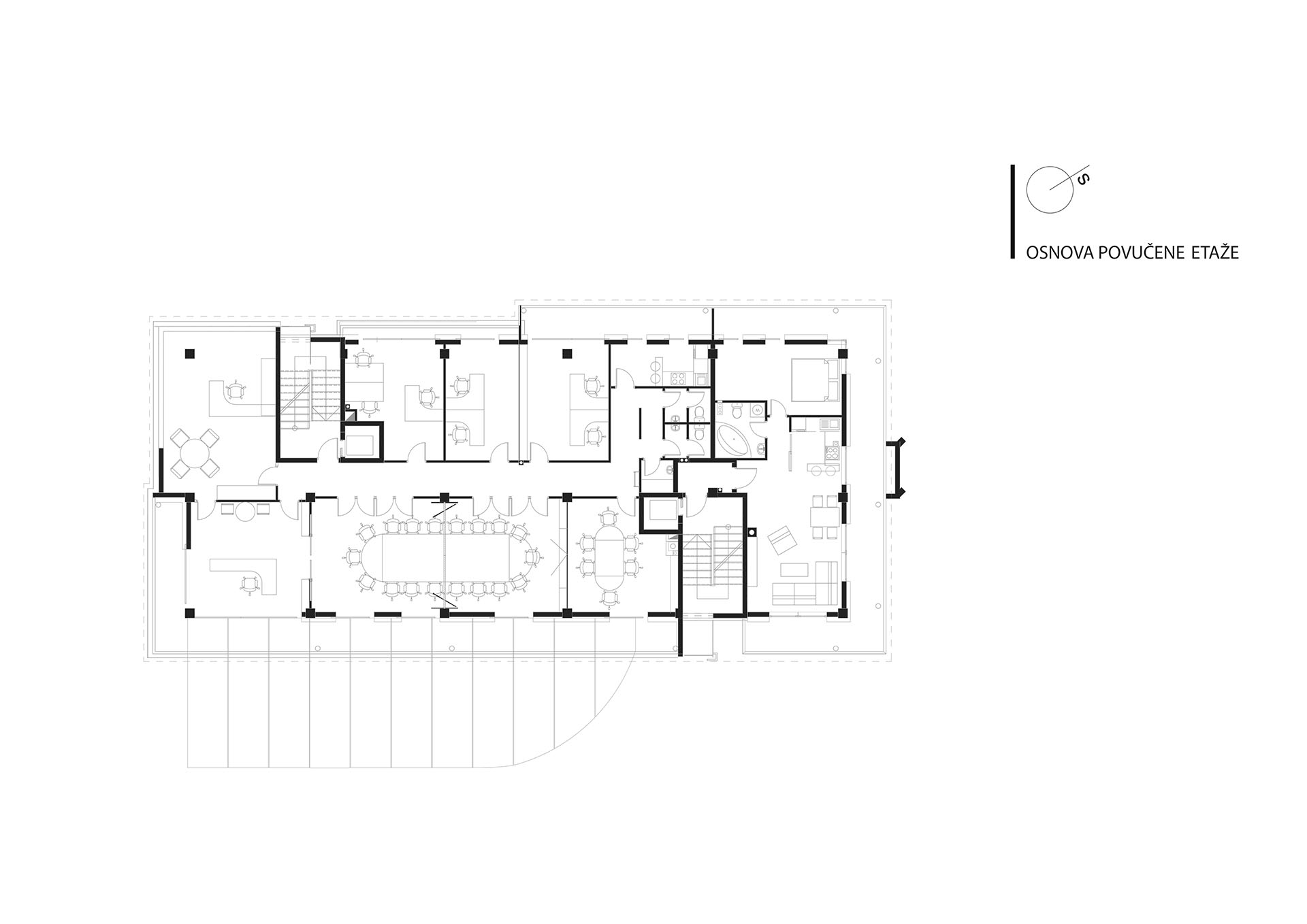
Za razliku od klasičnog načina razmišljanja, kojim se u prvi plan stavlja prije svega estetska vrijednost, projektovanjem ovog objekta istraživan je etički princip i norme u projektovanju kako savremenog radnog prostora sa dodatnim faktorom posebne zaštite jer riječ je o Centralnom registru hartija od vrijednosti, tako i dijela za stanovanje i posebne javne namjene poslovanja u prizemlju objekta. Dakle, osim suštinskih problema projektovanja u kontekstu, a lokacija je u najužem dijelu grada, ovo rješenje pokazuje izvjestan arhitektonski eksperiment na polju koje je u našoj sredini nedovoljno istraženo.
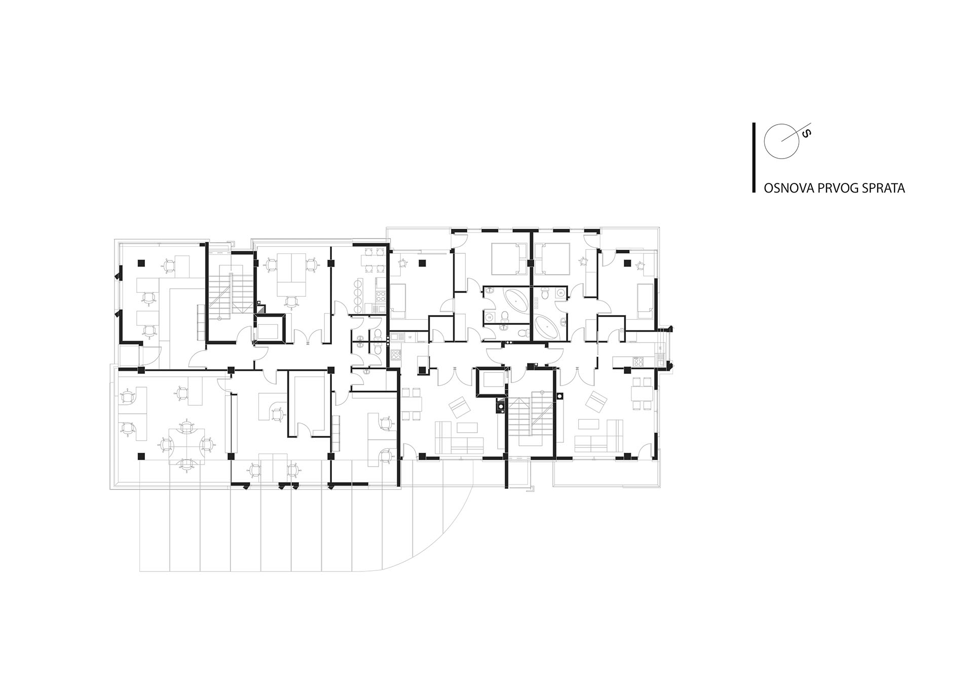
Kvalitet projekta je da je prevaziđen problem klasične poslovne zgrade kao i integrisanje stanovanja tako da objekat čini cjelinu bez obzira na funkcije koje su različite, tako da je stvoren specifičan scenografski ambijent u prostoru. Transparentna staklena opna prizemlja i pomijeranje granice između spoljašnosti i unutrasnjosti naspram zatvorenog volumena spratova sa jednom materijalizacijom na poslovnom, a drugom na stambenom dijelu rezultiralo je nesvakidašnjim vizuelnim doživljajem. Napuštajući uobičajeni način rješavanja fasade, kada je ona arhitektura za sebe, ovdje je dijelom učinjen korak ka novom, slojevitom vizuelnom doživljaju objekta.
Učinjen je kvalitetan korak na polju predstavljanja ideje i njene potpune realizacije, ali je činjenica da tehnologija kuće, materijalizacija i vizuelni efekat koji oni proizvode predstavljaju segment izuzetne brige projektanta i izvođača radova.
Ovakvim pristupom problem projektovanja još jednom se potvrdilo da arhitektura u dobrom dijelu zavisi od međusobnog prožimanja umjetničkog, tehničkog i misaonog sadržaja i da se njena trezvenost cijeni upravo ovim odlikama.