Porodična kuća na Krčmaricama

Godina projektovanja
2020
Godina izgradnje
2021
Status
izgrađeno
Lokacija
Banja Luka

Porodična kuća na krčmaricama

Na putu traženja arhitekture u kojoj jednostavni prostor u skladu sa prirodom i složenim arhitektonskim zamislima, te traženje arhitekture u komunikaciji sa naručiteljem, shvaćena kao slučajna dimenzija, a ne kao trajno utvrđen pojam, te prepoznavanje afiniteta usmjerili su i rezultirali na kraju kućom u ovakvom obliku. S jedne strane zaklonjena od javnog prostora ulice tako što je ukopana za cijelu etažu, a ispred tamo gdje je vidljiva je zaklonjena garažom, dok s druge se strane otvara prema jugozapadu, upija svjetlost, ulazi u vrt koji istovremeno ulazi u unutrašnjost. Položajem na jugozapadnoj padini nadgleda grad koji je tako blizu, a tako daleko.

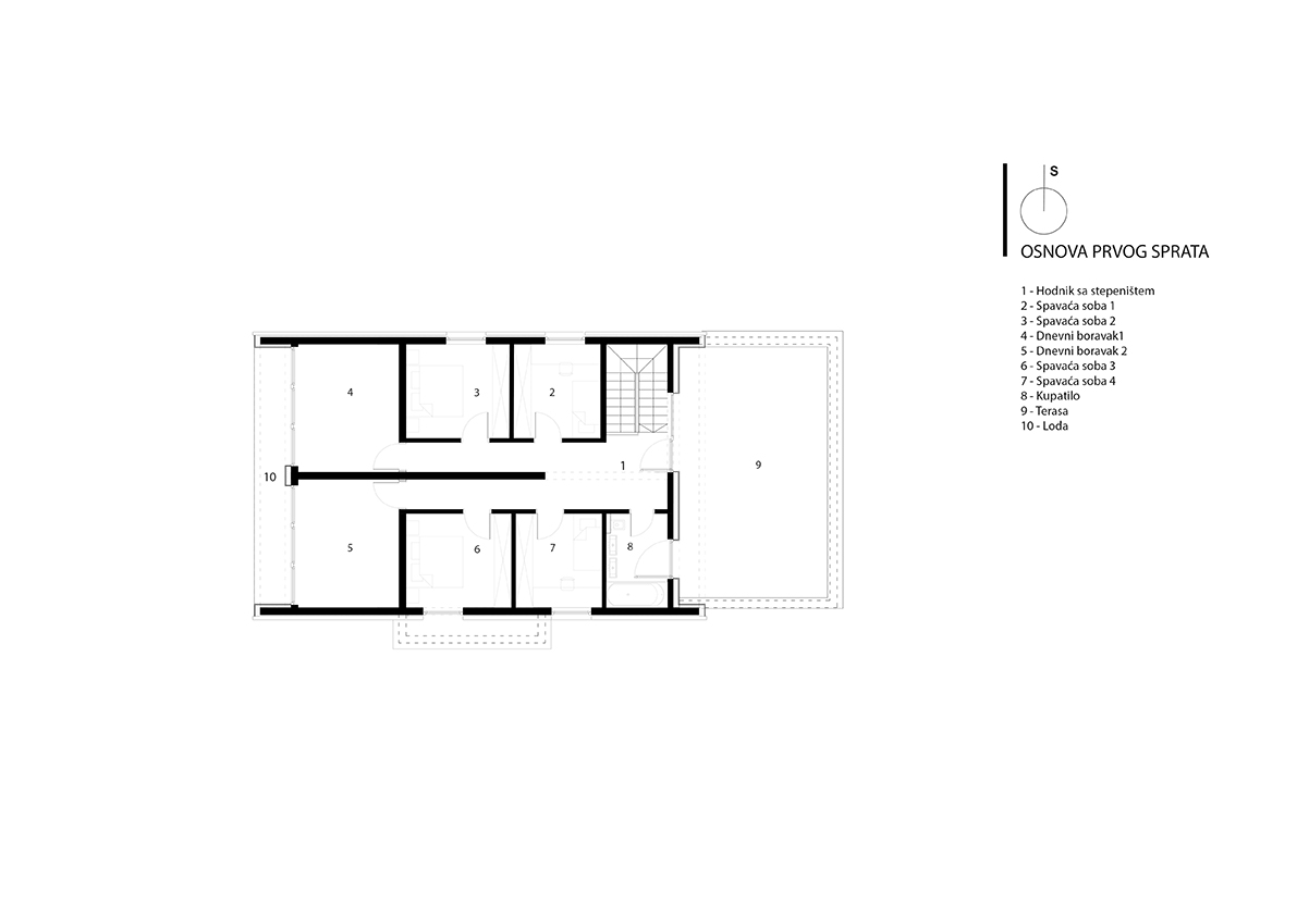
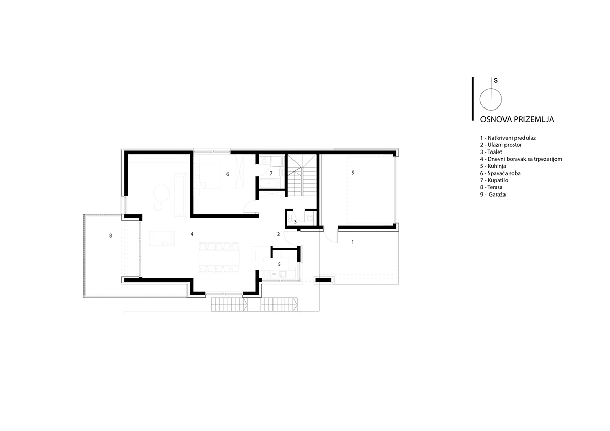
Kuća je projektovana kao spratna građevina koja je sa tri strane ukopana u zemlju, kako zbog visinske razlike tako i zbog uštede energije. Prostorije za boravak i spavanje orjentisane su na jug dok stepenice, toaleti zauzimaju sjeverne prostore. Projektovana je za zajednički boravak i druženje na nivou suterena, prizemlje je dnevni boravak i noćna zona roditelja, a u potkrovlju dva jednaka apartmana za goste.

Arhitektura koja ne ide za pobjedom nad okolinom, niti se od nje brani, već na najbolji mogući način koristi postojeće klimatske okolnosti i konfiguraciju tla. Kući se prilazi cestom od šljunka. Taj neprilagođeni put prekid je sa civilizacijom. Izgled parcele na prvi je pogled nedojmljiv, osiromašeno tlo pokriveno kupinama, ali padajući pravac pruža pogled na grad i postaje mjesto svježeg doživljaja prostora. Osim što orjentacija odgovara pasivnim načelima kuće, koja hvata sunce u velikim količinama, odluka o smještaju vođena je izborom investitora da vizura obuhvati najbolje od grada.

Spratnosti Su+Pr +1 ukupne bruto povrsine 640.44 m2 .

Potrebe saobraćaja u mirovanju se rješavaju na uličnom dijelu parcele I u garaži.

Osnovna konstrukcija objekta je riješena kao armirano-betonska konstrukcija u kombinaciji stubovi, grede, platna, ploče i ona na krovu kao kosa ploča. Temeljna konstrukcija objekta je jedinstvena temeljna armiranobetonska kontra ploča za čitav objekat na nivou suterena.
Fasadni zidovi su bijeli, STO – mineralna fasada sa organskom završnom žbukom, krupnoće zrna 1,5mm u kombinaciji sa onim od opeke koji se penje i na krov. Na podnim površinama je terakota keramika da bi se dobila fina meka struktura i dojam jedinstva objekta sa okolinom iz koje izrasta. Želuzine na prozorima su od prirodnog drveta tipa bor ili smrča kao i perforirane klizne želuzine koje zatvaraju otvoreni južni dio fasade u toplim ljetnim danima.
Podrazumijeva se primjena principa energetske efikasnosti jer je izabran material blok za zidove i opeka i međespratna i krovna konstrukcija takvih karakteristikama gdje je toplotna provodljivost U=0,25W/m2K, te je za budući objekat maksimalna potrošnja energije za grijanje i hlađenje određena na 40kWh/m2 godišnje a potrošnja primarne energije 100kWh/m2 godišnje.